Unlock the potential of this exceptional vacant land opportunity nestled in the vibrant heart of San Dimas. Property is in a prime location at the corner of N Amelia Ave & W Gladstone St, this expansive 1.61-acre lot presents an enticing prospect for builders and investors alike.
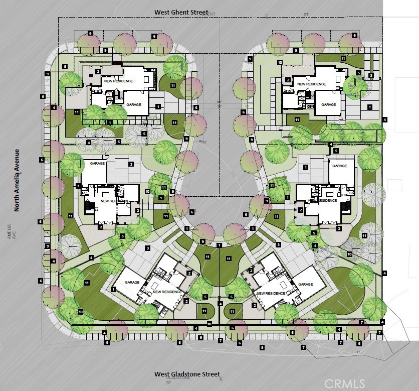
The true value of this property lies in its development potential, with land entitlements already secured and a tentative tract map for subdivision approved. This parcel offers the drafted plans for the creation of six detached single-family homes. Each residence provides a spacious living environment, ranging from 2383 to 2597 square feet, providing ample room for comfortable modern living. Encompassing a total of over 70,000 square feet, this sizable lot presents endless possibilities. *Each lot has the capability of building a ADU adding another additional maximum of 1,000 livable square per ADU.* Most recent plans have the total proposed livable square footage as 19,754.
Located a mere 0.2 miles away, Arma J. Shull Elementary School, boasts a stellar 10 rating and provides an excellent educational option for families. The bustling Glendora Marketplace is also within easy reach, offering a plethora of shopping, dining, and entertainment options just 0.8 miles away.
A small single-family house currently occupies a portion of the land, offering 2 bedrooms and 1 bathroom with approximately 750 square feet. Additionally, a liquor store building comprising approximately 1400 square feet stands on the lot.
The true value of this property lies in its development potential, with land entitlements already secured and a tentative tract map for subdivision approved. This parcel offers the drafted plans for the creation of six detached single-family homes. Each residence provides a spacious living environment, ranging from 2383 to 2597 square feet, providing ample room for comfortable modern living. Encompassing a total of over 70,000 square feet, this sizable lot presents endless possibilities. *Each lot has the capability of building a ADU adding another additional maximum of 1,000 livable square per ADU.* Most recent plans have the total proposed livable square footage as 19,754.
Located a mere 0.2 miles away, Arma J. Shull Elementary School, boasts a stellar 10 rating and provides an excellent educational option for families. The bustling Glendora Marketplace is also within easy reach, offering a plethora of shopping, dining, and entertainment options just 0.8 miles away.
A small single-family house currently occupies a portion of the land, offering 2 bedrooms and 1 bathroom with approximately 750 square feet. Additionally, a liquor store building comprising approximately 1400 square feet stands on the lot.
Property Details
Price:
$3,200,000
MLS #:
CV24068771
Status:
Active
Beds:
2
Baths:
1
Type:
Single Family
Subtype:
Single Family Residence
Neighborhood:
689sandimas
Listed Date:
Sep 24, 2025
Finished Sq Ft:
2,113
Lot Size:
70,205 sqft / 1.61 acres (approx)
Year Built:
1929
See this Listing
Schools
School District:
San Dimas
Middle School:
Lone Hill
High School:
San Dimas
Interior
Bathrooms
1 Full Bathroom
Cooling
CA
Laundry Features
SEE
Exterior
Community Features
SUB
Financial
Map
Community
- Address649 W Gladstone ST San Dimas CA
- CitySan Dimas
- CountyLos Angeles
- Zip Code91773
Market Summary
Current real estate data for Single Family in San Dimas as of Dec 10, 2025
38
Single Family Listed
34
Avg DOM
928
Avg $ / SqFt
$1,041,022
Avg List Price
Property Summary
- 649 W Gladstone ST San Dimas CA is a Single Family for sale in San Dimas, CA, 91773. It is listed for $3,200,000 and features 2 beds, 1 baths, and has approximately 2,113 square feet of living space, and was originally constructed in 1929. The current price per square foot is $1,514. The average price per square foot for Single Family listings in San Dimas is $928. The average listing price for Single Family in San Dimas is $1,041,022.
Similar Listings Nearby
649 W Gladstone ST
San Dimas, CA


















