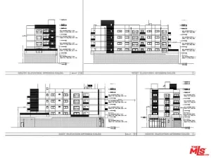
Exceptional Tier 1 TOC development opportunity in the heart of Echo Park. Zoned CM/CR, this 5,863 SF site offers the ability to capitalize on Transit Oriented Communities incentives and deliver a high-yield multifamily project along a highly active corridor. Tier 1 TOC designation allows for increased density, with the potential to develop up to approximately 20 units (buyer to verify). Ownership has secured a Letter of Determination for a smaller project, providing a clear path forward while preserving optionality for a larger-scale development. The property will be delivered vacant with no existing structures, eliminating demolition costs and allowing for a more efficient development timeline.Prime Echo Park location surrounded by ongoing development, creative office, and strong retail and hospitality. Minutes to Echo Park Lake and The Echo, with close proximity to Silver Lake, supporting strong rental demand and long-term growth.
Property Details
Price:
$695,000
MLS #:
26668091
Status:
Active
Beds:
0
Baths:
0
Type:
Land
Neighborhood:
c21silverlakeechopark
Listed Date:
Mar 26, 2026
Lot Size:
5,865 sqft / 0.13 acres (approx)
See this Listing
Schools
Interior
Exterior
Financial
Map
Community
- Address616 N Alvarado ST Los Angeles CA
- CityLos Angeles
- CountyLos Angeles
- Zip Code90026
Subdivisions in Los Angeles
Market Summary
Current real estate data for Land in Los Angeles as of May 25, 2026
447
Land Listed
180
Avg DOM
$1,580,831
Avg List Price
Property Summary
- 616 N Alvarado ST Los Angeles CA is a Land for sale in Los Angeles, CA, 90026. It is listed for $695,000 and features 0 acres.
Similar Listings Nearby
616 N Alvarado ST
Los Angeles, CA


