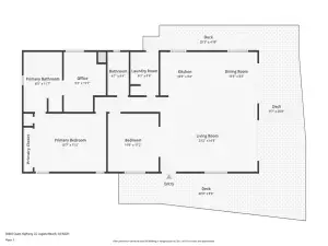
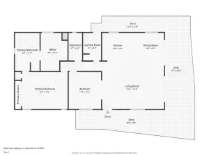
Welcome to this stunning coastal property in Laguna beach. Offering breathtaking ocean views and prime location along the iconic West Coast Highway. This is a land lease community. Own your own home and lease the land. Walk across the street to the beach and Montage Resort and many restaurants and grocery stores. This home has the most incredible sunset views 365 days a year. Beautiful 2 bed 2 bath home at the end of the street with only one neighbor featuring magnificent ocean views from the living room, kitchen and bedroom,with a large wrap around deck. This quaint cottage feels like a single family home, open great room, living and kitchen. Cathedral ceilings, and three sets of sliding doors leading to sunset and viewing decks. Lots of natural light,beautiful ravine on one side, skylights throughout the house. Kitchen upgraded, gas stove top, Bosch dishwasher. Custom glass entry door, vinyl windows, Trex deck with warranty. No property tax or hoa all included in land lease of $4821 a month, lease transfers at 30 years and they have an annual increase of 3% or cpi whichever is greater. Community pool and spa and clubhouse recently upgraded. Easy access to town with a trolley at the base of the hill to take you into Laguna Beach downtown, art galleries, shopping, views of coastal cliffs and sunsets to take your breath away. Step onto your deck for coffee and watch the waves roll in or wine and cheese at sunset. Perfect indoor outdoor space for all your entertaining Brand newly remodeled quaint hotel right next door for overflow family.
Property Details
Price:
$465,000
MLS #:
OC26044658
Status:
Active
Beds:
2
Baths:
2
Type:
Single Family
Subdivision:
Laguna Terrace Mobile PkLT
Neighborhood:
slsouthlaguna
Listed Date:
Mar 1, 2026
Finished Sq Ft:
882
Year Built:
2003
See this Listing
Schools
School District:
Laguna Beach Unified
Interior
Appliances
DW, FZ, MW, WLR, GR, GWH, WHU
Bathrooms
2 Full Bathrooms
Cooling
CA
Flooring
LAM
Heating
CF
Interior Features
CF, LRDA, OFP, CC, HCEL
Laundry Features
DINC, WINC
Exterior
Accessibility Features
NIS
Community Features
SL, PSV, PARK, HIKI, BIKI, DGP
Exterior Features
AW
Fencing
GL
Parking Spots
2
Parking Total
2
Patio And Porch Features
WA, POF
Roof
CMP
Security Features
FSDS, MGR
Waterfront Features
ARLO
Window Features
BW, SK, DPW
Financial
Lease Land Amount
$3,800
Map
Community
- Address30802 Coast #C6 Laguna Beach CA
- SubdivisionLaguna Terrace Mobile Pk(LT)
- CityLaguna Beach
- CountyOrange
- Zip Code92651
Subdivisions in Laguna Beach
- Alta Vista AV
- Arch Beach Heights ABH
- Blue Lagoon BL
- Canyon CYN
- Coast Royal CR
- Crown Point CP
- CUST
- Emerald Bay EB
- Irvine Cove IC
- Laguna Ocean Vista Condos LOV
- Laguna Royale LAR
- Laguna Terrace Mobile PkLT
- Lagunita LA
- Lower Bluebird LB
- Main Beach BCH
- Montage Beach Villas MNBV
- Mystic Hills MH
- North Laguna NL
- Ocean Vista Custom OV
- Portafina PF
- Rancho Laguna RL
- Smithcliffs SMC
- South Laguna Bluffs SLB
- South Laguna Village SLV
- Summit Ridge SR
- Temple Hills TH
- Terraces Laguna Beach TER
- The Village VIL
- Three Arch Bay TAB
- Top Of The World TOW
- Upper Diamond UD
- Upper Victoria Beach UVB
- Victoria Beach VB
- Woods Cove WC
Market Summary
Current real estate data for Single Family in Laguna Beach as of Apr 04, 2026
450
Single Family Listed
130
Avg DOM
995
Avg $ / SqFt
$3,183,678
Avg List Price
Property Summary
- Located in the Laguna Terrace Mobile Pk(LT) subdivision, 30802 Coast #C6 Laguna Beach CA is a Single Family for sale in Laguna Beach, CA, 92651. It is listed for $465,000 and features 2 beds, 2 baths, and has approximately 882 square feet of living space, and was originally constructed in 2003. The current price per square foot is $527. The average price per square foot for Single Family listings in Laguna Beach is $995. The average listing price for Single Family in Laguna Beach is $3,183,678.
Similar Listings Nearby
30802 Coast #C6
Laguna Beach, CA


