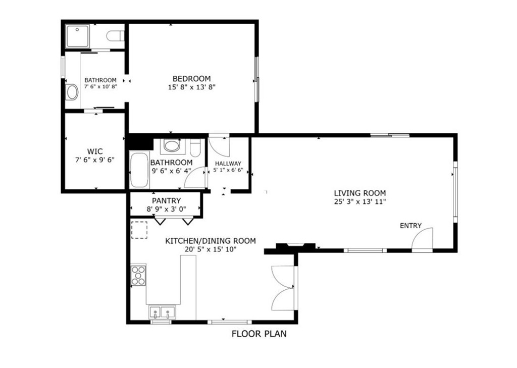
Absolutely charming Oak Glen cabin near iconic apple orchards, boutique shops, and quaint restaurants. This well-maintained property features 1 bedroom and 1.75 bathrooms in 1,052 sq. ft. of living space, all situated on a private 15,300 sq. ft. lot with plenty of space for home expansion if desired. Also offering a detached 2-car garage, a 1-car carport, and driveway parking for 4 additional cars – great for guests! A lovely brick walkway with planters adorns the front, leading to the front deck which wraps around the home to the back. Inside, you will find beautiful vaulted wood-beamed ceilings, wooden plantation shutters, central A/C & heating, and newly installed aluminum flex ducting (rodent resistant) under the home! The home boasts a spacious living room complete with wood-burning stove. The living room flows into the kitchen with wood cabinetry, tile counters, and high-end Bosch Stainless Steel appliances including the cooktop with vent, a built-in oven, and microwave. The Samsung refrigerator is also included with the sale of the home! The kitchen opens to the light and bright dining room with double French-doors that opens to the front deck, and there is a convenient laundry closet in the kitchen with included washer and dryer. This home has a large bedroom with glass slider to the back deck, a large private ensuite with vanity space, a walk-in shower, and the ideal cedar-lined walk-in closet with built in storage. A full-size bathroom completes the interior floor plan. Relax and entertain on the back deck with stunning mountain and forest views, and there is also a shed for extra storage! This home is truly a gem! Bask in the best of mountain living while still being close to shopping and services, also the US Forestry Service Station is located next door! Do not miss this one!
Property Details
Price:
$599,900
MLS #:
IG25193679
Status:
Active
Beds:
1
Baths:
2
Type:
Single Family
Subtype:
Single Family Residence
Neighborhood:
269yucaipacalimesaoakglen
Listed Date:
Nov 29, 2025
Finished Sq Ft:
1,052
Lot Size:
15,300 sqft / 0.35 acres (approx)
Year Built:
1940
See this Listing
Schools
School District:
Yucaipa/Calimesa Unified
Interior
Appliances
MW, RF, PO, PS, BIR, CO, HEWH, PWH, HOD, SEF, SCO, VEF
Bathrooms
1 Full Bathroom, 1 Three Quarter Bathroom
Cooling
CA, ELC, SR13
Flooring
WOOD, CARP
Heating
ELC, FA, PRO, CF, WDS, ES
Laundry Features
IR, IN, PRO, DINC, WH, WINC
Exterior
Community Features
RUR, FHL, MTN, HIKI, BIKI
Exterior Features
LIT, RG
Other Structures
SH
Parking Spots
7
Roof
CMP
Financial
Map
Community
- Address39370 Clearwater DR Lot 4 Yucaipa CA
- CityYucaipa
- CountySan Bernardino
- Zip Code92399
Market Summary
Current real estate data for Single Family in Yucaipa as of Dec 04, 2025
121
Single Family Listed
50
Avg DOM
247
Avg $ / SqFt
$522,804
Avg List Price
Property Summary
- 39370 Clearwater DR Lot 4 Yucaipa CA is a Single Family for sale in Yucaipa, CA, 92399. It is listed for $599,900 and features 1 beds, 2 baths, and has approximately 1,052 square feet of living space, and was originally constructed in 1940. The current price per square foot is $570. The average price per square foot for Single Family listings in Yucaipa is $247. The average listing price for Single Family in Yucaipa is $522,804.
Similar Listings Nearby
39370 Clearwater DR Lot 4
Yucaipa, CA



































