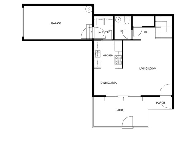
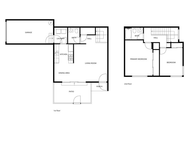
Welcome to 20333 Cranberry Lane, an ideally located 2-bedroom 1.5-bathroom condo in the Fairmont Hill community of Yorba Linda. This up-and-down unit includes an attached garage with direct entry to the home. Downstairs you’ll find a spacious living area, kitchen with fresh white cabinetry and stainless steel appliances, including a brand new dishwasher and garbage disposal, as well as the powder bathroom and dedicated laundry room. Upstairs are the 2 good sized bedrooms and full bathroom. The entire home has been repainted and new carpet has been installed. It’s a nice blank slate for its new owner to put their own personal touches on it and call it their own! As a resident, you’ll have access to a wealth of amenities, including 2 swimming pools with hot tubs, a kids’ playground, a sand volleyball court, a racquetball court, and much more! The monthly HOA fee covers basic cable, as well as trash, making for convenient and hassle-free living. The location is unbeatable, with easy access to the 91 Freeway and excellent shopping options such as Yorba Linda Town Center and Savi Ranch. Fun & Recreation is a half-mile away at Yorba Linda Regional Park! Fairmont Hill is also zoned for some of the top-rated schools in Pla-Yorba Linda USD, including Glenknoll Elementary, Bernardo Yorba Middle School/Orange County School of Computer Sciences, and Esperanza High School. Fairmont Hill is also FHA approved. FHA buyers are welcome! 20333 Cranberry; You Will LOVE Living Here!
Property Details
Price:
$625,000
MLS #:
PW25259652
Status:
Active
Beds:
2
Baths:
2
Type:
Condo
Subtype:
Condominium
Subdivision:
Fairmont Hill FRHL
Neighborhood:
85
Listed Date:
Nov 20, 2025
Finished Sq Ft:
1,017
Lot Size:
166,158 sqft / 3.81 acres (approx)
Year Built:
1976
See this Listing
Schools
School District:
Placentia-Yorba Linda Unified
Interior
Bathrooms
1 Full Bathroom, 1 Half Bathroom
Cooling
CA
Laundry Features
IN
Exterior
Community Features
SDW, SUB, PARK, HIKI
Parking Spots
1
Financial
HOA Fee
$370
HOA Frequency
MO
Map
Community
- AddressCranberry LN Yorba Linda CA
- SubdivisionFairmont Hill (FRHL)
- CityYorba Linda
- CountyOrange
- Zip Code92886
Subdivisions in Yorba Linda
- Alta Mira ALTM
- Belcanto BELC
- Brighton Ridge BRIR
- Bryant Ranch BRYA
- Canterbury CANT
- Casa Loma CALO
- East Lake Village Homes ELVH
- Emerald Crest EMCR
- Fairgreen FRGN
- Fairmont Hill FRHL
- Hidden Hills Estates HHES
- La Terraza II LAT2
- Lake Park LKPK
- Meadowood MEAW
- Mount San Antonio MTSA
- Pointe at East Lake PONT
- Serra SERA
- Sun Country I SUN1
- Terra Linda TERL
- The Hills HILL
- Travis Country TRVC
- Troy Estates TROY
- Vista Estates VSES
- Woodgate WODG
- Yorba Hills YRHL
- Yorba Linda Homes YRLH
- Yorba Linda Knolls Estates YRLK
- Yorba Linda Knolls Townhomes YRKT
- Yorba Linda Rose CourtYLRC
Market Summary
Current real estate data for Condo in Yorba Linda as of Nov 21, 2025
14
Condo Listed
38
Avg DOM
572
Avg $ / SqFt
$594,342
Avg List Price
Property Summary
- Located in the Fairmont Hill (FRHL) subdivision, Cranberry LN Yorba Linda CA is a Condo for sale in Yorba Linda, CA, 92886. It is listed for $625,000 and features 2 beds, 2 baths, and has approximately 1,017 square feet of living space, and was originally constructed in 1976. The current price per square foot is $615. The average price per square foot for Condo listings in Yorba Linda is $572. The average listing price for Condo in Yorba Linda is $594,342.
Similar Listings Nearby
Cranberry LN
Yorba Linda, CA




































































