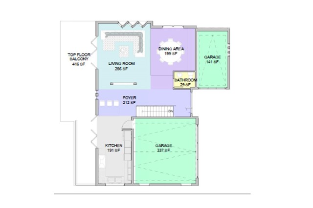
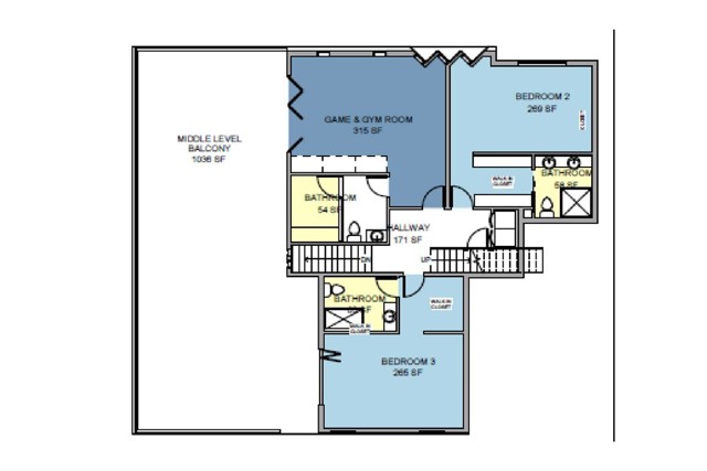
Views! Views! Views! RTI! RTI! RTI! Approved Plans, Ready to Issue! Great opportunity for Builders, Investors and or Individuals who have been waiting to build their own DREAM HOME. This spectacular South of the Boulevard location has breathtaking views of Santa Monica Mountains, Woodland Hills and Calabasas areas and is ready for your imagination. The property is located in a multi million dollar neighborhood and is adjacent to “The Heights”. Approved plans and more information available upon request.
Property Details
Price:
$499,000
MLS #:
SR25037331
Status:
Active
Beds:
0
Baths:
0
Type:
Land
Neighborhood:
whll
Listed Date:
Aug 13, 2025
Lot Size:
17,790 sqft / 0.41 acres (approx)
See this Listing
Schools
Interior
Exterior
Community Features
SUB
Financial
Map
Community
- Address22552 Uhea Lot 84 Woodland Hills CA
- CityWoodland Hills
- CountyLos Angeles
- Zip Code91364
Subdivisions in Woodland Hills
Market Summary
Current real estate data for Land in Woodland Hills as of Nov 26, 2025
14
Land Listed
154
Avg DOM
$898,350
Avg List Price
Property Summary
- 22552 Uhea Lot 84 Woodland Hills CA is a Land for sale in Woodland Hills, CA, 91364. It is listed for $499,000 and features 0 acres.
Similar Listings Nearby
22552 Uhea Lot 84
Woodland Hills, CA










