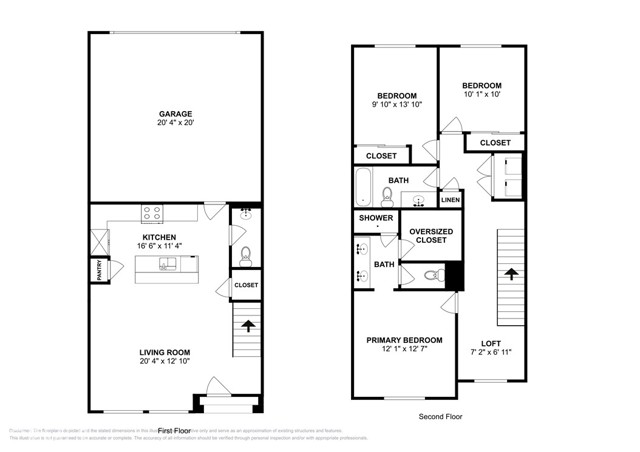
This home is professionally managed by Tricon Residential, dedicated to creating exceptional rental experiences. Featuring three bedrooms, two and one half bathrooms, and approximately 1,361 square feet, this townhome offers a high standard of rental living, supported by a team that puts residents first. Tricon Wildomar is a beautiful Spanish-inspired gated community centrally located just one hour from San Diego and Orange County. Enjoy virtually maintenance-free living with the conveniences of solar and smart home technology including automatic thermostat control and keyless front door entry all designed to provide an exceptional living experience. Every home includes an open-concept design, gourmet kitchens with quartz countertops and stainless steel appliances. Enjoy well-maintained amenities including a sparking pool with wifi, tot lot/playground, dog park, fitness center and clubhouse with rentable event space.
Property Details
Price:
$3,049
MLS #:
SW25141387
Status:
Active
Beds:
3
Baths:
3
Type:
Single Family
Subtype:
Townhouse
Neighborhood:
srcar
Listed Date:
Jun 24, 2025
Finished Sq Ft:
1,361
Lot Size:
1,000 sqft / 0.02 acres (approx)
Year Built:
2024
See this Listing
Schools
School District:
Lake Elsinore Unified
Interior
Appliances
DW, GD, MW, RF, GO, GR
Bathrooms
2 Full Bathrooms, 1 Half Bathroom
Cooling
CA
Heating
CF
Laundry Features
DINC, WINC
Exterior
Community Features
SDW, SL, DGP
Parking Spots
2
Financial
Map
Community
Market Summary
Current real estate data for Single Family in Wildomar as of Nov 03, 2025
92
Single Family Listed
64
Avg DOM
249
Avg $ / SqFt
$554,496
Avg List Price
Property Summary
- Creer CT Wildomar CA is a Single Family for sale in Wildomar, CA, 92595. It is listed for $3,049 and features 3 beds, 3 baths, and has approximately 1,361 square feet of living space, and was originally constructed in 2024. The current price per square foot is $2. The average price per square foot for Single Family listings in Wildomar is $249. The average listing price for Single Family in Wildomar is $554,496.
Similar Listings Nearby
Creer CT
Wildomar, CA































