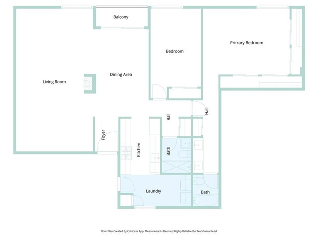
Move-in ready first-floor condo in the Hampton West Condominiums blends modern comfort with prime West Hollywood living. This two-bedroom, two-bath property features an upgraded kitchen with custom cabinetry, quartz countertops and new stainless-steel appliances. Both bathrooms are fully remodeled and the open living space flows to a private balcony. Highlights include a gas fireplace, designer fixtures, upgraded electrical panel and laminate floors. The building provides an exercise room and secured parking. Perfectly located between Santa Monica and Downtown LA, the property is within walking distance of premier dining, shopping and nightlife. Enjoy nearby landmarks such as the Hollywood Bowl, Griffith Observatory and Plummer Park, which offers tennis, basketball, and green space. Trader Joe’s and Whole Foods are close for convenience. This home offers a balance of style, comfort and access to everything that defines the West Hollywood lifestyle.
Property Details
Price:
$820,000
MLS #:
DW25260004
Status:
Active
Beds:
2
Baths:
2
Type:
Condo
Subtype:
Condominium
Neighborhood:
c10
Listed Date:
Nov 13, 2025
Finished Sq Ft:
1,645
Lot Size:
15,483 sqft / 0.36 acres (approx)
Year Built:
1981
See this Listing
Schools
School District:
Los Angeles Unified
Interior
Bathrooms
2 Full Bathrooms
Cooling
CA
Flooring
LAM
Heating
CF
Laundry Features
IK
Exterior
Architectural Style
CNT
Community Features
SDW
Construction Materials
STC
Parking Spots
3
Roof
FLTR
Security Features
AG
Financial
HOA Fee
$500
HOA Fee 2
$150
HOA Frequency
MO
Map
Community
- Address7505 Hampton Avenue #4 Lot 1 West Hollywood CA
- CityWest Hollywood
- CountyLos Angeles
- Zip Code90046
Market Summary
Current real estate data for Condo in West Hollywood as of Nov 26, 2025
95
Condo Listed
50
Avg DOM
1,038
Avg $ / SqFt
$1,508,612
Avg List Price
Property Summary
- 7505 Hampton Avenue #4 Lot 1 West Hollywood CA is a Condo for sale in West Hollywood, CA, 90046. It is listed for $820,000 and features 2 beds, 2 baths, and has approximately 1,645 square feet of living space, and was originally constructed in 1981. The current price per square foot is $498. The average price per square foot for Condo listings in West Hollywood is $1,038. The average listing price for Condo in West Hollywood is $1,508,612.
Similar Listings Nearby
7505 Hampton Avenue #4 Lot 1
West Hollywood, CA


































