NEW CONSTRUCTION WITH ITS OWN ENTERANCE! 2024 New Single Story ADU House. This move-in ready beauty boasts 3 beds & 2 full baths with individual AC for each room, in-unit laundry, recess lights, and a private backyard! The high ceiling in the living room brings in that wow factor and the open concept floorplan connects living, dining, and kitchen into one spacious area for the family to enjoy. The kitchen features new quartz countertop, stainless steel appliances, and plenty of cabinet space. The master bedroom suite has its own en-suite bathroom and a walk-in closet. There are 2 more bedrooms and a separate bathroom for them to use. The backyard and front door area are fenced all around for your privacy. Located in a quiet residential neighborhood, minutes from Target, Walmart, restaurants, schools, and many more. This home won’t last long, schedule your showing today!!
Property Details
Price:
$3,200
MLS #:
WS25277784
Status:
Active
Beds:
3
Baths:
2
Type:
Single Family
Subtype:
Single Family Residence
Neighborhood:
wehwesthills
Listed Date:
Dec 18, 2025
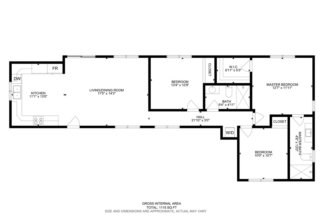
Finished Sq Ft:
1,115
Lot Size:
2,500 sqft / 0.06 acres (approx)
Year Built:
2024
See this Listing
Schools
School District:
Los Angeles Unified
Interior
Bathrooms
2 Full Bathrooms
Cooling
CA
Laundry Features
IN
Exterior
Community Features
SUB
Financial
Map
Community
- Address23393 Schoolcraft ST West Hills CA
- CityWest Hills
- CountyLos Angeles
- Zip Code91307
Market Summary
Current real estate data for Single Family in West Hills as of Dec 19, 2025
80
Single Family Listed
29
Avg DOM
397
Avg $ / SqFt
$852,443
Avg List Price
Property Summary
- 23393 Schoolcraft ST West Hills CA is a Single Family for sale in West Hills, CA, 91307. It is listed for $3,200 and features 3 beds, 2 baths, and has approximately 1,115 square feet of living space, and was originally constructed in 2024. The current price per square foot is $3. The average price per square foot for Single Family listings in West Hills is $397. The average listing price for Single Family in West Hills is $852,443.
Similar Listings Nearby
23393 Schoolcraft ST
West Hills, CA

























