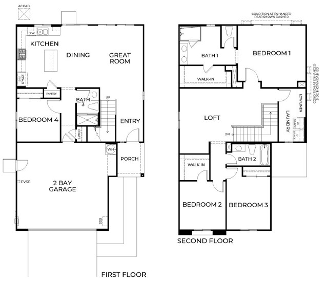
NEW CONSTRUCTION – SINGLE-FAMILY HOMES – NEW COMMUNITY! Welcome to Dawson Pointe at West Creek, an amazing and unique new community located in the city of Victorville. Featuring 168 residences with thoughtfully-designed layouts and energy efficiency in mind, Dawson Pointe at West Creek offers one and two-story homes ranging from 1,310 sq. ft. to 2,260 sq. ft. and up to 5 bedrooms and 3 bathrooms. A beautiful, long entry sets the stage for this Residence 2057 plan which features a spacious, open-concept Great Room and Kitchen space designed for celebrations together. You’ll love the convenient MAIN FLOOR BEDROOM, offering the flexibility to serve as a bedroom, or as an extra office or creative space, AND MAIN FLOOR FULL BATH. The gourmet Kitchen with separate Dining area and large Kitchen Island showcases granite counter tops, stainless-steel appliances and a convenient pantry and sliding doors that lead to a great backyard, ready for your imagination. Upstairs, an expansive Loft space leads to two, generous additional bedrooms, a secondary bath and a nicely-sized laundry room! The expansive Primary Bedroom is like a separate retreat and leads to a luxurious, large Primary Bath with walk-in-shower, dual sink vanity and large, walk-in closet. Among the other features and finishes, homeowners will appreciate the unparalleled peace of mind in owning America’s Smart Home, Home is Connected. The Home is Connected package offers devices conveniently controlled though one application to stay connected to Home around the clock.
Property Details
Price:
$512,474
MLS #:
SW25145505
Status:
P
Beds:
4
Baths:
3
Type:
Single Family
Subtype:
Single Family Residence
Neighborhood:
vic
Listed Date:
Oct 20, 2025
Finished Sq Ft:
2,057
Lot Size:
4,200 sqft / 0.10 acres (approx)
Year Built:
2025
See this Listing
Schools
School District:
Victor Valley Union High
Interior
Appliances
DW, GD, MW, EO, ER, WHU
Bathrooms
3 Full Bathrooms
Cooling
ELC
Flooring
VINY, CARP
Heating
ELC
Laundry Features
ELC, IR, IN, UL, WH
Exterior
Architectural Style
TRD
Community Features
SDW, STM, SL, CRB
Construction Materials
STC, DWAL
Parking Spots
2
Roof
TLE
Security Features
COD, FSDS, FS
Financial
Map
Community
- AddressTomahawk ST Lot 64 Victorville CA
- CityVictorville
- CountySan Bernardino
- Zip Code92394
Market Summary
Current real estate data for Single Family in Victorville as of Oct 29, 2025
349
Single Family Listed
47
Avg DOM
223
Avg $ / SqFt
$412,563
Avg List Price
Property Summary
- Tomahawk ST Lot 64 Victorville CA is a Single Family for sale in Victorville, CA, 92394. It is listed for $512,474 and features 4 beds, 3 baths, and has approximately 2,057 square feet of living space, and was originally constructed in 2025. The current price per square foot is $249. The average price per square foot for Single Family listings in Victorville is $223. The average listing price for Single Family in Victorville is $412,563.
Similar Listings Nearby
Tomahawk ST Lot 64
Victorville, CA



