Luxury 2025 Rebuild: Existing duplex completely taken down to the studs and reconstructed with new electrical, plumbing, roofing, exterior, and
designer-level interiors. Two High-End 3 Bed / 2 Bath Residences: Approx. 1,300 sq ft each with open-concept living, private balcony or patio, inunit laundry, central AC, spacious primary suites, and all-new premium finishes, fixtures, flooring, and cabinetry. Modern ADU Development
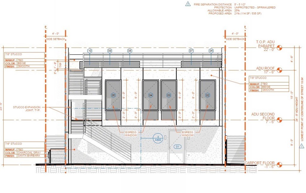
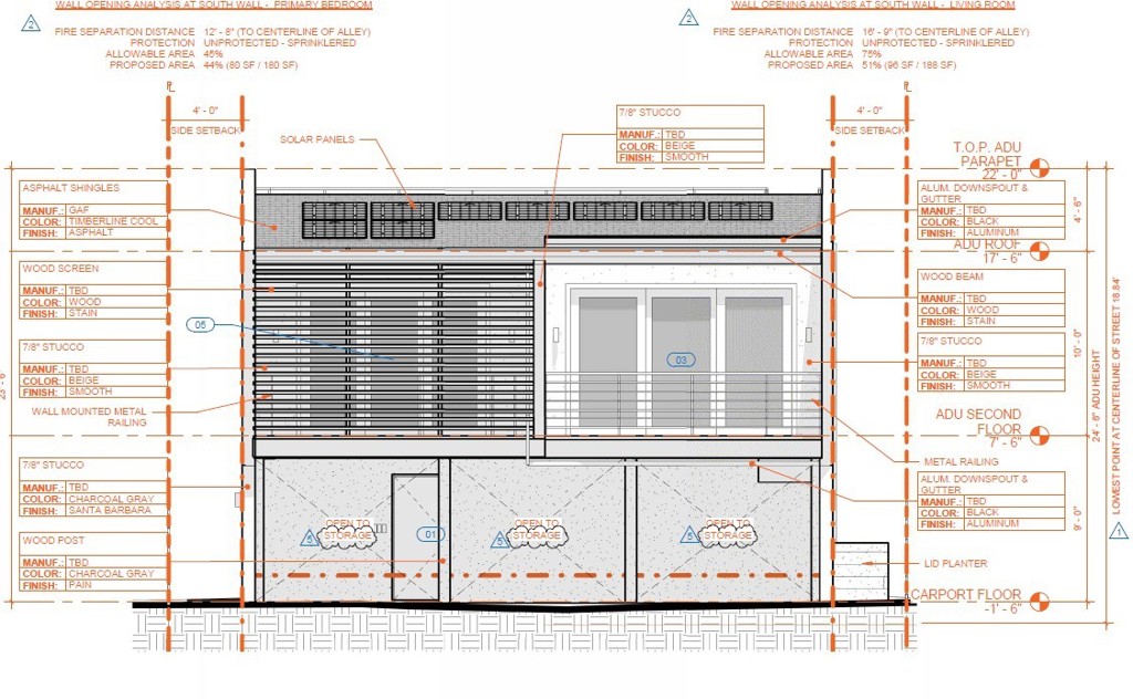
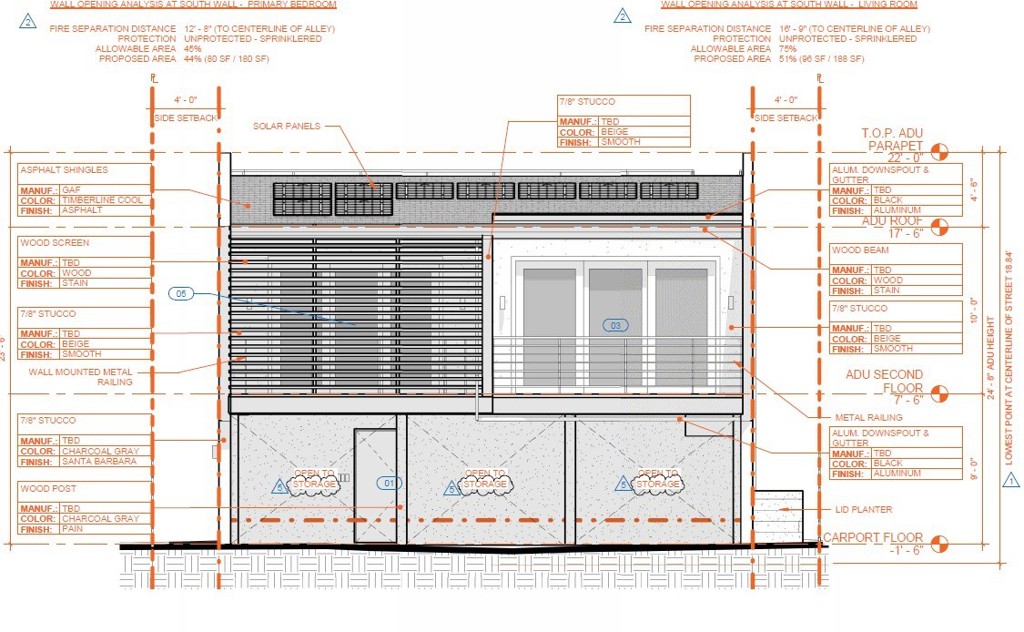
Opportunity: Fully approved RTI plans for a stylish 1,185 sq ft freestanding ADU, featuring second-story living, open kitchen and living areas, a
luxe primary suite with walk-in closet, private balcony, and in-unit laundry. Exceptional Site Layout: Large 5,200 sq ft street-to-alley lot with six
parking spaces positioned below the future ADU for optimal functionality. Elevated Income Potential: Projected combined market rents of $6,500+
per month across all three units. Premium Investment Appeal: Enjoy the stability and long-term durability of new construction paired with built-in
upside through completing the shovel-ready ADU. Live in a brand new separate home and cover your entire mortgage with rental income.
designer-level interiors. Two High-End 3 Bed / 2 Bath Residences: Approx. 1,300 sq ft each with open-concept living, private balcony or patio, inunit laundry, central AC, spacious primary suites, and all-new premium finishes, fixtures, flooring, and cabinetry. Modern ADU Development
Opportunity: Fully approved RTI plans for a stylish 1,185 sq ft freestanding ADU, featuring second-story living, open kitchen and living areas, a
luxe primary suite with walk-in closet, private balcony, and in-unit laundry. Exceptional Site Layout: Large 5,200 sq ft street-to-alley lot with six
parking spaces positioned below the future ADU for optimal functionality. Elevated Income Potential: Projected combined market rents of $6,500+
per month across all three units. Premium Investment Appeal: Enjoy the stability and long-term durability of new construction paired with built-in
upside through completing the shovel-ready ADU. Live in a brand new separate home and cover your entire mortgage with rental income.
Property Details
Price:
$2,695,000
MLS #:
SB25269481
Status:
Active
Beds:
6
Baths:
4
Type:
Single Family
Subtype:
Duplex
Neighborhood:
c11venice
Listed Date:
Dec 7, 2025
Finished Sq Ft:
2,609
Lot Size:
5,201 sqft / 0.12 acres (approx)
Year Built:
1946
See this Listing
Schools
School District:
Los Angeles Unified
Interior
Bathrooms
4 Full Bathrooms
Cooling
DUC
Heating
DUC
Laundry Features
IN
Exterior
Community Features
URB
Construction Materials
STC
Roof
CMP
Financial
Map
Community
- Address528 Westminster AV Venice CA
- CityVenice
- CountyLos Angeles
- Zip Code90291
Subdivisions in Venice
Market Summary
Current real estate data for Single Family in Venice as of Dec 11, 2025
107
Single Family Listed
90
Avg DOM
808
Avg $ / SqFt
$1,747,908
Avg List Price
Property Summary
- 528 Westminster AV Venice CA is a Single Family for sale in Venice, CA, 90291. It is listed for $2,695,000 and features 6 beds, 4 baths, and has approximately 2,609 square feet of living space, and was originally constructed in 1946. The current price per square foot is $1,033. The average price per square foot for Single Family listings in Venice is $808. The average listing price for Single Family in Venice is $1,747,908.
Similar Listings Nearby
528 Westminster AV
Venice, CA



































