There are multiple listings for this address:
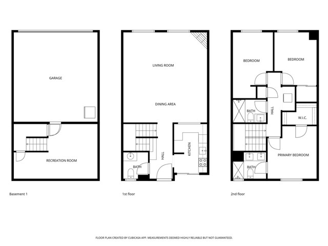
Discover modern elegance in this refined urban retreat—an exquisitely upgraded tri-level townhome set in the vibrant heart of Van Nuys. Spanning approximately 1,714 sq. ft., this sophisticated residence offers a completely upgraded 3 bedrooms, 2.5 baths.
The main level welcomes you with an open, light-filled layout enhanced by rich laminate flooring in the living and dining areas, smooth ceilings, and an effortless flow ideal for both relaxation and entertaining. The newly upgraded kitchen is a chef’s delight, showcasing sleek quartz countertops and backsplash, premium stainless steel appliances, breakfast bar, and custom luxury soft-close cabinetry. One half fully remodeled half bath shares the same 1st floor with an extra Large Living Room centered around your marble tiled gas fireplace ready for a cozy gathering of friends and families alike. All three bedrooms are thoughtfully positioned on the upper level, along with an in-unit washer and dryer and two beautifully remodel walk-in shower full baths. The expansive primary suite feels like a private retreat, complete with soaring ceilings, a skylight, a generous walk-in closet, and a spa-inspired en suite bath. The additional bedrooms offer comfort, style, and ample storage.
On the lower level, a versatile bonus room provides the perfect space for a home office, fitness studio, or creative workspace, with direct access to a private two-car garage.
Located within a secured and gated community, this exceptional home places you moments from major freeways, local parks, dining, and shopping destinations. Enjoy the local residential amenities such as Lake Balboa Park, Sepulveda Basin Recreation Area, and a commuters convenience to notable highlights such as CSUN, Northridge Mall, Sherman Oaks Galleria and Burbank Airport.
The main level welcomes you with an open, light-filled layout enhanced by rich laminate flooring in the living and dining areas, smooth ceilings, and an effortless flow ideal for both relaxation and entertaining. The newly upgraded kitchen is a chef’s delight, showcasing sleek quartz countertops and backsplash, premium stainless steel appliances, breakfast bar, and custom luxury soft-close cabinetry. One half fully remodeled half bath shares the same 1st floor with an extra Large Living Room centered around your marble tiled gas fireplace ready for a cozy gathering of friends and families alike. All three bedrooms are thoughtfully positioned on the upper level, along with an in-unit washer and dryer and two beautifully remodel walk-in shower full baths. The expansive primary suite feels like a private retreat, complete with soaring ceilings, a skylight, a generous walk-in closet, and a spa-inspired en suite bath. The additional bedrooms offer comfort, style, and ample storage.
On the lower level, a versatile bonus room provides the perfect space for a home office, fitness studio, or creative workspace, with direct access to a private two-car garage.
Located within a secured and gated community, this exceptional home places you moments from major freeways, local parks, dining, and shopping destinations. Enjoy the local residential amenities such as Lake Balboa Park, Sepulveda Basin Recreation Area, and a commuters convenience to notable highlights such as CSUN, Northridge Mall, Sherman Oaks Galleria and Burbank Airport.
Property Details
Price:
$550,000
MLS #:
PW25262279
Status:
Active
Beds:
4
Baths:
3
Type:
Townhouse
Neighborhood:
vn
Listed Date:
Nov 17, 2025
Finished Sq Ft:
1,714
Lot Size:
14,746 sqft / 0.34 acres (approx)
Year Built:
1993
See this Listing
Schools
School District:
Los Angeles Unified
Interior
Appliances
DW, EO, ER
Bathrooms
2 Full Bathrooms, 1 Half Bathroom
Cooling
CA
Flooring
LAM
Heating
CF
Laundry Features
IN, UL, DINC, WINC
Exterior
Architectural Style
TRD
Community Features
SDW, SL, URB, CRB
Parking Spots
2
Security Features
GC
Financial
HOA Fee
$350
HOA Frequency
MO
Map
Community
- AddressSherman WY #8 Lot 1 Van Nuys CA
- CityVan Nuys
- CountyLos Angeles
- Zip Code91406
Subdivisions in Van Nuys
Market Summary
Property Summary
- Sherman WY #8 Lot 1 Van Nuys CA is a Townhouse for sale in Van Nuys, CA, 91406. It is listed for $550,000 and features 4 beds, 3 baths, and has approximately 1,714 square feet of living space, and was originally constructed in 1993. The current price per square foot is $321. The average price per square foot for Townhouse listings in Van Nuys is $473. The average listing price for Townhouse in Van Nuys is $590,100.
Similar Listings Nearby
Sherman WY #8 Lot 1
Van Nuys, CA
Discover modern elegance in this refined urban retreat—an exquisitely upgraded tri-level townhome set in the vibrant heart of Van Nuys. Spanning approximately 1,714 sq. ft., this sophisticated residence offers a completely upgraded 3 bedrooms, 2.5 baths.
The main level welcomes you with an open, light-filled layout enhanced by rich laminate flooring in the living and dining areas, smooth ceilings, and an effortless flow ideal for both relaxation and entertaining. The newly upgraded kitchen is a chef’s delight, showcasing sleek quartz countertops and backsplash, premium stainless steel appliances, breakfast bar, and custom luxury soft-close cabinetry. One half fully remodeled half bath shares the same 1st floor with an extra Large Living Room centered around your marble tiled gas fireplace ready for a cozy gathering of friends and families alike. All three bedrooms are thoughtfully positioned on the upper level, along with an in-unit washer and dryer and two beautifully remodel walk-in shower full baths. The expansive primary suite feels like a private retreat, complete with soaring ceilings, a skylight, a generous walk-in closet, and a spa-inspired en suite bath. The additional bedrooms offer comfort, style, and ample storage.
On the lower level, a versatile bonus room provides the perfect space for a home office, fitness studio, or creative workspace, with direct access to a private two-car garage.
Located within a secured and gated community, this exceptional home places you moments from major freeways, local parks, dining, and shopping destinations. Enjoy the local residential amenities such as Lake Balboa Park, Sepulveda Basin Recreation Area, and a commuters convenience to notable highlights such as CSUN, Northridge Mall, Sherman Oaks Galleria and Burbank Airport.
The main level welcomes you with an open, light-filled layout enhanced by rich laminate flooring in the living and dining areas, smooth ceilings, and an effortless flow ideal for both relaxation and entertaining. The newly upgraded kitchen is a chef’s delight, showcasing sleek quartz countertops and backsplash, premium stainless steel appliances, breakfast bar, and custom luxury soft-close cabinetry. One half fully remodeled half bath shares the same 1st floor with an extra Large Living Room centered around your marble tiled gas fireplace ready for a cozy gathering of friends and families alike. All three bedrooms are thoughtfully positioned on the upper level, along with an in-unit washer and dryer and two beautifully remodel walk-in shower full baths. The expansive primary suite feels like a private retreat, complete with soaring ceilings, a skylight, a generous walk-in closet, and a spa-inspired en suite bath. The additional bedrooms offer comfort, style, and ample storage.
On the lower level, a versatile bonus room provides the perfect space for a home office, fitness studio, or creative workspace, with direct access to a private two-car garage.
Located within a secured and gated community, this exceptional home places you moments from major freeways, local parks, dining, and shopping destinations. Enjoy the local residential amenities such as Lake Balboa Park, Sepulveda Basin Recreation Area, and a commuters convenience to notable highlights such as CSUN, Northridge Mall, Sherman Oaks Galleria and Burbank Airport.
Property Details
Price:
$349,999
MLS #:
SR25139321
Status:
Pending
Beds:
2
Baths:
2
Type:
Condo
Subtype:
Townhouse
Neighborhood:
vn
Listed Date:
Sep 18, 2025
Finished Sq Ft:
1,012
Lot Size:
11,290 sqft / 0.26 acres (approx)
Year Built:
1993
See this Listing
Schools
School District:
Los Angeles Unified
Interior
Appliances
DW, EO, ER
Bathrooms
2 Full Bathrooms, 1 Half Bathroom
Cooling
CA
Flooring
LAM
Heating
CF
Laundry Features
IN, UL, DINC, WINC
Exterior
Architectural Style
TRD
Community Features
SDW, SL, URB, CRB
Parking Spots
2
Security Features
GC
Financial
HOA Fee
$350
HOA Frequency
MO
Map
Community
- AddressSherman WY #8 Lot 1 Van Nuys CA
- CityVan Nuys
- CountyLos Angeles
- Zip Code91406
Subdivisions in Van Nuys
Market Summary
Property Summary
- Sherman WY #8 Lot 1 Van Nuys CA is a Condo for sale in Van Nuys, CA, 91406. It is listed for $349,999 and features 2 beds, 2 baths, and has approximately 1,012 square feet of living space, and was originally constructed in 1993. The current price per square foot is $346. The average price per square foot for Condo listings in Van Nuys is $473. The average listing price for Condo in Van Nuys is $590,100.
































