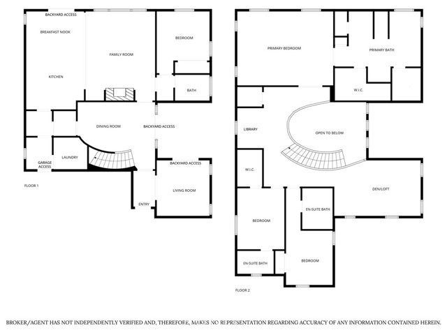
Welcome to 410 Hudson Drive, a Move-In Ready Dream Home Located on a Cul-De-Sac Street in the Tustin Fields Community. This Well-Appointed Home Showcases Four Bedrooms, Four Bathrooms (One Bedroom and Bathroom Located on the Main Floor), Detached Office, Bonus Room (Potential Fifth Bedroom), High Ceilings, Hardwood Floors, and an Abundance of Natural Light Throughout. The Formal Living Room Enjoys Plantation Shutters, Crown Molding, and Backyard Access. The Dining Room Features French Door Access to the Backyard, and Sits Adjacent to the Kitchen. The Chef’s Kitchen Boasts Quartz Counters, Island with Sink and Seating, Stainless Steel Appliances, Built-In Fridge, Dual Ovens, Built-In Desk Area, and Breakfast Nook with Backyard Access. The Family Room Showcases a Cozy Fireplace, Built-Ins, and Opens Directly to the Kitchen, Which is Perfect for Entertaining. The Spacious Master Suite Includes Dual Vanities, Makeup Vanity, Walk-In Shower, Separate Tub with Stone Surround, and Oversized Walk-In Closet. The Spacious Wraparound Backyard Includes a Patio with Stone Pavers, Grass Area, Built-In BBQ, Lush Landscaping, Fountain, Pergola, Playset, Multiple Seating Areas, and a Large Side Yard. Indoor Laundry Room with Built-In Cabinets, Sink, and Mud Room Space. Direct Access Two Car Garage with Epoxy Floors and Built-In Cabinets, and an Additional Detached One Car Garage. The Tustin Fields Community Boasts Incredible Amenities: Pool, Spa, BBQ Area, Playground, and Parks. Award Winning Irvine Unified School District. Steps Away From Shopping, Entertainment, and Restaurants at The District in Tustin. Easy Access to Freeways & Toll Roads. 410 Hudson Drive is a Must See!
Property Details
Price:
$2,300,000
MLS #:
PW25251310
Status:
Active
Beds:
4
Baths:
4
Type:
Single Family
Subtype:
Single Family Residence
Subdivision:
Ellyson Pointe ELLY
Neighborhood:
tf
Listed Date:
Nov 6, 2025
Finished Sq Ft:
3,360
Lot Size:
7,592 sqft / 0.17 acres (approx)
Year Built:
2005
See this Listing
Schools
School District:
Irvine Unified
Elementary School:
Other
Middle School:
Lakeside
High School:
Woodbridge
Interior
Appliances
DW, RF, GS, DO
Bathrooms
4 Full Bathrooms
Cooling
CA
Flooring
WOOD, CARP
Heating
CF
Laundry Features
IR, IN
Exterior
Community Features
SDW, SL, CRB
Exterior Features
BQ
Parking Spots
7
Financial
HOA Fee
$200
HOA Frequency
MO
Map
Community
- AddressHudson DR Lot 2 Tustin CA
- SubdivisionEllyson Pointe (ELLY)
- CityTustin
- CountyOrange
- Zip Code92782
Subdivisions in Tustin
- Ainsley Park AINS
- Alexandria ALEX
- Alicante ALIC
- Almeria AL
- Arborwalk ABWK
- Arcada ARCA
- Astoria ASTO
- Briar Cliff Condos BRCL
- Cambridge Lane CAML
- Cantada CANT
- Colony CLNY
- Corrigan CORR
- El Dorado ELDO
- Ellyson Pointe ELLY
- Estancia ESTA
- Estrella ESTR
- Macaw Cove MACC
- Madison MADI
- Madrid MADR
- Malaga MAL
- Mandevilla MAND
- Maricopa MARC
- Meriwether MERI
- Mirabella MIRA
- North Tustin Custom NTC
- Orchards ORCH
- Palmwood Gardens PALG
- Palo Vista PALV
- Park Tustin PRKT
- Presidio PRES
- Quail Meadows QLM
- Rancho San Juan RSJ
- Rancho Veracruz RV
- San Marino SANM
- San Miguel SNMG
- Sevilla SEV
- Shadow Canyon SHCA
- Sycamore Gardens SYGA
- Sycamore Glen SG
- Travilla TRAV
- Tustin Acres TA
- Tustin Grove TGRV
- Tustin Imperial TUSI
- Tustin Meadows TM
- Tustin Oaks TUSO
- Tustin Park Villas TPV
- Tustin Place TP
- Tustin Ranch Estates TSRE
- Tustin Verdes TUSV
- Tustin Village TV
- Ventana VENT
- Venturanza Del Verde VDV
- Verandas VERA
- Village Homes VH
- Williamshire Condos WMSH
- Wright\’s Landing WRIL
Market Summary
Current real estate data for Single Family in Tustin as of Nov 08, 2025
71
Single Family Listed
44
Avg DOM
295
Avg $ / SqFt
$772,482
Avg List Price
Property Summary
- Located in the Ellyson Pointe (ELLY) subdivision, Hudson DR Lot 2 Tustin CA is a Single Family for sale in Tustin, CA, 92782. It is listed for $2,300,000 and features 4 beds, 4 baths, and has approximately 3,360 square feet of living space, and was originally constructed in 2005. The current price per square foot is $685. The average price per square foot for Single Family listings in Tustin is $295. The average listing price for Single Family in Tustin is $772,482.
Similar Listings Nearby
Hudson DR Lot 2
Tustin, CA



































