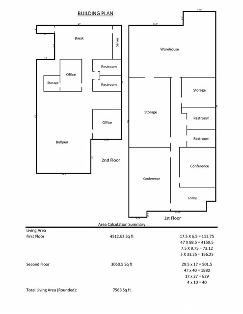
The subject property consists of a two-story industrial flex condominium containing a total gross and net rentable building area of 7,563 square feet.
Property Details
Price:
$2,750,811
MLS #:
TR21042498
Status:
P
Beds:
0
Baths:
0
Type:
Single Family
Subtype:
Mixed Use
Neighborhood:
133
Listed Date:
Sep 19, 2024
Total Sq Ft:
7,563
Lot Size:
278,386 sqft / 6.39 acres (approx)
Year Built:
2005
See this Listing
Schools
Interior
Laundry Features
NO
Exterior
Financial
Map
Community
Market Summary
Current real estate data for Single Family in Torrance as of Oct 29, 2025
205
Single Family Listed
50
Avg DOM
470
Avg $ / SqFt
$840,717
Avg List Price
Property Summary
- W 190th ST Torrance CA is a Single Family for sale in Torrance, CA, 90504. It is listed for $2,750,811 and features 0 beds, 0 baths, and has approximately 0 square feet of living space, and was originally constructed in 2005. The average price per square foot for Single Family listings in Torrance is $470. The average listing price for Single Family in Torrance is $840,717.
Similar Listings Nearby
W 190th ST
Torrance, CA


















