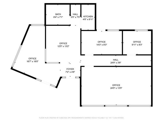
The property owner is searching for a Tenant that helps underprivileged families such as community outreach, youth programs, single mothers services, educational services, environmental justice, food and nutrition services, and other similar types. Semi newer construction, fully Remodeled in 2024 down to the wood frame, from floors to ceilings, plumbing, electrical, roof, HVAC, discover this exceptional professional building in Sun Valley, a premier opportunity now available for lease. Spanning 5,750 sq.ft. in total lot size, this property includes a versatile 1,249 sq. ft. of office or retail space and comes with the added convenience of 5 dedicated parking spaces and a prominent billboard. The building’s reception area welcomes you with its bright, airy ambiance, thanks to expansive glass walls and doors that flood the space with natural light. The thoughtfully designed layout features a well-equipped kitchenette, perfect for the comfort and convenience of employees. Additionally, a generously sized bathroom enhances functionality. The offices within this building are both luminous and spacious, offering an inviting work environment. The large conference room is a standout feature, with three sizable picture windows that provide an abundance of natural light and create an inspiring space for meetings and collaborative work. This property blends functionality with modern design, providing an ideal setting for professional endeavors. Available and move-in ready!
Property Details
Price:
$3,125
MLS #:
SR25039379
Status:
Active
Beds:
0
Baths:
0
Type:
Single Family
Subtype:
Office
Neighborhood:
sunv
Listed Date:
Jul 18, 2025
Total Sq Ft:
1,249
Lot Size:
5,752 sqft / 0.13 acres (approx)
Year Built:
1957
See this Listing
Schools
Interior
Cooling
CA
Heating
CF
Exterior
Parking Spots
5
Roof
ROL
Security Features
EXL, SS, SD, WSEC, COD
Financial
Map
Community
- Address8809 Sunland BL Sun Valley CA
- CitySun Valley
- CountyLos Angeles
- Zip Code91352
Market Summary
Current real estate data for Single Family in Sun Valley as of Nov 26, 2025
40
Single Family Listed
67
Avg DOM
463
Avg $ / SqFt
$764,204
Avg List Price
Property Summary
- 8809 Sunland BL Sun Valley CA is a Single Family for sale in Sun Valley, CA, 91352. It is listed for $3,125 and features 0 beds, 0 baths, and has approximately 0 square feet of living space, and was originally constructed in 1957. The average price per square foot for Single Family listings in Sun Valley is $463. The average listing price for Single Family in Sun Valley is $764,204.
Similar Listings Nearby
8809 Sunland BL
Sun Valley, CA























