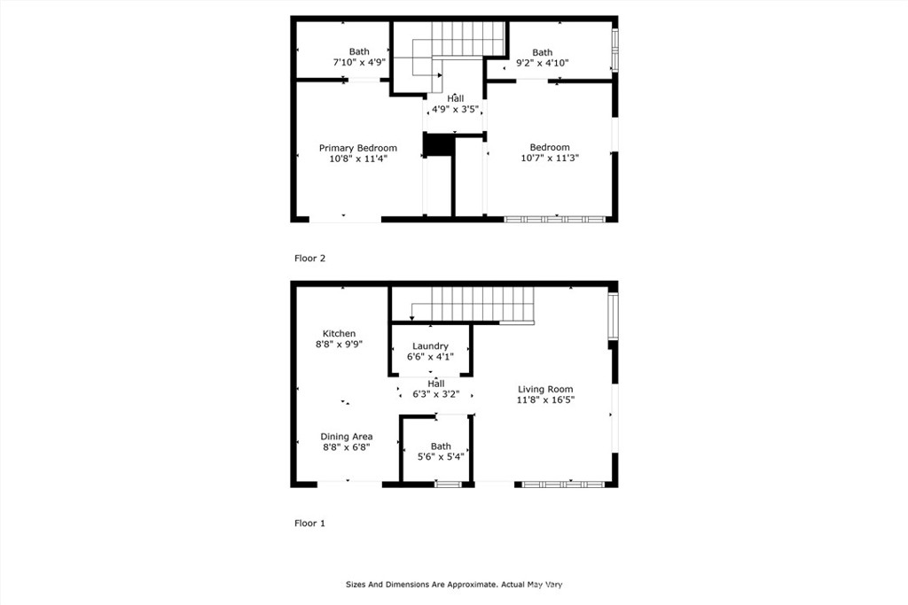
Welcome to this well-kept 2-bedroom, 2.5-bath condo on the Sherman Oaks/Van Nuys border! Filled with natural light from top to bottom, this home feels bright and welcoming the moment you step inside. It features tile and wood floors, plus recently updated bathrooms with modern finishes.
Both bedrooms are spacious and private, each with its own full bathroom and balcony, a perfect spot to enjoy some fresh air. Downstairs, you’ll also find a private patio and first-floor balcony for extra space to relax or entertain. Enjoy the convenience of having your own washer and dryer inside the unit, along with easy access to the Sepulveda Basin trails, local restaurants, coffee shops, and quick connections to the 405 and 101 freeways.
Both bedrooms are spacious and private, each with its own full bathroom and balcony, a perfect spot to enjoy some fresh air. Downstairs, you’ll also find a private patio and first-floor balcony for extra space to relax or entertain. Enjoy the convenience of having your own washer and dryer inside the unit, along with easy access to the Sepulveda Basin trails, local restaurants, coffee shops, and quick connections to the 405 and 101 freeways.
Property Details
Price:
$2,875
MLS #:
SB25225879
Status:
Active
Beds:
2
Baths:
3
Type:
Single Family
Subtype:
Condominium
Neighborhood:
soshermanoaks
Listed Date:
Nov 15, 2025
Finished Sq Ft:
902
Lot Size:
6,877 sqft / 0.16 acres (approx)
Year Built:
1991
See this Listing
Schools
School District:
Los Angeles Unified
Interior
Appliances
DW, RF, GS
Bathrooms
2 Full Bathrooms, 1 One Quarter Bathroom
Cooling
CA
Heating
CF
Laundry Features
IN, DINC, WINC
Exterior
Community Features
SL, CRB
Parking Spots
2
Security Features
SD, GC
Financial
Map
Community
- Address15153 Burbank BL #1 Sherman Oaks CA
- CitySherman Oaks
- CountyLos Angeles
- Zip Code91411
Subdivisions in Sherman Oaks
Market Summary
Current real estate data for Single Family in Sherman Oaks as of Dec 12, 2025
154
Single Family Listed
35
Avg DOM
386
Avg $ / SqFt
$1,272,216
Avg List Price
Property Summary
- 15153 Burbank BL #1 Sherman Oaks CA is a Single Family for sale in Sherman Oaks, CA, 91411. It is listed for $2,875 and features 2 beds, 3 baths, and has approximately 902 square feet of living space, and was originally constructed in 1991. The current price per square foot is $3. The average price per square foot for Single Family listings in Sherman Oaks is $386. The average listing price for Single Family in Sherman Oaks is $1,272,216.
Similar Listings Nearby
15153 Burbank BL #1
Sherman Oaks, CA



























