Introducing an exceptional opportunity for the discerning buyer seeking refined coastal living. This exquisite, corner townhome—masterfully designed by acclaimed architect William Brantley—offers a rare blend of sophistication, privacy, and sweeping ocean views.
Enjoy the ambiance of a single-family residence with the convenience of townhome living, just moments from the beach and the vibrant energy of Santa Monica’s Main Street. Whether you’re savoring a quiet morning coffee or hosting an elegant evening gathering, five private outdoor spaces—including a spectacular rooftop terrace—provide the perfect setting for relaxation and entertaining.
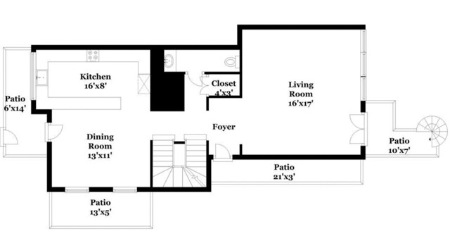
Inside, the residence is bathed in natural light from dramatic two-story ceilings, creating an airy, inviting atmosphere. The flexible layout features two spacious bedrooms, a versatile loft, and two and a half beautifully appointed bathrooms. The gourmet kitchen is a chef’s delight, seamlessly connecting to the open dining area and patio for effortless indoor-outdoor living.
Thoughtful upgrades abound, including rich hardwood floors, designer finishes. A private, direct-access two-car garage, generous walk-in closets, and ample storage further enhance the home’s appeal.
This is a rare chance to own a meticulously updated, architecturally significant home in one of Santa Monica’s most coveted locations—crafted for those who demand the very best.
Enjoy the ambiance of a single-family residence with the convenience of townhome living, just moments from the beach and the vibrant energy of Santa Monica’s Main Street. Whether you’re savoring a quiet morning coffee or hosting an elegant evening gathering, five private outdoor spaces—including a spectacular rooftop terrace—provide the perfect setting for relaxation and entertaining.
Inside, the residence is bathed in natural light from dramatic two-story ceilings, creating an airy, inviting atmosphere. The flexible layout features two spacious bedrooms, a versatile loft, and two and a half beautifully appointed bathrooms. The gourmet kitchen is a chef’s delight, seamlessly connecting to the open dining area and patio for effortless indoor-outdoor living.
Thoughtful upgrades abound, including rich hardwood floors, designer finishes. A private, direct-access two-car garage, generous walk-in closets, and ample storage further enhance the home’s appeal.
This is a rare chance to own a meticulously updated, architecturally significant home in one of Santa Monica’s most coveted locations—crafted for those who demand the very best.
Property Details
Price:
$2,200,000
MLS #:
SR25160569
Status:
A
Beds:
2
Baths:
3
Type:
Single Family
Subtype:
Condominium
Neighborhood:
c14
Listed Date:
Jul 19, 2025
Finished Sq Ft:
2,117
Lot Size:
22,510 sqft / 0.52 acres (approx)
Year Built:
1999
See this Listing
Schools
School District:
Santa Monica-Malibu Unified
Interior
Appliances
DW, GD, MW, RF, GR, WHU
Bathrooms
2 Full Bathrooms, 1 Half Bathroom
Cooling
CA
Flooring
TILE, WOOD
Heating
FA
Laundry Features
ELC, IR, WH
Exterior
Architectural Style
CNT
Community Features
PARK
Parking Spots
2
Roof
TARGRV
Security Features
AG
Financial
HOA Fee
$1,000
HOA Frequency
MO
Map
Community
- Address3rd ST #1 Lot 1 Santa Monica CA
- CitySanta Monica
- CountyLos Angeles
- Zip Code90405
Subdivisions in Santa Monica
Market Summary
Current real estate data for Single Family in Santa Monica as of Oct 29, 2025
138
Single Family Listed
75
Avg DOM
1,096
Avg $ / SqFt
$2,834,084
Avg List Price
Property Summary
- 3rd ST #1 Lot 1 Santa Monica CA is a Single Family for sale in Santa Monica, CA, 90405. It is listed for $2,200,000 and features 2 beds, 3 baths, and has approximately 2,117 square feet of living space, and was originally constructed in 1999. The current price per square foot is $1,039. The average price per square foot for Single Family listings in Santa Monica is $1,096. The average listing price for Single Family in Santa Monica is $2,834,084.
Similar Listings Nearby
3rd ST #1 Lot 1
Santa Monica, CA



















































