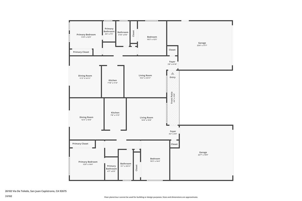
Welcome to this highly desired single-story duplex WEST of the 5 fwy! Two private units, each featuring approx 1112 sqft of living space for a total of 2224 square feet! Courtyard entrance leads you to 2 spacious bedrooms & 2 full bathrooms, including a 2 car attached garage, and spacious backyard with no rear neighbor. These ideal units are perfect for investors or multigenerational living. How about owner-occupants looking to offset their mortgage with rental income? Large galley kitchens with countertop seating and generous dining area. Private fenced park-like backyards with patios. Roof was replaced in 2020 and a termite clearance will be completed. Great tucked away community is walking distance to parks, tennis courts, and schools. RV storage is also available. Convenient freeway, shopping and dining access. Desirable community where homes do not become available often. Great opportunity here to add to your rental portfolio or get your foot in the door by living in one unit and renting the other! This duplex is a rare find with great income potential and long-term value.
Property Details
Price:
$1,650,000
MLS #:
OC25274282
Status:
Active
Beds:
4
Baths:
4
Type:
Single Family
Subtype:
Duplex
Subdivision:
Saddleback Capistrano SAD
Neighborhood:
dodelobispo
Listed Date:
Dec 10, 2025
Finished Sq Ft:
2,224
Lot Size:
8,712 sqft / 0.20 acres (approx)
Year Built:
1973
See this Listing
Schools
School District:
Capistrano Unified
Interior
Appliances
DW, GR
Bathrooms
4 Full Bathrooms
Cooling
NO
Flooring
VINY, CARP
Heating
CF
Laundry Features
GE, IG
Exterior
Community Features
SDW, STM, SL, CW
Construction Materials
STC
Parking Spots
8
Roof
CMP, TARGRV
Financial
HOA Fee
$120
HOA Frequency
ANU
Map
Community
- Address26186 Via De Toledo San Juan Capistrano CA
- SubdivisionSaddleback Capistrano (SAD)
- CitySan Juan Capistrano
- CountyOrange
- Zip Code92675
Subdivisions in San Juan Capistrano
- Alipaz ALIP
- Bellacere BELA
- Belle Cliff BELC
- Capistrano Valley Mobile CVM
- Capistrano Villa Apts CVA
- Captain’s Hill CN
- Casa De Capistrano DC
- Casitas De Alipaz CA
- Hunt Club HC
- Hunters Creek HUC
- Loma Verde LJ
- Los Corrales LC
- Marbella Estates Custom MBC
- Mariner Village MVL
- Meredith Canyon MC
- Mesa Verde MSV
- Mesa Vista Townhomes MVI
- Mission Park MP
- Mizener Custom Homes MZ
- Paseo De La Paz PZ
- Rancho Alipaz Mobile RAM
- Rancho Del Avion RDA
- Rancho Madrina RMAR
- San Juan Hills JH
- San Juan Terrace JT
- Sea Country Pacifics San Juan BELSC
- Spotted Bull Lane SB
- Strawberry Lane SL
- Troy Homes TH
- Valle Pacifica VA
- Villa San Juan Mobile VSJ
- Wesport Garden Homes WG
Market Summary
Current real estate data for Single Family in San Juan Capistrano as of Dec 12, 2025
49
Single Family Listed
42
Avg DOM
486
Avg $ / SqFt
$1,542,324
Avg List Price
Property Summary
- Located in the Saddleback Capistrano (SAD) subdivision, 26186 Via De Toledo San Juan Capistrano CA is a Single Family for sale in San Juan Capistrano, CA, 92675. It is listed for $1,650,000 and features 4 beds, 4 baths, and has approximately 2,224 square feet of living space, and was originally constructed in 1973. The current price per square foot is $742. The average price per square foot for Single Family listings in San Juan Capistrano is $486. The average listing price for Single Family in San Juan Capistrano is $1,542,324.
Similar Listings Nearby
26186 Via De Toledo
San Juan Capistrano, CA

































