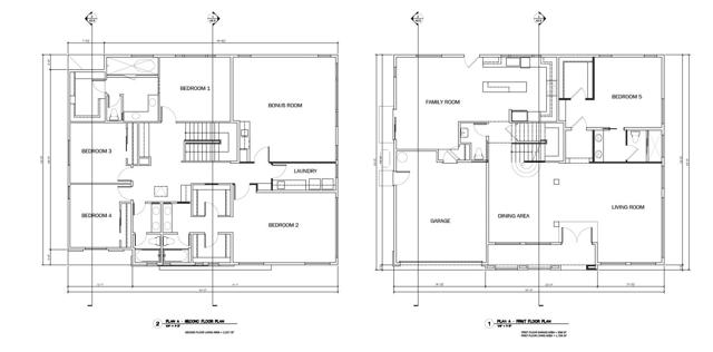
An exceptional opportunity for builders, investors, or visionaries – this property is being subdivided under California’s SB-330, with plans in the final stages of approval for 3 single-family homes. Each home is situated on its own parcel, measuring approximately 0.27-0.45 acres. Each residence is planned at approximately 4,000 square feet of living area, offering spacious layouts ideal for modern living. The parcels also provide potential for ADUs – creating flexibility for extended family, guest suites, or rental income. Located in the highly desirable Leland High School district, the site is tucked away at the base of a hill in a peaceful neighborhood. The proposed homes are thoughtfully designed to take advantage of the natural setting, with future balconies offering scenic views of the Almaden Valley. All the hard work has been done – just take the plans, build the homes, choose your finishes, and you’re done. With convenient utility access and a prime South Bay location, this is a compelling opportunity for efficient and profitable development. Buyers to verify all development potential, zoning requirements, and SB-330 compliance with the local planning department. Don’t miss this rare chance to build in one of San Jose’s most sought-after school districts.
Property Details
Price:
$5,500,000
MLS #:
ML82003242
Status:
Active
Beds:
0
Baths:
0
Type:
Land
Neighborhood:
699
Listed Date:
Oct 14, 2025
Lot Size:
50,094 sqft / 1.15 acres (approx)
See this Listing
Schools
School District:
San Jose Unified
Interior
Exterior
Financial
Map
Community
- AddressHill LN San Jose CA
- CitySan Jose
- CountySanta Clara
- Zip Code95120
Subdivisions in San Jose
Market Summary
Property Summary
- Hill LN San Jose CA is a Land for sale in San Jose, CA, 95120. It is listed for $5,500,000 and features 1 acres.
Similar Listings Nearby
Hill LN
San Jose, CA



















