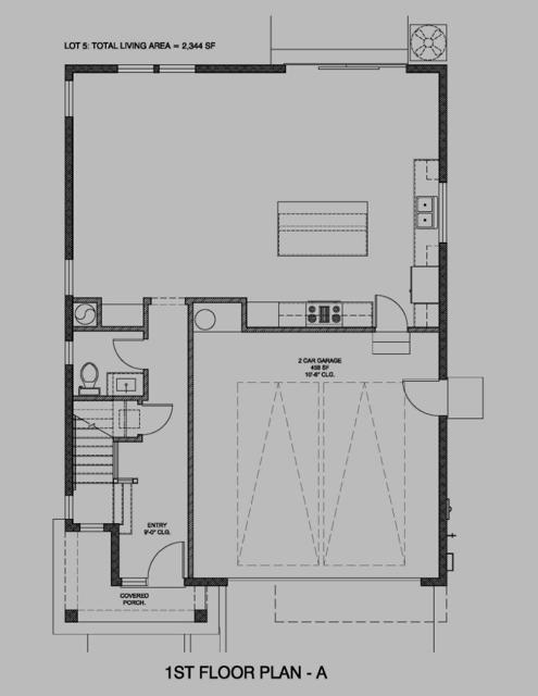
OPEN HOUSE ONLY AT MODEL HOME AT 1504 Love Court: USE 1537 Camden Village Circle for your GPS to find the development. $25K Builder Credit! Welcome to Camden Estates, an enclave of 7 brand-new homes nestled near the foothills of Almaden Valley, with highly-ranked schools nearby. Upon entry, the main level unfolds with a generous great room featuring a sleek fireplace seamlessly connected to an Epicurean’s kitchen, which features top-tier appliances and a spacious island. Ascend the staircase to the upper level, where the Primary Suite awaits with a custom walk-in closet and a lavish bath that includes an expansive glass-enclosed shower and dual vanities. Three additional bedrooms, a full bath, and a convenient Laundry Room round out the second level. The private backyard offers an ample patio perfect for outdoor entertaining. Additional details of this property include wire-brushed natural white oak flooring, designer plumbing and light fixtures, dual-zone high-efficiency HVAC with NEST thermostats, a NEST doorbell, CAT-6 wiring, a multimedia panel, prepped for electric car charger, owned solar, and so much more. Photos are of Model Home
Property Details
Price:
$2,099,998
MLS #:
ML82020573
Status:
Active
Beds:
4
Baths:
3
Type:
Single Family
Subtype:
Single Family Residence
Neighborhood:
699
Listed Date:
Sep 5, 2025
Finished Sq Ft:
2,344
Lot Size:
4,033 sqft / 0.09 acres (approx)
Year Built:
2025
See this Listing
Schools
School District:
Other
Elementary School:
Other
Middle School:
Dartmouth
Interior
Appliances
DW, GD, MW, RF
Bathrooms
2 Full Bathrooms, 1 Half Bathroom
Cooling
CA
Flooring
TILE, WOOD
Heating
ELC, CF
Exterior
Parking Spots
2
Roof
CMP
Financial
Map
Community
- Address1503 Love CT San Jose CA
- CitySan Jose
- CountySanta Clara
- Zip Code95124
Subdivisions in San Jose
Market Summary
Current real estate data for Single Family in San Jose as of Nov 28, 2025
455
Single Family Listed
519
Avg DOM
7,074
Avg $ / SqFt
$1,377,049
Avg List Price
Property Summary
- 1503 Love CT San Jose CA is a Single Family for sale in San Jose, CA, 95124. It is listed for $2,099,998 and features 4 beds, 3 baths, and has approximately 2,344 square feet of living space, and was originally constructed in 2025. The current price per square foot is $896. The average price per square foot for Single Family listings in San Jose is $7,074. The average listing price for Single Family in San Jose is $1,377,049.
Similar Listings Nearby
1503 Love CT
San Jose, CA








































