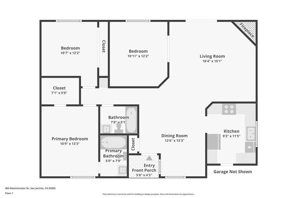
This charming home features 3 bedrooms and 2 full bathrooms. Upon entry, you are greeted by a dining area with laminate flooring and peaceful hillside views beyond. The light-filled kitchen is thoughtfully designed with a gas stove, pantry, and generous cabinetry. The welcoming living room is highlighted by a striking stone-veneer corner gas fireplace. The primary bedroom offers a large walk-in closet with an adjacent bathroom. Sliding doors extend the living space to a covered patio and a spacious, fully fenced backyard, ideal for relaxing, entertaining, or future customization. Dual-pane windows are featured throughout. The third bedroom does not include a closet. Ideally located near schools, shopping, and the Ramona Expressway. Schedule your private tour today and experience this inviting home in person.
Property Details
Price:
$399,000
MLS #:
SW25277728
Status:
Active
Beds:
3
Baths:
2
Type:
Single Family
Subtype:
Single Family Residence
Neighborhood:
srcarsouthwestriversidecounty
Listed Date:
Dec 22, 2025
Finished Sq Ft:
1,197
Lot Size:
6,098 sqft / 0.14 acres (approx)
Year Built:
1989
See this Listing
Schools
School District:
San Jacinto Unified
Interior
Appliances
MW, RF, CO, SEF, WHU
Bathrooms
2 Full Bathrooms
Cooling
CA
Flooring
LAM
Heating
CF
Laundry Features
GAS, IG, WH
Exterior
Community Features
SDW, SL, CRB
Parking Spots
4
Roof
COM
Financial
Map
Community
- Address484 Westminister San Jacinto CA
- CitySan Jacinto
- CountyRiverside
- Zip Code92583
Market Summary
Current real estate data for Single Family in San Jacinto as of Dec 22, 2025
121
Single Family Listed
46
Avg DOM
218
Avg $ / SqFt
$386,526
Avg List Price
Property Summary
- 484 Westminister San Jacinto CA is a Single Family for sale in San Jacinto, CA, 92583. It is listed for $399,000 and features 3 beds, 2 baths, and has approximately 1,197 square feet of living space, and was originally constructed in 1989. The current price per square foot is $333. The average price per square foot for Single Family listings in San Jacinto is $218. The average listing price for Single Family in San Jacinto is $386,526.
Similar Listings Nearby
484 Westminister
San Jacinto, CA























