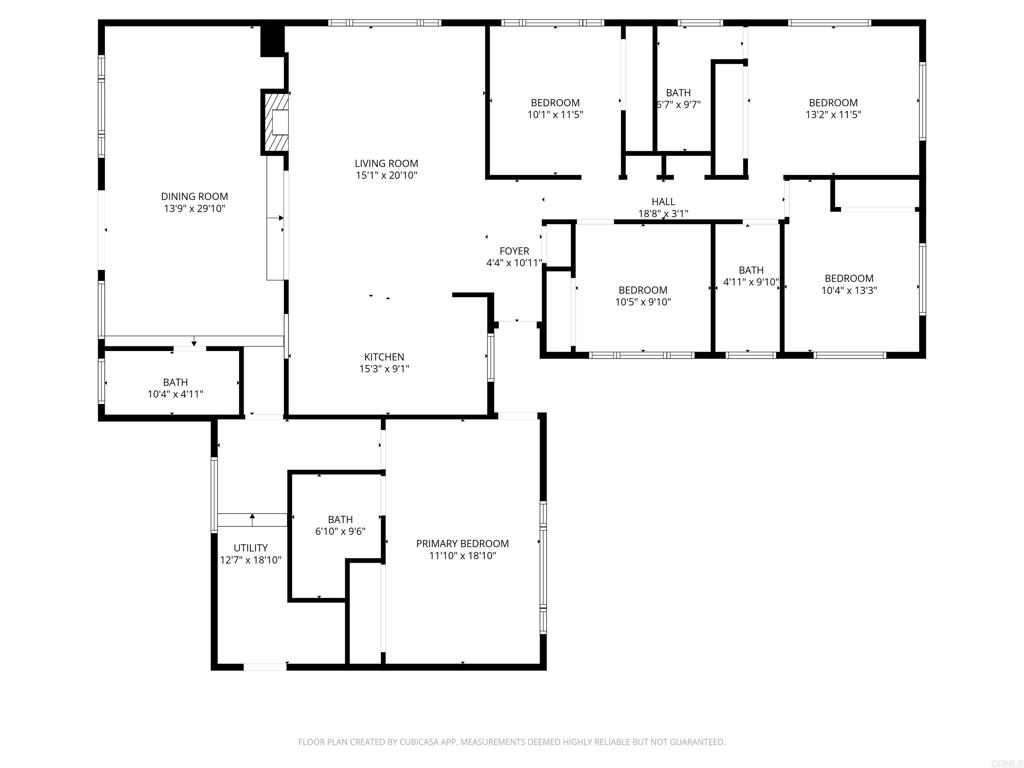
Discover the potential of this charming single-family home at 8868 Gowdy Ave in San Diego, CA. With 2,140 square feet of thoughtfully designed living space, this residence offers an exceptional layout featuring five spacious bedrooms and four bathrooms. Perfect for accommodating a growing family or hosting guests, the home provides a harmonious balance of comfort and functionality. This home just had an extensive remodel with all new Bathrooms, Kitchen, HVAC and flooring. Step into the inviting living areas where abundant natural light highlights the welcoming atmosphere. The dedicated home office is ideal for today’s remote work lifestyle, providing a quiet and productive environment. The convenience of an in-unit washer and dryer adds to the practicality of this residence, freeing up time for leisure activities. Each room is crafted to enhance livability, with an emphasis on comfort and style. Whether you’re entertaining in the expansive living space or relaxing in one of the well-appointed bedrooms, this home meets diverse lifestyle needs. The property is nestled in a vibrant community with easy access to local amenities and transportation routes, ensuring everything you need is within reach. The generous backyard offers a private retreat, perfect for outdoor gatherings or enjoying tranquil moments. This home is not just a place to live but a place to create lasting memories. Make 8868 Gowdy Ave your new address and experience the best of San Diego living.
Property Details
Price:
$1,299,888
MLS #:
PTP2508076
Status:
Active
Beds:
5
Baths:
4
Type:
Single Family
Subtype:
Single Family Residence
Neighborhood:
92123sandiego
Listed Date:
Dec 10, 2025
Finished Sq Ft:
2,140
Lot Size:
6,098 sqft / 0.14 acres (approx)
Year Built:
1958
See this Listing
Schools
School District:
San Diego Unified
Interior
Bathrooms
4 Full Bathrooms
Cooling
CA, HE
Laundry Features
IN
Exterior
Community Features
SDW, CRB, PARK, BIKI, DGP
Parking Spots
4
Financial
Map
Community
- Address8868 Gowdy AV San Diego CA
- CitySan Diego
- CountySan Diego
- Zip Code92123
Subdivisions in San Diego
- Bay Park
- BP
- Carmel Mountain Ranch
- Carmel Valley
- Casa Dorado 32501
- CAV
- CH
- Chula Vista
- City Heights
- Civita CIVI
- Clairemont
- CLM
- College Grove
- Crown Point
- Del Cerro
- Downtown
- Downtown Area DOWN
- DWTN
- East San Diego
- Encanto
- ENCTO
- Escala ESCL
- Hillcrest
- Imperial Beach
- Kearny Mesa
- Kensington
- La Jolla
- La Mesa
- Linda Vista
- Logan Heights
- LV
- Middletown
- Mira Mesa
- Mirador MIRD
- Mirasol MIR
- Mission Beach
- Mission Hills
- Mission Valley
- Mission Village
- Mount Helix
- Normal Heights
- North Park
- NP
- Ocean Beach
- Old Town
- Pacific Beach
- Paradise Hills
- Park Villas PKVL
- Park Vista PV
- Point Loma
- Poway
- Rancho Bernardo
- Rancho Pacifica 1 261701
- Rancho Penasquitos
- Rancho Santa Fe
- Sabre Spr
- San Carlos
- San Diego
- San Ysidro
- SANT
- Santaluz
- Scripps Ranch
- SD
- Serra Mesa
- Smoke Tree SMTR
- South Sd
- Stonebridge 3700
- Talmadge
- The Lakes LK
- Tierrasanta
- Torrey Highlands
- University City
- University Heights
- Villa Portofino 32283
- Woodcrest WT
Market Summary
Current real estate data for Single Family in San Diego as of Dec 18, 2025
1,141
Single Family Listed
104
Avg DOM
553
Avg $ / SqFt
$1,190,272
Avg List Price
Property Summary
- 8868 Gowdy AV San Diego CA is a Single Family for sale in San Diego, CA, 92123. It is listed for $1,299,888 and features 5 beds, 4 baths, and has approximately 2,140 square feet of living space, and was originally constructed in 1958. The current price per square foot is $607. The average price per square foot for Single Family listings in San Diego is $553. The average listing price for Single Family in San Diego is $1,190,272.
Similar Listings Nearby
8868 Gowdy AV
San Diego, CA

















































