Lots for sale. Seller prefer to sell the lots in pairs. Price listed is per lot. Please text for fastest response
Property Details
Price:
$89,900
MLS #:
PTP2407189
Status:
Active
Beds:
0
Baths:
0
Type:
Land
Neighborhood:
92101
Listed Date:
Nov 21, 2024
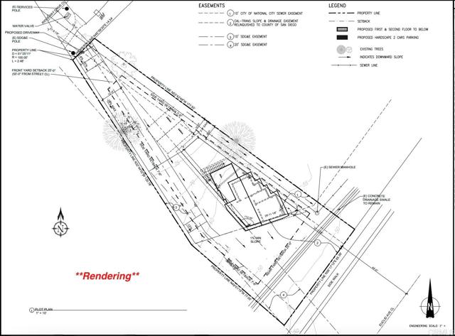
Lot Size:
11,219 sqft / 0.26 acres (approx)
See this Listing
Schools
Interior
Exterior
Community Features
CRB
Financial
Map
Community
- Address66th San Diego CA
- CitySan Diego
- CountySan Diego
- Zip Code92114
Subdivisions in San Diego
- Bay Park
- Bayside BS
- Bonita
- Bonsall
- BP
- Carmel Mountain Ranch
- Carmel Valley
- Casablanca CSB
- CAV
- CH
- Chula Vista
- City Heights
- Civita CIVI
- Clairemont
- College Grove
- Coronado Shores
- Coronado Village
- Crown Point
- Crown Point CP
- Del Cerro
- Del Mar
- Downtown
- DWTN
- East Del Mar
- East San Diego
- East Village 400
- Encanto
- ENCTO
- Escala ESCL
- Hillcrest
- Imperial Beach
- Kearny Mesa
- Kensington
- La Costa
- La Jolla
- La Mesa
- Lemon Grove
- Linda Vista
- Logan Heights
- Marbella MB
- Middletown
- Mira Mesa
- Mission Beach
- Mission Greens R1 MG
- Mission Hills
- Mission Valley
- Mission Village
- Normal Heights
- North Park
- Ocean Beach
- Old Town
- olive street
- Pacific Beach
- Paradise Hills
- Park Villas South
- PL
- Point Loma
- Poway
- Presidio PRES
- Promontory PROM
- Rancho Bernardo
- Rancho Pacifica 1 261701
- Rancho Penasquitos
- Rancho Santa Fe
- RB
- Sabre Spr
- San Carlos
- San Diego
- San Ysidro
- SANT
- Santaluz
- SBS
- Scripps Ranch
- SD
- Serra Mesa
- Solana Beach
- Sonoma Tract 8 1118
- South Sd
- Spinnaker Point SPINP
- Spring Valley
- Stonebridge 3700
- Talmadge
- The Cottages COTT
- Tierrasanta
- Torrey Highlands
- UC
- University City
- University Heights
Market Summary
Property Summary
- 66th San Diego CA is a Land for sale in San Diego, CA, 92114. It is listed for $89,900 and features 0 acres.
Similar Listings Nearby
66th
San Diego, CA


