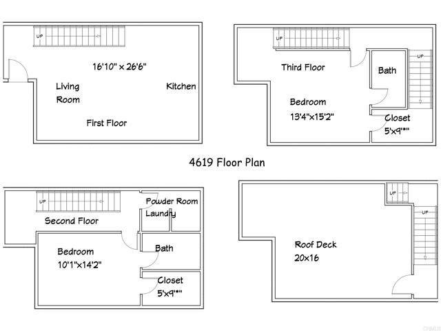
Luxury Living Meets Investment Opportunity. A rare chance to own a 4100sf modern trophy property in one of San Diego’s most desirable areas in North Park. Live in one residence, lease the others, or maximize returns while enjoying stable, high-end rental income. This impressive triplex includes (2) 2 Bed, 2.5 Bath units and (1) 2BD/2BA unit. Every residence features off-street parking with EV charging, paid solar, private rooftop decks with panoramic views, laundry rooms, oversized walk-in closets, and abundant storage. Interiors showcase luxury finishes; LVP flooring, quartz countertops, designer tile, spa-inspired baths with frameless shower enclosures, and custom lighting. The flexible layouts suit live/work lifestyles, long or mid-term rentals. All this in a thriving, historic neighborhood just moments from San Diego’s best dining, culture, and coastal access. An exceptional opportunity to combine lifestyle and investment in one property. Units are occupied. Drive by only, please do not disturb tenants.
Property Details
Price:
$2,650,000
MLS #:
PTP2507053
Status:
A
Beds:
0
Baths:
0
Type:
Single Family
Neighborhood:
92116
Listed Date:
Oct 2, 2025
Total Sq Ft:
4,100
Lot Size:
3,492 sqft / 0.08 acres (approx)
Year Built:
2023
See this Listing
Schools
Interior
Heating
HP, DUC
Laundry Features
DINC, WINC
Exterior
Community Features
URB
Parking Spots
3
Financial
Map
Community
- Address4621 Idaho ST Lot 445-092-11-00 San Diego CA
- CitySan Diego
- CountySD
- Zip Code92116
Subdivisions in San Diego
- Bay Park
- Bayside BS
- Bonita
- Bonsall
- BP
- Carmel Mountain Ranch
- Carmel Valley
- Casablanca CSB
- CAV
- CH
- Chula Vista
- City Heights
- Civita CIVI
- Clairemont
- College Grove
- Coronado Shores
- Coronado Village
- Crown Point
- Crown Point CP
- Del Cerro
- Del Mar
- Downtown
- DWTN
- East Del Mar
- East San Diego
- East Village 400
- Encanto
- ENCTO
- Escala ESCL
- Hillcrest
- Imperial Beach
- Kearny Mesa
- Kensington
- La Costa
- La Jolla
- La Mesa
- Lemon Grove
- Linda Vista
- Logan Heights
- Marbella MB
- Middletown
- Mira Mesa
- Mission Beach
- Mission Greens R1 MG
- Mission Hills
- Mission Valley
- Mission Village
- Normal Heights
- North Park
- Ocean Beach
- Old Town
- olive street
- Pacific Beach
- Paradise Hills
- Park Villas South
- PL
- Point Loma
- Poway
- Presidio PRES
- Promontory PROM
- Rancho Bernardo
- Rancho Pacifica 1 261701
- Rancho Penasquitos
- Rancho Santa Fe
- RB
- Sabre Spr
- San Carlos
- San Diego
- San Ysidro
- SANT
- Santaluz
- SBS
- Scripps Ranch
- SD
- Serra Mesa
- Solana Beach
- Sonoma Tract 8 1118
- South Sd
- Spinnaker Point SPINP
- Spring Valley
- Stonebridge 3700
- Talmadge
- The Cottages COTT
- Tierrasanta
- Torrey Highlands
- UC
- University City
- University Heights
Market Summary
Current real estate data for Single Family in San Diego as of Oct 28, 2025
2,617
Single Family Listed
81
Avg DOM
611
Avg $ / SqFt
$1,115,722
Avg List Price
Property Summary
- 4621 Idaho ST Lot 445-092-11-00 San Diego CA is a Single Family for sale in San Diego, CA, 92116. It is listed for $2,650,000 and features 0 beds, 0 baths, and has approximately 0 square feet of living space, and was originally constructed in 2023. The average price per square foot for Single Family listings in San Diego is $611. The average listing price for Single Family in San Diego is $1,115,722.
Similar Listings Nearby
4621 Idaho ST Lot 445-092-11-00
San Diego, CA






























































