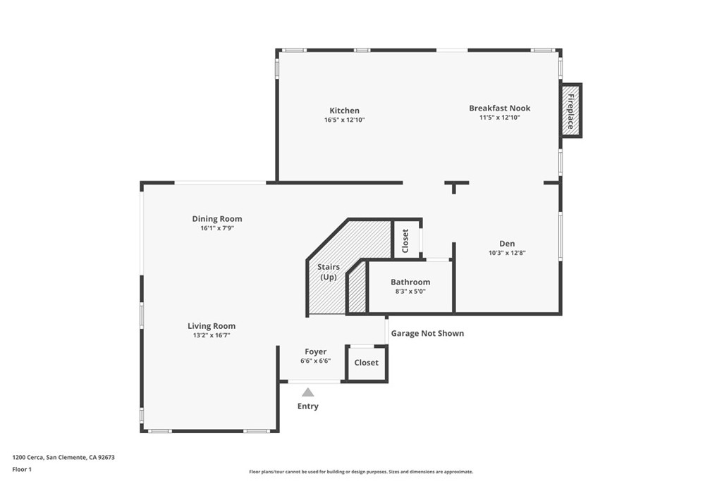
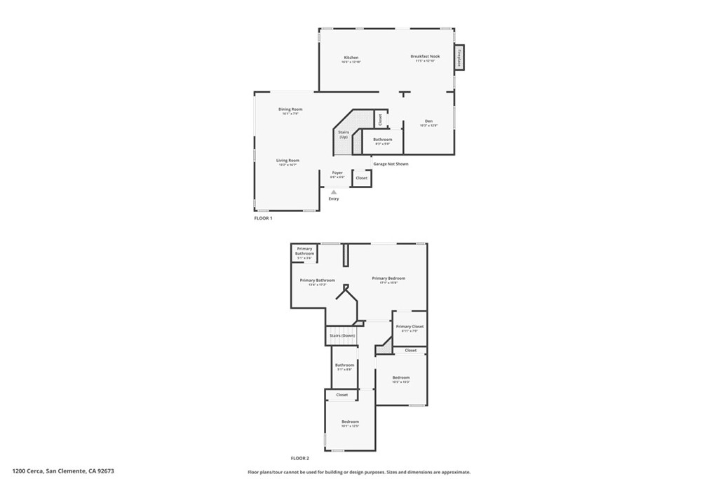
Looking for a 4-bedroom home? Welcome to 1200 Cerca in San Clemente’s Forster Ranch! While officially listed as a 3-bedroom, this beautiful residence offers a **versatile downstairs den** that could easily be converted into a 4th bedroom—with a full bathroom conveniently located just across the hall. Situated in the sought-after Veracruz tract on a large 8,000 sq. ft. corner lot in a quiet cul-de-sac, this 2,008 sq. ft. home features 3 full bathrooms and a long list of upgrades: 2017 new 50-gallon water heater, 50-year cement tile roof, and fumigation; a stunning 2021 primary bath remodel with custom tile, walk-in shower, clawfoot soaking tub, and chandelier; a 2022 Lennox HVAC system; and a 2024 new garage door and opener. The entertainer’s backyard is a private retreat featuring a custom saltwater pool & spa, outdoor fireplace, and built-in 48” DCS BBQ island—perfect for gatherings and summer nights. Inside, enjoy Arizona flagstone floors, a chef’s kitchen with granite countertops, Viking refrigerator, and 36” 6-burner range, plus inviting living and dining areas designed for comfort and entertaining. Additional highlights include travertine and tile secondary baths, wrought iron entry doors, custom stone and brickwork, mature landscaping with auto sprinklers and lighting, and gated RV parking (11’x44’ slab, buyer to verify). **California living at its best—don’t miss the property video and 3D interactive floorplan—this San Clemente gem truly has it all!
Property Details
Price:
$1,650,000
MLS #:
PW25147934
Status:
Active
Beds:
3
Baths:
3
Type:
Single Family
Subtype:
Single Family Residence
Subdivision:
Veracruz VER
Neighborhood:
frforsterranch
Listed Date:
Nov 23, 2025
Finished Sq Ft:
2,008
Lot Size:
8,000 sqft / 0.18 acres (approx)
Year Built:
1987
See this Listing
Schools
School District:
Capistrano Unified
Elementary School:
Truman Benedict
Middle School:
Bernice
High School:
San Clemente
Interior
Appliances
DW, RF, WP, GO, GR, FSR, _6BS, GWH, HOD, WHU, WS
Bathrooms
3 Full Bathrooms
Cooling
CA
Flooring
TILE, STON, CARP
Heating
CF
Laundry Features
IG, DINC, WINC
Exterior
Architectural Style
MED
Community Features
SDW, SL, CRB, PARK
Construction Materials
STN, STC
Exterior Features
LIT
Other Structures
SBL, SH
Parking Spots
2
Roof
CON
Security Features
SD, COD, FS
Financial
HOA Fee
$140
HOA Frequency
MO
Map
Community
- Address1200 Cerca San Clemente CA
- SubdivisionVeracruz (VER)
- CitySan Clemente
- CountyOrange
- Zip Code92673
Subdivisions in San Clemente
- Amalfi AMAL
- Bay Cliff Village BV
- Breakers BRK
- Capistrano Shores MHP CSM
- Carillon CARL
- Catania CATN
- Colony Cove CC
- Compass Pointe COMP
- CUST
- Cyprus Cove CW
- Cyprus Shore CS
- Del Cabo DLC
- Faire Harbour FH
- Highland Light Estates HLE
- Mira Costa Villas MC
- Mirador MIRD
- Miraleste MIRA
- Misty Ridge MR
- Montellano MONO
- Mystic Hill MH
- Ocean Hills OH
- Pacific Crest PACR
- Pacifica Central SC PC
- Palacio Del Mar PD
- Portofino PORT
- President Heights I PH
- Reserve East RESE
- Reserve South RESS
- Rimrock RIM
- Riviera District RD
- San Clemente
- San Rafael SANR
- Sea Canyon Old SCO
- Sea Pointe Estates SPE
- Sea Pointe Villas SPV
- Seascape Village SS
- Shore Cliff Villas SV
- Shorecliff Terrace Inc. STER
- Shorecliffs SC
- Solana SOLA
- Stella Mare STLM
- Tocayo Canyon TY
- Tocayo Ridge TR
- Verano VERA
- Villa Granada VG
- Villa Montalvo Vista VMV
- Villa Pacifica VILP
- Villagio VIL
- Vista Pacifica Villas VPV
- Vista Pacifica VP
Market Summary
Current real estate data for Single Family in San Clemente as of Dec 12, 2025
127
Single Family Listed
63
Avg DOM
569
Avg $ / SqFt
$1,745,119
Avg List Price
Property Summary
- Located in the Veracruz (VER) subdivision, 1200 Cerca San Clemente CA is a Single Family for sale in San Clemente, CA, 92673. It is listed for $1,650,000 and features 3 beds, 3 baths, and has approximately 2,008 square feet of living space, and was originally constructed in 1987. The current price per square foot is $822. The average price per square foot for Single Family listings in San Clemente is $569. The average listing price for Single Family in San Clemente is $1,745,119.
Similar Listings Nearby
1200 Cerca
San Clemente, CA




















































