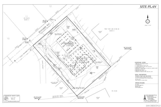
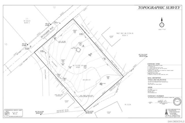
Prime 15,000 SF Mixed-Use Lot in the Heart of Historic Running Springs! Endless possibilities await with this rare mixed-use property located in the charming mountain town of Running Springs – perfectly positioned between Lake Arrowhead and Big Bear. Whether you’re dreaming of a mountain getaway, a thriving business, or both, this versatile lot is ready for your vision! Enjoy year-round outdoor adventure with nearby hiking, skiing, fishing, and horseback riding, all surrounded by the natural beauty of the San Bernardino Mountains. Walk to the post office, library, community park, bank, and local restaurants – all just steps away! The property features historic charm with remnants of a 1930s grand stone fireplace – a unique focal point for future development. Recent upgrades including storm drain installation, driveway and upper lot grading, tree trimming and removal, new fencing and gated entry. Water, sewer & electricity are already at the property – just tap in and get started! Mixed-use zoning opens the door to both residential and commercial possibilities. Topographic Maps, Conceptual drawings and Floor plans are available to inspire your dream project. This is more than just a lot – it’s an opportunity. ** Don’t let it pass you by!
Property Details
Price:
$83,250
MLS #:
250033294SD
Status:
Active
Beds:
0
Baths:
0
Type:
Land
Neighborhood:
288
Listed Date:
Jul 12, 2025
Lot Size:
15,000 sqft / 0.34 acres (approx)
See this Listing
Schools
Interior
Exterior
Financial
Map
Community
- Address32065 Hunsaker way Running Springs CA
- CityRunning Springs
- CountySan Bernardino
- Zip Code92382
Subdivisions in Running Springs
Market Summary
Current real estate data for Land in Running Springs as of Dec 02, 2025
21
Land Listed
105
Avg DOM
$86,902
Avg List Price
Property Summary
- 32065 Hunsaker way Running Springs CA is a Land for sale in Running Springs, CA, 92382. It is listed for $83,250 and features 0 acres.
Similar Listings Nearby
32065 Hunsaker way
Running Springs, CA






































