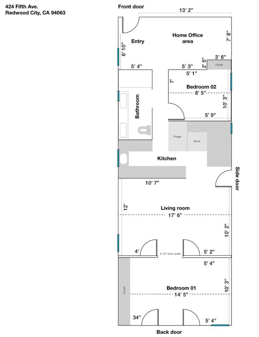
Welcome to 424 Fifth Ave, a beautifully remodeled jewel just steps from vibrant downtown Redwood City.** This charming 2-bedroom home has been thoughtfully updated with permitted renovations, including upgraded electrical, a newer roof, and modern interior finishes throughout. Inside, youll find one of the coziest and most comfortable 1,000 sq. ft. layouts youll ever experience. The light-filled living spaces flow effortlessly, and the kitchen feels surprisingly spacious, perfectly designed for cooking, gathering, and moving around with ease. Every corner of this home feels warm, welcoming, and wonderfully livable. Step outside to enjoy a generous yard ideal for relaxing, entertaining, or future expansion possibilities. And with Caltrain, dining, shopping, parks, and the energy of downtown just moments away, this location offers unmatched walkability and convenience. A rare opportunity to own a truly special home in one of the Peninsulas most desirable neighborhoods.**
Property Details
Price:
$899,950
MLS #:
ML82028298
Status:
Active
Beds:
2
Baths:
1
Type:
Single Family
Subtype:
Single Family Residence
Neighborhood:
699notdefined
Listed Date:
Dec 4, 2025
Finished Sq Ft:
740
Lot Size:
2,999 sqft / 0.07 acres (approx)
Year Built:
1959
See this Listing
Schools
School District:
Other
Interior
Bathrooms
1 Full Bathroom
Heating
HP
Exterior
Parking Spots
1
Roof
TARGRV, SHN
Financial
Map
Community
- Address424 5th AV Redwood City CA
- CityRedwood City
- CountySan Mateo
- Zip Code94063
Subdivisions in Redwood City
Market Summary
Current real estate data for Single Family in Redwood City as of Dec 08, 2025
58
Single Family Listed
458
Avg DOM
790
Avg $ / SqFt
$1,602,989
Avg List Price
Property Summary
- 424 5th AV Redwood City CA is a Single Family for sale in Redwood City, CA, 94063. It is listed for $899,950 and features 2 beds, 1 baths, and has approximately 740 square feet of living space, and was originally constructed in 1959. The current price per square foot is $1,216. The average price per square foot for Single Family listings in Redwood City is $790. The average listing price for Single Family in Redwood City is $1,602,989.
Similar Listings Nearby
424 5th AV
Redwood City, CA














































