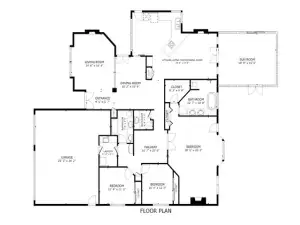
Welcome home to 7 Calle de Luna, located in the coveted Lyon Promenade community of Rancho Santa Margarita. This charming enclave of homes in the heart of Rancho Santa Margarita is known for its pride of ownership, friendly neighborhood gatherings, and annual holiday traditions. This beautifully maintained and fully upgraded residence offers prime walkability to parks, shops, dining, award-winning elementary, middle schools, two fitness centers (24 Hour Fitness and the soon-to-open EOS Fitness), and RSM’s Town Center. Rancho Santa Margarita is consistently ranked one of the safest cities in California, delivering an unmatched lifestyle surrounded by nature, trails, and community amenities. This 3-bedroom + loft, 2.5-bath home spans approximately 1,913 sq ft and sits on one of the largest and most private lots (approx. 4,613 sq. ft. ) in the neighborhood, an ideal setting for outdoor entertaining, relaxation, and play. Move-in ready with extensive improvements throughout, including: Fresh exterior and interior paint, low-maintenance artificial turf front & back, solar system for energy efficiency & utility savings, new luxury vinyl plank flooring and new blinds in every room, modern kitchen featuring quartz countertops, designer backsplash, and new stainless appliances (stove, microwave, dishwasher), enjoy your advanced drinking water system at kitchen sink, fully updated bathrooms with modern showers, vanities, sinks & toilets, new premium HVAC system, whole-home water filtration system. The open loft offers flexibility for a home office, den, play area, or potential 4th bedroom. As part of SAMLARC, residents enjoy access to the Beach Club Lagoon, multiple pools, parks, trails, lakes, sports courts, fishing, and year-round community events. RSM Lake is just a short drive away, offering lakeside dining, walking paths, and beautiful sunset views. Homes in this sought-after neighborhood rarely become available, and this one is turnkey and ready to enjoy calling home for years to come with your family. Don’t miss this exceptional opportunity to live in the heart of Rancho Santa Margarita
Property Details
Price:
$1,399,000
MLS #:
OC25257564
Status:
Active
Beds:
3
Baths:
3
Type:
Single Family
Subtype:
Single Family Residence
Subdivision:
Lyon Promenade LYPM
Neighborhood:
r2
Listed Date:
Nov 12, 2025
Finished Sq Ft:
1,913
Lot Size:
4,613 sqft / 0.11 acres (approx)
Year Built:
1997
See this Listing
Schools
School District:
Saddleback Valley Unified
High School:
Trabuco Hills
Interior
Appliances
DW, MW, GR
Bathrooms
2 Full Bathrooms, 1 Half Bathroom
Cooling
CA
Flooring
VINY
Heating
CF
Laundry Features
IN, UL
Exterior
Community Features
SDW, SL, CRB, CW, HIKI
Parking Spots
2
Roof
SPT
Financial
HOA Fee
$87
HOA Frequency
MO
Map
Community
- AddressCalle De Luna Lot 59 Rancho Santa Margarita CA
- SubdivisionLyon Promenade (LYPM)
- CityRancho Santa Margarita
- CountyOrange
- Zip Code92688
Subdivisions in Rancho Santa Margarita
- Alicante ALI
- Arroyo Oaks AO
- Arroyo Vista AV
- Ballantree BALT
- Belterraza BTR
- Brighton Glen BG
- Brisa del Lago I BD
- Brisa del Lago II BDII
- Candelero CAN
- Castile CAST
- Cierra Del Lago CDL
- Corazon CORZ
- Corte Melina CM
- Cresta Vista CRV
- El Caserio R2 EC
- Estrella Vista ESV
- Fairway Estates DCFE
- Fiesta FIES
- Granada GRN
- Greystone Arbor GRAR
- Lakeridge DLR
- Las Flores R1 LF
- Las Flores R2 LF
- Laurels DLAU
- Los Abanicos LOSA
- Los Paseos LOPA
- Magnolia MAGN
- Mallorca MALL
- Marbella MB
- Mission Courts R1 MC
- Mission Courts R2 MC
- Mission Greens R1 MG
- Montana Del Lago MDL
- Montilla MNT
- Paragon PAR
- Ranchwood R2 RW
- Sea Country SEAC
- Serabrisa SRB
- Sonoma Court SCT
- Sterling Heights DSH
- Summit Crest DSC
- Terracina TERC
- The Meadows TM
- Tierra Montanosa TIEM
- Tijeras Creek Villas TCV
- Trabuco – Elms THE
- Trabuco – Homestead THH
- Trabuco – Springs THS
- Valle Vista VLV
- Vista Ladera R2 VL
- Warmington Homes DWH
Market Summary
Current real estate data for Single Family in Rancho Santa Margarita as of Nov 20, 2025
55
Single Family Listed
30
Avg DOM
393
Avg $ / SqFt
$912,141
Avg List Price
Property Summary
- Located in the Lyon Promenade (LYPM) subdivision, Calle De Luna Lot 59 Rancho Santa Margarita CA is a Single Family for sale in Rancho Santa Margarita, CA, 92688. It is listed for $1,399,000 and features 3 beds, 3 baths, and has approximately 1,913 square feet of living space, and was originally constructed in 1997. The current price per square foot is $731. The average price per square foot for Single Family listings in Rancho Santa Margarita is $393. The average listing price for Single Family in Rancho Santa Margarita is $912,141.
Similar Listings Nearby
Calle De Luna Lot 59
Rancho Santa Margarita, CA


