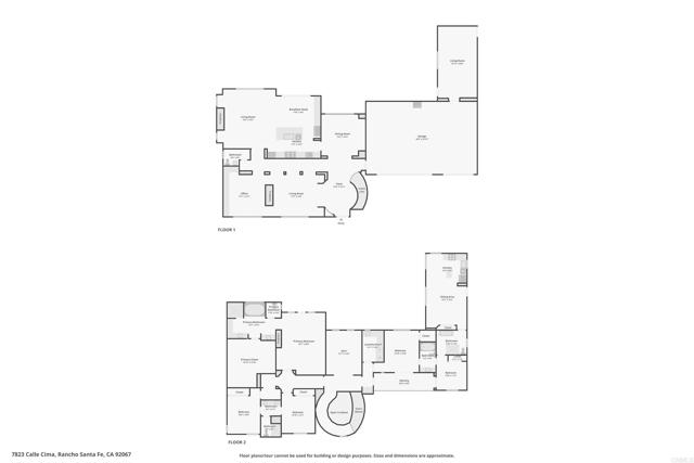
This private Mediterranean estate is set on an elevated 1.13-acre lot with sweeping mountain views at the end of a cul-de-sac in the prestigious guard-gated Cielo community within the highly sought-after R Roger Rowe School boundaries. Main residence offers 5 bedrooms, 3.5 baths, theater room, office, upstairs bonus room, along with an attached ADU that has a bedroom and bath. Grand driveway ascends to a circular motor court, where a meticulously landscaped yard and stunning fountain create a dramatic stage for arrival. Soaring two-story foyer with hardwood floors and a sweeping staircase welcome you. Formal living room has a fireplace framed by arched doorways, while the neighboring office is finished with custom built-ins. Kitchen features white cabinetry, a large center island, premium appliances, and daily dining that flows seamlessly into the family room with fireplace. Formal dining room and powder room complete the main level. Upstairs, primary suite offers a fireplace with raised hearth, private balcony, a spa-inspired bath with dual vanities, soaking tub, walk-in shower, and an expansive walk-in closet. Three additional bedrooms, 2-baths, laundry room, and bonus room complete the main residence. Attached ADU has a private entrance, full kitchen, living room, bedroom, and bath. Backyard is designed for entertaining with an oversized spa and cascading water feature, built-in BBQ island, fireplace, pergola, and multiple seating areas all surrounded by lush landscaping and mountain views. Entertainment continues with a private theater with separate exterior access. Additional highlights include 10KW owned solar system, 3-car garage, 2 tankless water heaters, EV charger, and wired for sound in select areas of the home with built-in speakers. Enjoy 24-hour guard-gated security, resort style amenities including a clubhouse, fitness center, pool, spa, tennis courts, pickleball, volleyball, basketball, & playgrounds.
Property Details
Price:
$3,599,000
MLS #:
NDP2509310
Status:
A
Beds:
6
Baths:
5
Type:
Single Family
Subtype:
Single Family Residence
Neighborhood:
92067
Listed Date:
Sep 24, 2025
Finished Sq Ft:
4,648
Lot Size:
49,222 sqft / 1.13 acres (approx)
Year Built:
2001
See this Listing
Schools
School District:
Rancho Santa Fe
Elementary School:
Other
Middle School:
Other
High School:
Torrey Pines
Interior
Appliances
DW, GD, MW, RF, GAS, BBQ, BI, DO, GWH, HOD, TW, WOD
Bathrooms
4 Full Bathrooms, 1 Half Bathroom
Cooling
CA, ZN
Flooring
TILE, WOOD, CARP
Heating
FA, GAS, ZN
Laundry Features
IR, UL, DINC, WINC
Exterior
Architectural Style
MED
Community Features
SUB, CRB
Construction Materials
STC, DWAL
Exterior Features
BQ, BLC
Other Structures
GHA
Parking Spots
9
Roof
TLE
Security Features
SD, COD, PRKG, FS, GC
Financial
HOA Fee
$778
HOA Frequency
MO
Map
Community
- AddressCalle Cima Rancho Santa Fe CA
- CityRancho Santa Fe
- CountySan Diego
- Zip Code92067
Subdivisions in Rancho Santa Fe
Market Summary
Current real estate data for Single Family in Rancho Santa Fe as of Oct 29, 2025
120
Single Family Listed
86
Avg DOM
1,012
Avg $ / SqFt
$6,408,180
Avg List Price
Property Summary
- Calle Cima Rancho Santa Fe CA is a Single Family for sale in Rancho Santa Fe, CA, 92067. It is listed for $3,599,000 and features 6 beds, 5 baths, and has approximately 4,648 square feet of living space, and was originally constructed in 2001. The current price per square foot is $774. The average price per square foot for Single Family listings in Rancho Santa Fe is $1,012. The average listing price for Single Family in Rancho Santa Fe is $6,408,180.
Similar Listings Nearby
Calle Cima
Rancho Santa Fe, CA















































































