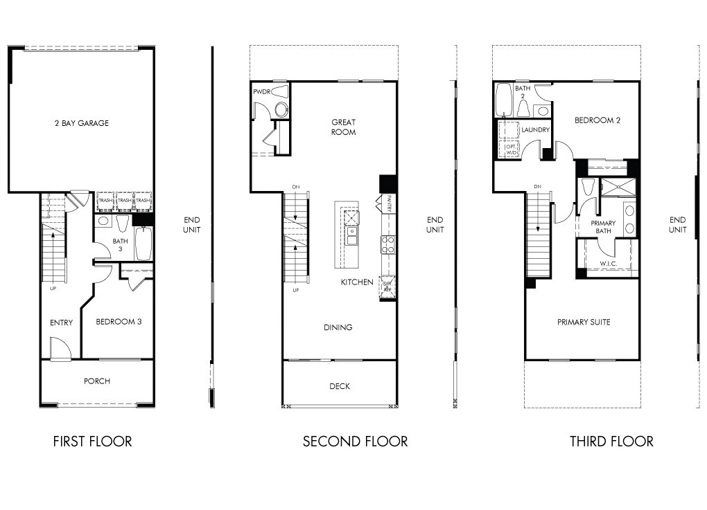
Brand new, energy-efficient home available NOW! Private First-Floor Suite The first-floor bed with full bath provides comfort for visiting guests or a home office. The open-concept living space is ideal for entertaining, featuring a chef-inspired kitchen. The Knoll is now selling with designer-decorated models homes in the booming city of Pomona. Featuring spacious floorplans with chef-inspired kitchens, accommodations for overnight guests and home offices, and bonus storage space. Every home boasts energy-efficient features such as spray foam insultation, Low-E windows and high-performance air filtration so you can spend more on the things that matter most. Each of our homes is built with innovative, energy-efficient features designed to help you enjoy more savings, better health, real comfort and peace of mind.
Property Details
Price:
$699,000
MLS #:
OC25085325
Status:
Active
Beds:
3
Baths:
4
Type:
Townhouse
Neighborhood:
687pomona
Listed Date:
Sep 12, 2025
Finished Sq Ft:
1,791
Lot Size:
1,307 sqft / 0.03 acres (approx)
Year Built:
2025
See this Listing
Schools
School District:
Pomona Unified
High School:
Paloma
Interior
Appliances
DW, MW, WLR, ESA, GO, FSR, ESWH, TW
Bathrooms
3 Full Bathrooms, 1 Half Bathroom
Cooling
CA, DL, ZN
Laundry Features
IR, IN
Exterior
Community Features
SL, DGP
Construction Materials
STC
Parking Spots
2
Roof
TLE
Financial
HOA Fee
$218
HOA Frequency
MO
Map
Community
- Address219 Aurora LN Pomona CA
- CityPomona
- CountyLos Angeles
- Zip Code91767
Market Summary
Property Summary
- 219 Aurora LN Pomona CA is a Townhouse for sale in Pomona, CA, 91767. It is listed for $699,000 and features 3 beds, 4 baths, and has approximately 1,791 square feet of living space, and was originally constructed in 2025. The current price per square foot is $390. The average price per square foot for Townhouse listings in Pomona is $419. The average listing price for Townhouse in Pomona is $653,085.
Similar Listings Nearby
219 Aurora LN
Pomona, CA

























































