This property offers the perfect combination of space, privacy, and opportunity—whether you’re looking to build your dream ranch, establish a private retreat, or invest in land with long-term growth potential.
Situated in the **unincorporated area of Phelan north of Highway 18**, this location provides the rare freedom of fewer restrictions compared to incorporated city limits. This means greater flexibility for custom uses, agricultural projects, and off-grid living while still being within reach of essential services and conveniences. The terrain is generally level, making it easier to develop, and the open desert landscape offers unobstructed panoramic views of the San Gabriel Mountains to the south and wide-open skies in every direction.
Phelan is known for its rural charm, equestrian lifestyle, and strong community spirit. Residents enjoy a slower pace of life, yet benefit from proximity to Victorville, Hesperia, and Interstate 15, providing direct access to Southern California’s major metropolitan areas. The High Desert region is also gaining attention for its abundant sunshine, which has made it a prime location for renewable energy projects. In recent years, **significant solar developments have been built in the area**, creating both economic activity and future growth potential.
This is more than just a piece of land—it’s an opportunity to own a slice of the High Desert lifestyle, with the freedom and space to create something uniquely your own. Don’t miss your chance to secure 10 acres in one of Southern California’s most promising rural areas.
Situated in the **unincorporated area of Phelan north of Highway 18**, this location provides the rare freedom of fewer restrictions compared to incorporated city limits. This means greater flexibility for custom uses, agricultural projects, and off-grid living while still being within reach of essential services and conveniences. The terrain is generally level, making it easier to develop, and the open desert landscape offers unobstructed panoramic views of the San Gabriel Mountains to the south and wide-open skies in every direction.
Phelan is known for its rural charm, equestrian lifestyle, and strong community spirit. Residents enjoy a slower pace of life, yet benefit from proximity to Victorville, Hesperia, and Interstate 15, providing direct access to Southern California’s major metropolitan areas. The High Desert region is also gaining attention for its abundant sunshine, which has made it a prime location for renewable energy projects. In recent years, **significant solar developments have been built in the area**, creating both economic activity and future growth potential.
This is more than just a piece of land—it’s an opportunity to own a slice of the High Desert lifestyle, with the freedom and space to create something uniquely your own. Don’t miss your chance to secure 10 acres in one of Southern California’s most promising rural areas.
Property Details
Price:
$58,000
MLS #:
HD25177977
Status:
Active
Beds:
0
Baths:
0
Type:
Land
Neighborhood:
phel
Listed Date:
Aug 11, 2025
Lot Size:
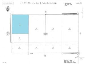
435,600 sqft / 10.00 acres (approx)
See this Listing
Schools
Interior
Exterior
Community Features
RUR
Financial
Map
Community
- AddressWilson Ranch Rd Phelan CA
- CityPhelan
- CountySan Bernardino
- Zip Code92371
Subdivisions in Phelan
Market Summary
Property Summary
- Wilson Ranch Rd Phelan CA is a Land for sale in Phelan, CA, 92371.  It is listed for $58,000 and features 10 acres.
Similar Listings Nearby
 Courtesy of Keller Williams Victor Valley.  Disclaimer: All data relating to real estate for sale on this page comes from the Broker Reciprocity (BR) of the California Regional Multiple Listing Service. Detailed information about real estate listings held by brokerage firms other than  include the name of the listing broker. Neither the listing company nor  shall be responsible for any typographical errors, misinformation, misprints and shall be held totally harmless. The Broker providing this data believes it to be correct, but advises interested parties to confirm any item before relying on it in a purchase decision. Copyright 2025. California Regional Multiple Listing Service. All rights reserved.
 Courtesy of Keller Williams Victor Valley.  Disclaimer: All data relating to real estate for sale on this page comes from the Broker Reciprocity (BR) of the California Regional Multiple Listing Service. Detailed information about real estate listings held by brokerage firms other than  include the name of the listing broker. Neither the listing company nor  shall be responsible for any typographical errors, misinformation, misprints and shall be held totally harmless. The Broker providing this data believes it to be correct, but advises interested parties to confirm any item before relying on it in a purchase decision. Copyright 2025. California Regional Multiple Listing Service. All rights reserved.Wilson Ranch Rd
Phelan, CA









