There are multiple listings for this address:
20 Acres of Prime Land in Phelan, CA – Ideal for Investment or Development
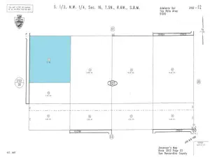
Discover this expansive 20-acre parcel located on La Mesa Road in the serene high desert community of Phelan, California. The land features a flat to gentle slope, offering versatile possibilities for residential, agricultural, or recreational use. Proximity to the California Aqueduct enhances its appeal, especially for those considering agricultural ventures.
Key Features:
Size & Terrain: 20 acres of flat to gently sloping land, providing a solid foundation for various projects.
Utilities: Power availability is noted approximately two parcels to the east, facilitating potential development.
Water Access: Nearby access to the California Aqueduct offers potential for water resources, beneficial for agricultural or landscaping needs.
Educational District: Situated within the Snow Line Joint Unified School District, known for its commitment to quality education.
Community & Lifestyle:
Phelan is a tranquil, high desert community nestled at the base of the San Gabriel Mountains. With a population of under 19,000, it offers a peaceful rural lifestyle with a strong sense of community. Residents enjoy a variety of outdoor activities, including hiking, off-roading, and stargazing, all set against a backdrop of stunning mountain views per Homes.com
Future Developments:
Community Park: A new 14.79-acre community park has been approved, promising enhanced recreational facilities and green space for residents per
Victor Valley News
Infrastructure Improvements: Ongoing projects, such as the construction of a 1.5 million-gallon reservoir, aim to bolster water supply reliability and support community growth per pphcsd.org
Road Enhancements: The Phelan Road project, involving pavement rehabilitation and infrastructure upgrades, is underway to improve transportation access per Public Works
Investment Potential:
With its strategic location and the ongoing development in the area, this 20-acre parcel presents a promising opportunity for investors and developers looking to capitalize on Phelan’s growth. Whether you’re considering residential development, agricultural use, or recreational purposes, this property offers a canvas for your vision.
For more information please contact listing agent.
Discover this expansive 20-acre parcel located on La Mesa Road in the serene high desert community of Phelan, California. The land features a flat to gentle slope, offering versatile possibilities for residential, agricultural, or recreational use. Proximity to the California Aqueduct enhances its appeal, especially for those considering agricultural ventures.
Key Features:
Size & Terrain: 20 acres of flat to gently sloping land, providing a solid foundation for various projects.
Utilities: Power availability is noted approximately two parcels to the east, facilitating potential development.
Water Access: Nearby access to the California Aqueduct offers potential for water resources, beneficial for agricultural or landscaping needs.
Educational District: Situated within the Snow Line Joint Unified School District, known for its commitment to quality education.
Community & Lifestyle:
Phelan is a tranquil, high desert community nestled at the base of the San Gabriel Mountains. With a population of under 19,000, it offers a peaceful rural lifestyle with a strong sense of community. Residents enjoy a variety of outdoor activities, including hiking, off-roading, and stargazing, all set against a backdrop of stunning mountain views per Homes.com
Future Developments:
Community Park: A new 14.79-acre community park has been approved, promising enhanced recreational facilities and green space for residents per
Victor Valley News
Infrastructure Improvements: Ongoing projects, such as the construction of a 1.5 million-gallon reservoir, aim to bolster water supply reliability and support community growth per pphcsd.org
Road Enhancements: The Phelan Road project, involving pavement rehabilitation and infrastructure upgrades, is underway to improve transportation access per Public Works
Investment Potential:
With its strategic location and the ongoing development in the area, this 20-acre parcel presents a promising opportunity for investors and developers looking to capitalize on Phelan’s growth. Whether you’re considering residential development, agricultural use, or recreational purposes, this property offers a canvas for your vision.
For more information please contact listing agent.
Property Details
Price:
$45,000
MLS #:
IV25171384
Status:
A
Beds:
0
Baths:
0
Type:
Land
Neighborhood:
phel
Listed Date:
Jul 30, 2025
Lot Size:
108,900 sqft / 2.50 acres (approx)
See this Listing
Schools
Interior
Exterior
Community Features
RUR
Financial
Map
Community
- AddressLa Mesa Rd Phelan CA
- CityPhelan
- CountySB
- Zip Code92371
Subdivisions in Phelan
Market Summary
Property Summary
- La Mesa Rd Phelan CA is a Land for sale in Phelan, CA, 92371. It is listed for $45,000 and features 3 acres.
Similar Listings Nearby
La Mesa Rd
Phelan, CA
20 Acres of Prime Land in Phelan, CA – Ideal for Investment or Development
Discover this expansive 20-acre parcel located on La Mesa Road in the serene high desert community of Phelan, California. The land features a flat to gentle slope, offering versatile possibilities for residential, agricultural, or recreational use. Proximity to the California Aqueduct enhances its appeal, especially for those considering agricultural ventures.
Key Features:
Size & Terrain: 20 acres of flat to gently sloping land, providing a solid foundation for various projects.
Utilities: Power availability is noted approximately two parcels to the east, facilitating potential development.
Water Access: Nearby access to the California Aqueduct offers potential for water resources, beneficial for agricultural or landscaping needs.
Educational District: Situated within the Snow Line Joint Unified School District, known for its commitment to quality education.
Community & Lifestyle:
Phelan is a tranquil, high desert community nestled at the base of the San Gabriel Mountains. With a population of under 19,000, it offers a peaceful rural lifestyle with a strong sense of community. Residents enjoy a variety of outdoor activities, including hiking, off-roading, and stargazing, all set against a backdrop of stunning mountain views per Homes.com
Future Developments:
Community Park: A new 14.79-acre community park has been approved, promising enhanced recreational facilities and green space for residents per
Victor Valley News
Infrastructure Improvements: Ongoing projects, such as the construction of a 1.5 million-gallon reservoir, aim to bolster water supply reliability and support community growth per pphcsd.org
Road Enhancements: The Phelan Road project, involving pavement rehabilitation and infrastructure upgrades, is underway to improve transportation access per Public Works
Investment Potential:
With its strategic location and the ongoing development in the area, this 20-acre parcel presents a promising opportunity for investors and developers looking to capitalize on Phelan’s growth. Whether you’re considering residential development, agricultural use, or recreational purposes, this property offers a canvas for your vision.
For more information please contact listing agent.
Discover this expansive 20-acre parcel located on La Mesa Road in the serene high desert community of Phelan, California. The land features a flat to gentle slope, offering versatile possibilities for residential, agricultural, or recreational use. Proximity to the California Aqueduct enhances its appeal, especially for those considering agricultural ventures.
Key Features:
Size & Terrain: 20 acres of flat to gently sloping land, providing a solid foundation for various projects.
Utilities: Power availability is noted approximately two parcels to the east, facilitating potential development.
Water Access: Nearby access to the California Aqueduct offers potential for water resources, beneficial for agricultural or landscaping needs.
Educational District: Situated within the Snow Line Joint Unified School District, known for its commitment to quality education.
Community & Lifestyle:
Phelan is a tranquil, high desert community nestled at the base of the San Gabriel Mountains. With a population of under 19,000, it offers a peaceful rural lifestyle with a strong sense of community. Residents enjoy a variety of outdoor activities, including hiking, off-roading, and stargazing, all set against a backdrop of stunning mountain views per Homes.com
Future Developments:
Community Park: A new 14.79-acre community park has been approved, promising enhanced recreational facilities and green space for residents per
Victor Valley News
Infrastructure Improvements: Ongoing projects, such as the construction of a 1.5 million-gallon reservoir, aim to bolster water supply reliability and support community growth per pphcsd.org
Road Enhancements: The Phelan Road project, involving pavement rehabilitation and infrastructure upgrades, is underway to improve transportation access per Public Works
Investment Potential:
With its strategic location and the ongoing development in the area, this 20-acre parcel presents a promising opportunity for investors and developers looking to capitalize on Phelan’s growth. Whether you’re considering residential development, agricultural use, or recreational purposes, this property offers a canvas for your vision.
For more information please contact listing agent.
Property Details
Price:
$190,000
MLS #:
IV25224881
Status:
A
Beds:
0
Baths:
0
Type:
Land
Neighborhood:
phel
Listed Date:
Sep 29, 2025
Lot Size:
871,200 sqft / 20.00 acres (approx)
See this Listing
Schools
Interior
Exterior
Community Features
RUR
Financial
Map
Community
- AddressLa Mesa Rd Phelan CA
- CityPhelan
- CountySB
- Zip Code92371
Subdivisions in Phelan
Market Summary
Property Summary
- La Mesa Rd Phelan CA is a Land for sale in Phelan, CA, 92371. It is listed for $190,000 and features 20 acres.



















