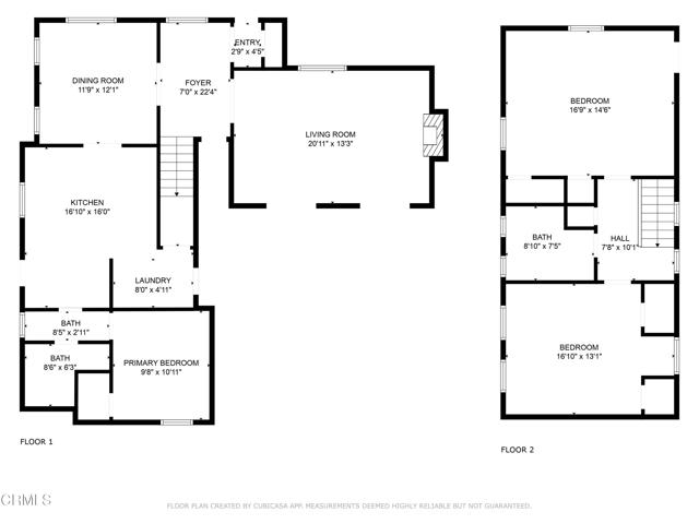
Welcome to 888 South Pasadena Avenue, Pasadena and discover an opportunity to restore and revitalize this 1927 Spanish Revival-style single-family home in the Pasadena Avenue Historic District. This home features an L-shaped floorplan with a one-story northern wing and a two-story southern wing. With 3 bedrooms and 1 bath, this home offers approximately 1917 sqft of living space on an approximately 11,677 sqft spacious lot. The exterior of the home is clad in smooth stucco with a sloping stucco chimney with two clay pots centered on the north elevation. Enter through the single-leaf main entry door that was constructed of vertical wood planks with a single square glazed panel covered by an iron grill. The interior invites your imagination to restore this historic home to its former glory. A two-car garage at the rear of the house with stucco exteriors and a pent roof of red barrel tile with a driveway could be potentially converted into an accessory dwelling unit (ADU), allowing for extended family living or more. Don’t miss the opportunity to take advantage of the Mills Act, making this home eligible for significant property tax savings. Don’t miss the chance to embrace and cherish this historic gem!
Property Details
Price:
$1,300,000
MLS #:
P1-24314
Status:
A
Beds:
3
Baths:
2
Type:
Single Family
Subtype:
Single Family Residence
Neighborhood:
647
Listed Date:
Sep 30, 2025
Finished Sq Ft:
1,917
Lot Size:
11,677 sqft / 0.27 acres (approx)
Year Built:
1927
See this Listing
Schools
Interior
Appliances
NO
Bathrooms
2 Full Bathrooms
Cooling
NO
Heating
NO
Laundry Features
IK, IN
Exterior
Architectural Style
SPN
Community Features
SDW, SUB
Parking Spots
2
Roof
TLE
Security Features
SD, WB, COD
Financial
Map
Community
- AddressS Pasadena AV Lot 33 Pasadena CA
- SubdivisionNot Applicable
- CityPasadena
- CountyLos Angeles
- Zip Code91105
Subdivisions in Pasadena
Market Summary
Current real estate data for Single Family in Pasadena as of Oct 29, 2025
227
Single Family Listed
51
Avg DOM
630
Avg $ / SqFt
$1,557,024
Avg List Price
Property Summary
- Located in the Not Applicable subdivision, S Pasadena AV Lot 33 Pasadena CA is a Single Family for sale in Pasadena, CA, 91105. It is listed for $1,300,000 and features 3 beds, 2 baths, and has approximately 1,917 square feet of living space, and was originally constructed in 1927. The current price per square foot is $678. The average price per square foot for Single Family listings in Pasadena is $630. The average listing price for Single Family in Pasadena is $1,557,024.
Similar Listings Nearby
S Pasadena AV Lot 33
Pasadena, CA















































