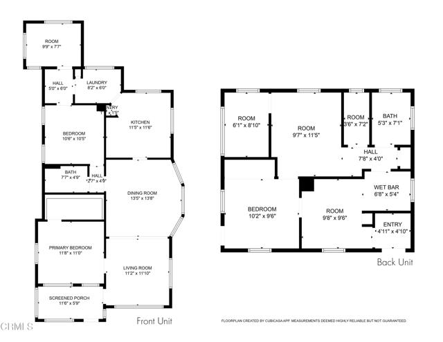
Welcome to 894 and 894B South Pasadena Avenue, Pasadena: an opportunity to restore and revitalize a historic duplex in the Pasadena Avenue Historic District. The front house with 1196 sqft (approx.) was built in 1903 by August C. Brandt, one of the contractors for Greene and Greene. This single-family traditional cottage is on one level with influences of the Colonial Revival style. A large pergola with carved beams extends from the roof eaves into the front yard and over the driveway, forming a porte cochere to the backyard. The home has a simple rectangular footprint and a hipped roof clad in shingles with flared eaves and curved, exposed rafter tails. While it has a similar footprint to other cottages in the district, its lower-pitch roof and larger windows along with the pergola/porte cochere show some early influences of the Arts and Crafts movement. In the rear, a Craftsman-style unit with 583 sqft (approx.) was built in 1911 and has a front-facing gabled roof and exteriors clad in coursed wood shakes. In addition, there is also a noncontributing shed at the end of the concrete driveway with exteriors of board and batten siding and a double-leaf door with strap hinges. 2 electrical meters! Don’t miss the chance to restore this historic gem with two units on a lot and the opportunity to take advantage of the Mills Act, making this home eligible for significant property tax savings.
Property Details
Price:
$750,000
MLS #:
P1-24315
Status:
A
Beds:
4
Baths:
2
Type:
Single Family
Subtype:
Duplex
Neighborhood:
647
Listed Date:
Sep 30, 2025
Finished Sq Ft:
1,779
Lot Size:
8,099 sqft / 0.19 acres (approx)
Year Built:
1903
See this Listing
Schools
Interior
Appliances
NO
Bathrooms
2 Full Bathrooms
Cooling
NO
Heating
NO
Laundry Features
IK, IN
Exterior
Architectural Style
COL
Community Features
SDW, SUB
Other Structures
TL
Parking Spots
2
Roof
CMP
Security Features
SD, COD
Financial
Map
Community
- Address894B S Pasadena AV Lot 33 Pasadena CA
- SubdivisionNot Applicable
- CityPasadena
- CountyLos Angeles
- Zip Code91105
Subdivisions in Pasadena
Market Summary
Current real estate data for Single Family in Pasadena as of Oct 30, 2025
281
Single Family Listed
33
Avg DOM
593
Avg $ / SqFt
$1,529,136
Avg List Price
Property Summary
- Located in the Not Applicable subdivision, 894B S Pasadena AV Lot 33 Pasadena CA is a Single Family for sale in Pasadena, CA, 91105. It is listed for $750,000 and features 4 beds, 2 baths, and has approximately 1,779 square feet of living space, and was originally constructed in 1903. The current price per square foot is $422. The average price per square foot for Single Family listings in Pasadena is $593. The average listing price for Single Family in Pasadena is $1,529,136.
Similar Listings Nearby
894B S Pasadena AV Lot 33
Pasadena, CA




















































