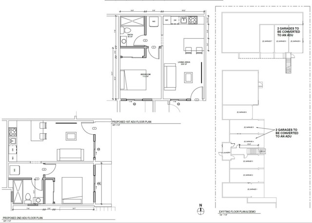
SELLER MAY CARRY – Pride-of-Ownership 10-unit (4 Houses & 2 Triplexes) on a large 21k SF R3 Zoned Lot, Excellent Unit Mix, Gated, Garage Parking, Drawings for 2 ADUs are included. MONTANO VILLAS, a 10-unit garden style apartment investment opportunity located in the City of Pasadena, CA. This exceptional property comprises 4 bungalows/houses and 2 triplexes and is situated on a large ±20,911sf R3 lot. This value-add investment opportunity provides savvy investors with high-quality assets in a strong Pasadena submarket with significant rental upside potential and future expansion opportunities. The ownership had completed many significant capital improvements: Some of the major improvements are recently replaced roofs, new Central A/C and heating in each unit, new double pane windows throughout. An initial drawing for 2 ADU units would be included in the sale.
MONTANO VILLAS is a pride-of-ownership attractive two-story garden style gated community that was built in 1949. It has a total of 8,340 SF building size and is situated on a ±20,911 SF R3 lot size. It offers excellent curb appeal with manicured landscaping. The property has 4 patio homes with a semi-private porch and side yard. The 4 patio homes are all 2 bedrooms+1bathroom units complete with laundry hookups. Each patio home has a tiled shower + bathtub.
The remaining 6 units consist of four (4) 2bedroom+1bathroom, and two (2) 1bedroom+1bathroom units. Each unit has central A/C and heating (installed in 2009), double pane windows, original hardwood flooring, stove, and refrigerator. Each of the 4 patio homes have a dishwasher. Each unit has an individual water heater and separately metered for electricity and gas.
The property has two shared laundry rooms (machines are seller owned) and a large storage room. Parking is provided by a combination of 9 parking garages (with storage spaces) and several open space parking. Most tenants in this community are long time tenants that are on month to month and are due for rent increases. An additional significant rental upside can be realized when units turn in the future.
The property is several blocks north of Old Town Pasadena. It is located east of Los Robles Ave and west of El Molino Ave. It is near the Rose Bowl area (Rose Bowl Stadium, Rose Bowl Aquatics Center, Kidspace Children Museum, and Brookside Golf Course), and just located across from a local Washington Park.
MONTANO VILLAS is a pride-of-ownership attractive two-story garden style gated community that was built in 1949. It has a total of 8,340 SF building size and is situated on a ±20,911 SF R3 lot size. It offers excellent curb appeal with manicured landscaping. The property has 4 patio homes with a semi-private porch and side yard. The 4 patio homes are all 2 bedrooms+1bathroom units complete with laundry hookups. Each patio home has a tiled shower + bathtub.
The remaining 6 units consist of four (4) 2bedroom+1bathroom, and two (2) 1bedroom+1bathroom units. Each unit has central A/C and heating (installed in 2009), double pane windows, original hardwood flooring, stove, and refrigerator. Each of the 4 patio homes have a dishwasher. Each unit has an individual water heater and separately metered for electricity and gas.
The property has two shared laundry rooms (machines are seller owned) and a large storage room. Parking is provided by a combination of 9 parking garages (with storage spaces) and several open space parking. Most tenants in this community are long time tenants that are on month to month and are due for rent increases. An additional significant rental upside can be realized when units turn in the future.
The property is several blocks north of Old Town Pasadena. It is located east of Los Robles Ave and west of El Molino Ave. It is near the Rose Bowl area (Rose Bowl Stadium, Rose Bowl Aquatics Center, Kidspace Children Museum, and Brookside Golf Course), and just located across from a local Washington Park.
Property Details
Price:
$3,800,000
MLS #:
AR25146336
Status:
Active
Beds:
0
Baths:
0
Type:
Single Family
Subtype:
Apartment
Neighborhood:
645
Listed Date:
Jun 30, 2025
Total Sq Ft:
8,340
Lot Size:
20,918 sqft / 0.48 acres (approx)
Year Built:
1949
See this Listing
Schools
Interior
Appliances
DW, FZ, GD, RF, GR, HOD
Cooling
CA, WW
Flooring
WOOD, CARP
Heating
WL, CF
Laundry Features
AR, CM, GAS, DINC, WH, WINC
Exterior
Architectural Style
MCM
Community Features
SUB, VLY
Parking Spots
10
Roof
ASB
Financial
Maintenance Fee
$3,000
Map
Community
- Address517 E Washington BL Pasadena CA
- CityPasadena
- CountyLos Angeles
- Zip Code91104
Market Summary
Current real estate data for Single Family in Pasadena as of Dec 03, 2025
133
Single Family Listed
73
Avg DOM
493
Avg $ / SqFt
$2,096,827
Avg List Price
Property Summary
- 517 E Washington BL Pasadena CA is a Single Family for sale in Pasadena, CA, 91104. It is listed for $3,800,000 and features 0 beds, 0 baths, and has approximately 0 square feet of living space, and was originally constructed in 1949. The average price per square foot for Single Family listings in Pasadena is $493. The average listing price for Single Family in Pasadena is $2,096,827.
Similar Listings Nearby
517 E Washington BL
Pasadena, CA











































