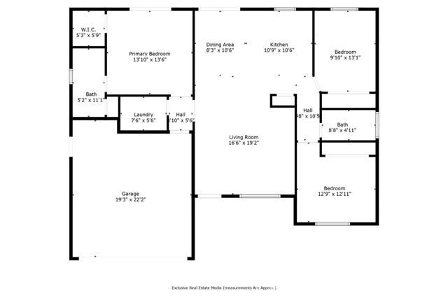
Welcome to 5846 Crestview Drive, a beautifully local builder crafted 3-bedroom, 2-bath home located on the highly desirable west side of Paradise. This thoughtfully designed 1,379 sq ft residence offers modern comfort and energy efficiency, with luxury vinyl plank flooring throughout the main living space, and elegant granite countertops in both the kitchen and bathrooms. The open-concept layout features a light-filled living and dining area that flows seamlessly into a stylish kitchen equipped with bar seating, ample cabinetry, and pantry. Perfect for everyday living and entertaining guests. The dining space opens up to the covered outdoor living space and fully fenced back yard.
The spacious primary suite includes an en-suite bath and generous closet space, while two additional bedrooms provide flexibility for family, guests, or a home office. A standout feature of this home is the fully owned solar system, offering significant monthly energy savings, and the opportunity to enjoy outdoor living year-round. The 191 square feet of covered porch and patio space is also ideal for relaxing mornings or evening gatherings. The 430 sq ft attached two-car garage provides convenient parking and additional storage.
Set on a quiet street in a well-established neighborhood, this property combines the peace of Paradise living with close proximity to parks, schools, and shopping.
The spacious primary suite includes an en-suite bath and generous closet space, while two additional bedrooms provide flexibility for family, guests, or a home office. A standout feature of this home is the fully owned solar system, offering significant monthly energy savings, and the opportunity to enjoy outdoor living year-round. The 191 square feet of covered porch and patio space is also ideal for relaxing mornings or evening gatherings. The 430 sq ft attached two-car garage provides convenient parking and additional storage.
Set on a quiet street in a well-established neighborhood, this property combines the peace of Paradise living with close proximity to parks, schools, and shopping.
Property Details
Price:
$405,000
MLS #:
SN25250468
Status:
Active
Beds:
3
Baths:
2
Type:
Single Family
Subtype:
Single Family Residence
Listed Date:
Oct 31, 2025
Finished Sq Ft:
1,379
Lot Size:
13,068 sqft / 0.30 acres (approx)
Year Built:
2025
See this Listing
Schools
School District:
Paradise Unified
Interior
Bathrooms
2 Full Bathrooms
Cooling
CA, ES
Heating
CF
Laundry Features
IR
Exterior
Community Features
RUR, STM, SUB, BLM, FHL, CW, HRS, HNT, MTN, PSV, RAV, LAKE, PARK, FISH, WATE, HIKI, BIKI, DGP
Parking Spots
2
Financial
Map
Community
- AddressCrestview DR Paradise CA
- CityParadise
- CountyButte
- Zip Code95969
Market Summary
Current real estate data for Single Family in Paradise as of Nov 03, 2025
99
Single Family Listed
51
Avg DOM
261
Avg $ / SqFt
$454,149
Avg List Price
Property Summary
- Crestview DR Paradise CA is a Single Family for sale in Paradise, CA, 95969. It is listed for $405,000 and features 3 beds, 2 baths, and has approximately 1,379 square feet of living space, and was originally constructed in 2025. The current price per square foot is $294. The average price per square foot for Single Family listings in Paradise is $261. The average listing price for Single Family in Paradise is $454,149.
Similar Listings Nearby
Crestview DR
Paradise, CA
















































