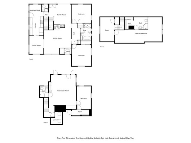
This home comes complete with a white picket fence in the heart of Valmonte and blends timeless charm with modern amenities. A lush front yard and blooming roses welcome you into a warm interior featuring hardwood floors, custom shutters, and elegant moldings. The formal living and dining rooms are perfect for entertaining. The bright kitchen offers white cabinetry, granite counters, stainless steel appliances and a cozy breakfast nook. The adjacent family room with beamed ceilings, opens to a covered deck with scenic treetop views.
The main level includes two spacious bedrooms and a classic hall bath. Upstairs, an office nook and private ensuite bedroom offer an ideal retreat. The lower level features a laundry room, second family room with built-ins, a beverage center, additional bedroom, and access to a large grassy yard with trail access. At the end of the the long driveway, there is also a detached spacious two car garage for parking or extra storage. All in close proximity to schools, the beach, shops and restaurants in the Riviera Village!
A rare blend of space, character and location in sought-after Palos Verdes Estates.
The main level includes two spacious bedrooms and a classic hall bath. Upstairs, an office nook and private ensuite bedroom offer an ideal retreat. The lower level features a laundry room, second family room with built-ins, a beverage center, additional bedroom, and access to a large grassy yard with trail access. At the end of the the long driveway, there is also a detached spacious two car garage for parking or extra storage. All in close proximity to schools, the beach, shops and restaurants in the Riviera Village!
A rare blend of space, character and location in sought-after Palos Verdes Estates.
Property Details
Price:
$7,250
MLS #:
SB25159452
Status:
A
Beds:
4
Baths:
4
Type:
Single Family
Subtype:
Single Family Residence
Neighborhood:
164
Listed Date:
Oct 22, 2025
Finished Sq Ft:
2,836
Lot Size:
8,343 sqft / 0.19 acres (approx)
Year Built:
1949
See this Listing
Schools
School District:
Palos Verdes Peninsula Unified
High School:
Palos Verdes Peninsula
Interior
Appliances
DW, FZ, GD, MW, RF, GO, GS, BIR, GWH
Bathrooms
2 Full Bathrooms, 1 Three Quarter Bathroom, 1 Half Bathroom
Cooling
NO
Flooring
WOOD, CARP
Heating
GAS, CF, FIR
Laundry Features
IR, IN, DINC, WINC
Exterior
Architectural Style
CPC
Community Features
SDW, CRB
Exterior Features
AW
Parking Spots
2
Roof
WOD
Security Features
COD, FSDS
Financial
Map
Community
- AddressPalos Verdes Drive North Lot 13 Palos Verdes Estates CA
- CityPalos Verdes Estates
- CountyLos Angeles
- Zip Code90274
Market Summary
Current real estate data for Single Family in Palos Verdes Estates as of Oct 29, 2025
33
Single Family Listed
43
Avg DOM
809
Avg $ / SqFt
$3,286,307
Avg List Price
Property Summary
- Palos Verdes Drive North Lot 13 Palos Verdes Estates CA is a Single Family for sale in Palos Verdes Estates, CA, 90274. It is listed for $7,250 and features 4 beds, 4 baths, and has approximately 2,836 square feet of living space, and was originally constructed in 1949. The current price per square foot is $3. The average price per square foot for Single Family listings in Palos Verdes Estates is $809. The average listing price for Single Family in Palos Verdes Estates is $3,286,307.
Similar Listings Nearby
Palos Verdes Drive North Lot 13
Palos Verdes Estates, CA






















