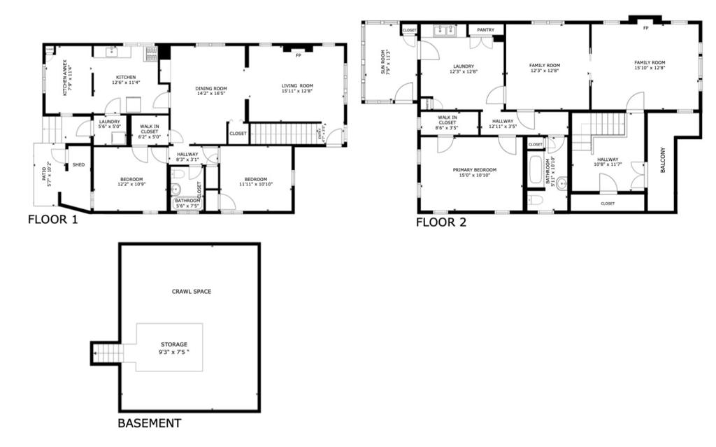
Opportunities abound in this 2,316sf Professorville home! Built in 1900 in one of Palo Alto’s most desirable neighborhoods, its plaster walls gracefully transition into the high coved ceilings throughout the ground level. Built-in cabinetry and vintage trim convey the grace of years gone by, while the floorplan is conducive to a large kitchen and large primary suite. The current 3 bedroom, 2 bath, 2 fireplace layout is an invitation to your creative genius to unlock value. Developer highlights include — The property’s FAR is a whopping 2,745sf, far in excess of today’s allowance of 2,070 — Options to add a basement, ADU, and JADU mean over 4,000sf is possible — Great foundation, great stucco, recently replaced roof, gutters & downsprouts — Not historic per City of Palo Alto — Not in Professorville Historic District — Not in the flood zone. Situated on a quiet residential street, just blocks from downtown shops and restaurants, and mere houses away from the highly regarded Addison Elementary, this location allows easy access to Stanford University, Silicon Valley employers, and award-winning Palo Alto schools.
Property Details
Price:
$3,000,000
MLS #:
ML82026149
Status:
Active
Beds:
3
Baths:
2
Type:
Single Family
Subtype:
Single Family Residence
Neighborhood:
699notdefined
Listed Date:
Dec 3, 2025
Finished Sq Ft:
2,316
Lot Size:
4,600 sqft / 0.11 acres (approx)
Year Built:
1900
See this Listing
Schools
School District:
Palo Alto Unified
Elementary School:
Other
Middle School:
Other
High School:
Palo Alto
Interior
Appliances
FZ, RF, GO
Bathrooms
2 Full Bathrooms
Cooling
NO
Flooring
WOOD, CARP
Laundry Features
WINC
Exterior
Architectural Style
TRD
Construction Materials
STC
Parking Spots
1
Roof
CMP, SHN
Financial
Map
Community
- Address566 Addison AV Palo Alto CA
- CityPalo Alto
- CountySanta Clara
- Zip Code94301
Subdivisions in Palo Alto
Market Summary
Current real estate data for Single Family in Palo Alto as of Dec 07, 2025
41
Single Family Listed
163
Avg DOM
1,745
Avg $ / SqFt
$5,103,248
Avg List Price
Property Summary
- 566 Addison AV Palo Alto CA is a Single Family for sale in Palo Alto, CA, 94301. It is listed for $3,000,000 and features 3 beds, 2 baths, and has approximately 2,316 square feet of living space, and was originally constructed in 1900. The current price per square foot is $1,295. The average price per square foot for Single Family listings in Palo Alto is $1,745. The average listing price for Single Family in Palo Alto is $5,103,248.
Similar Listings Nearby
566 Addison AV
Palo Alto, CA






























