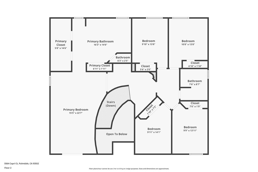
Stunning East Palmdale 6 Bed 3 Bath, Turnkey Home. Welcome to this beautifully appointed 3,319sqft property that offers an exceptional blend of comfort, style, and functionality. Starting with curb appeal, this property exudes tranquility and refinement. Upon entering, the dramatic staircase makes a grand first impression, setting the tone for the sophisticated architecture and easy flow seen throughout the home. The first of two spacious living rooms greets you with a fireplace and large hearth with a window surround. From the living room you move seamlessly to the formal dining room with direct access to the kitchen. In the kitchen, you will enjoy the island, ample storage and a charming breakfast nook that showcases a see-through fireplace that segues to the second living room, adding a warm, sophisticated touch. Conveniently, the first floor also offers a bedroom with an adjacent bathroom, ideal for guests or multi-generational living. Heading upstairs, the impressive primary suite is a true retreat, complete with a private balcony, ample space for a sitting area, large walk-in closet and a sprawling, luxurious bathroom. Rounding out the upstairs are the 4 remaining, generously sized bedrooms and the 3rd well appointed bathroom. Immaculately maintained and move-in ready, this property delivers exceptional space, thoughtful design, and standout features rarely found all in one home. As an added bonus, the A/C is a newer (2 year old) Bosch unit AND included are the stove, fridge, washer & dryer! Come see this beauty and imagine the possibilities for you and your family.
Property Details
Price:
$620,000
MLS #:
SR25263356
Status:
Active
Beds:
6
Baths:
3
Type:
Single Family
Subtype:
Single Family Residence
Neighborhood:
plmpalmdale
Listed Date:
Nov 23, 2025
Finished Sq Ft:
3,319
Lot Size:
7,010 sqft / 0.16 acres (approx)
Year Built:
2003
See this Listing
Schools
School District:
Antelope Valley Union
Interior
Appliances
DW, MW, RF, GR
Bathrooms
3 Full Bathrooms
Cooling
CA
Flooring
TILE, CARP
Heating
CF
Laundry Features
IR, DINC, WINC
Exterior
Architectural Style
TRD
Community Features
SDW, SL, SUB, CRB
Construction Materials
STC
Parking Spots
3
Roof
TLE
Financial
Map
Community
- Address5564 Capri CT Palmdale CA
- CityPalmdale
- CountyLos Angeles
- Zip Code93552
Subdivisions in Palmdale
Market Summary
Current real estate data for Single Family in Palmdale as of Dec 13, 2025
293
Single Family Listed
62
Avg DOM
257
Avg $ / SqFt
$514,357
Avg List Price
Property Summary
- 5564 Capri CT Palmdale CA is a Single Family for sale in Palmdale, CA, 93552. It is listed for $620,000 and features 6 beds, 3 baths, and has approximately 3,319 square feet of living space, and was originally constructed in 2003. The current price per square foot is $187. The average price per square foot for Single Family listings in Palmdale is $257. The average listing price for Single Family in Palmdale is $514,357.
Similar Listings Nearby
5564 Capri CT
Palmdale, CA










































