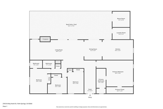
Welcome to 2745 Kitty Hawk – a professionally designed and fully permitted Palm Springs retreat that blends modern luxury with timeless comfort. This stunning property has been tastefully remodeled from top to bottom, with updates that outshine the competition. Step inside to discover porcelain tile flooring throughout the living spaces and luxury vinyl in all bedrooms, designed for both elegance and durability. The home features two master suites, each offering spa-like comfort. One master retreat boasts a walk-in closet, dual vanities, and an expansive master shower with multiple shower heads, creating a true desert sanctuary. The chef’s kitchen is a dream come true, complete with granite countertops, a dual-zone refrigerator, and a premium ZLINE stove, making every meal an elevated experience. The open floor plan connects the kitchen, dining, and living areas seamlessly—perfect for entertaining family and friends. Major upgrades include: New AC and HVAC system for year-round comfort, 100 MPH cool roof shingles for energy efficiency and peace of mind and Fully permitted renovations with quality craftsmanship throughout. Step outside to your resort-style backyard oasis. A redesigned pool with Pebble Tec finish and a Baja deck invites you to relax in the water instead of just beside it. The covered patio provides shade on warm days, while the side yard with BBQ area sets the stage for outdoor gatherings. An additional pool/game room extends your entertainment options year-round. The professionally landscaped front yard adds incredible curb appeal, while the oversized lot provides ample parking, RV access, and potential for an ADU. This home is ideal for a variety of buyers: full-time residents looking for a modern Palm Springs lifestyle, vacation homeowners wanting a turnkey escape, or investors seeking a high-demand property with short-term rental potential. Located minutes from shopping, dining, golf, hiking, and the vibrant Palm Springs downtown, this home offers the perfect balance of privacy, luxury, and convenience. Don’t miss your chance to own a property that has been professionally designed, thoughtfully remodeled, and built to impress—everything you’ve been waiting for in the desert.
Property Details
Price:
$1,099,000
MLS #:
SR25265594
Status:
Active
Beds:
4
Baths:
3
Type:
Single Family
Subtype:
Single Family Residence
Subdivision:
Racquet Club East 33122
Neighborhood:
331
Listed Date:
Nov 25, 2025
Finished Sq Ft:
2,569
Lot Size:
9,583 sqft / 0.22 acres (approx)
Year Built:
1961
See this Listing
Schools
School District:
Palm Springs Unified
Interior
Appliances
DW, GD, RF, GR
Bathrooms
3 Full Bathrooms
Cooling
CA
Flooring
TILE, VINY
Heating
CF
Laundry Features
GAS, IN, WH
Exterior
Architectural Style
TRD
Community Features
SDW, SUB
Parking Spots
5
Roof
SHN
Security Features
EXL, SD, COD
Financial
Map
Community
- Address2745 N Kitty Hawk DR Lot 35 Palm Springs CA
- SubdivisionRacquet Club East (33122)
- CityPalm Springs
- CountyRiverside
- Zip Code92262
Subdivisions in Palm Springs
- 400 West 33201
- Alta
- Andreas Hills
- Bella Monte
- Biarritz
- Biltmore
- Biltmore 33409
- Biltmore Colony 33410
- Caballeros Estates
- Cahuilla Hills
- Camino Del Sol
- Canyon C.C. Estados
- Canyon Granada 33420
- Canyon Heights
- Canyon Sands
- Canyon View Condos
- Canyon View Estates
- Canyon West Estates
- Casa De Oro
- Catalina Grove
- Center Court
- Central Palm Springs
- Chino Canyon
- Coco Cabana
- Colony El Mirador
- Dakota
- Deauville
- Deepwell
- Demuth Park
- Demuth Park 33443
- Desert Highland Gateway
- Desert Palm Villas
- Desert Park Estates
- Desert Park Estates 33103
- Desert Sun Resort
- Diplomat 33445
- El Dorado Palm Springs 33447
- El Mirador
- El Rancho Vista Estates
- Enclave at Sunrise
- Escena
- Escena 33274
- Esprit
- Estados South 33449
- Estancias at South Canyon 33450
- Fairways 33451
- Firebird
- Flora Vista
- Four Seasons
- Four Seasons 33106
- Gateway Highlands 33107
- Hermosa Villas
- Indian Canyon Gardens
- Indian Canyon Villas 33109
- Indian Canyon Villas 33456
- Indian Canyons
- La Palme
- Lantana Lodge 33231
- Las Palmas Heights
- Little Tuscany
- Los Compadres
- Los Compadres 33459
- Luminaire
- Mesquite Country Clu
- Mountain Gate
- Mountain Gate PS 33110
- Mountain Shadow North
- Mountain Shadows PS 33468
- Movie Colony
- Movie Colony East
- Movie Colony East 33248
- New Mesquite
- Ocotillo Lodge
- Old Las Palmas
- Palermo
- Palm Canyon 60040
- Palm Canyon Villas
- Palm Canyon Villas 33473
- Palm Sp Villas I
- Palm Sp Villas II
- Palm Springs C.C. 33113
- Palm Springs Country Club
- Palm Springs Golf & Tennis
- Palm Springs Villas I 33115
- Palm Springs Villas II 33114
- Palm Villas 33477
- Parc Andreas
- Park Escoba
- Park Imperial South 33481
- Park San Rafael
- Plaza Villas 33239
- PS Colony
- Pueblo Sands
- Pueblo Sands 33242
- Quail Point
- Racquet Club Colony
- Racquet Club East
- Racquet Club East 33122
- Racquet Club West
- Ramon Estados
- Ramona Villas
- Ramona Villas 33486
- Ranch Club Estados
- Rancho El Mirador 33245
- Rancho La Paz 33487
- Riviera Gardens
- Rose Garden 33247
- Saddlerock Estate
- Safari Park
- Safari Park 33493
- Sahara Park
- San Jacinto Cove
- San Jacinto Cove 33126
- Sandstone Villas
- Seven Lakes C.C.
- Smoketree Racquet Cl
- Sol
- Sommerset Springs 33526
- St. Tropez Villas 33252
- Sun Villas
- Sundial Condos
- Sunflower
- Sunrise East
- Sunrise Palms
- Sunrise Park
- Sunshine Villa
- Tahquitz Creek Golf
- Tahquitz Creek Golf Course 33508
- Tahquitz Creek Villas
- Tahquitz River Estat
- Tahquitz River Estates
- Tennis Club
- Tennis Club SFR 33261
- Terra Vita
- The Cove
- The Mesa
- The Morrison
- Tierra Hermosa
- Twin Palms 33512
- Victoria Park 33134
- Victoria Park/Vista Norte
- Villa Alejo
- Villa Alejo 33266
- Villa Caballeros
- Vintage Palms
- Vista Las Palmas
- Warm Sands
- Waverly Park
Market Summary
Current real estate data for Single Family in Palm Springs as of Nov 26, 2025
214
Single Family Listed
57
Avg DOM
517
Avg $ / SqFt
$1,234,739
Avg List Price
Property Summary
- Located in the Racquet Club East (33122) subdivision, 2745 N Kitty Hawk DR Lot 35 Palm Springs CA is a Single Family for sale in Palm Springs, CA, 92262. It is listed for $1,099,000 and features 4 beds, 3 baths, and has approximately 2,569 square feet of living space, and was originally constructed in 1961. The current price per square foot is $428. The average price per square foot for Single Family listings in Palm Springs is $517. The average listing price for Single Family in Palm Springs is $1,234,739.
Similar Listings Nearby
2745 N Kitty Hawk DR Lot 35
Palm Springs, CA
























































