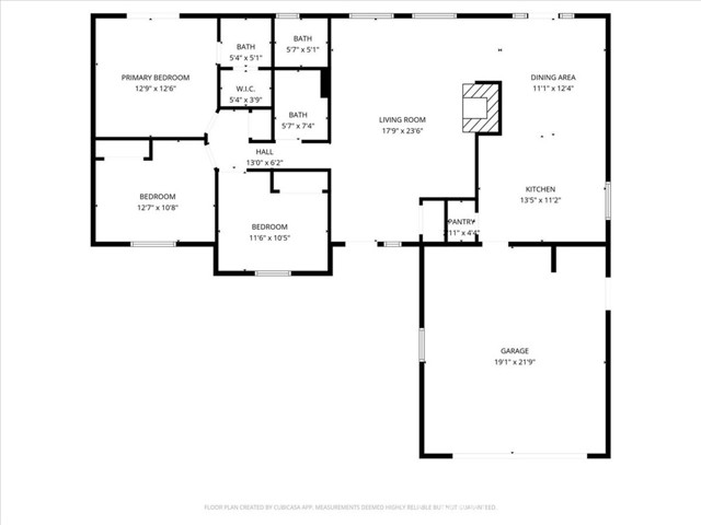
Comfortable Rural Living – You will love the cathedral ceiling with pellet stove in the living room. Nice sized kitchen with pantry, greenhouse window. Primary bedroom with sliding glass door, and bath with double sinks, walk-in closet and walk-in shower. Now for the back and side yard! Large, covered wood patio/deck that overlooks a tributary to the Wyman Ravine and pastureland behind. Great for relaxing and entertaining. Side yard features a nice 28′ x24′ SHOP with additional RV parking and owned solar array on the roof. Power outage? No problem – 22 Kw Generac generator, natural gas powered.
Property Details
Price:
$360,000
MLS #:
OR25242100
Status:
Active
Beds:
3
Baths:
2
Type:
Single Family
Subtype:
Single Family Residence
Listed Date:
Oct 23, 2025
Finished Sq Ft:
1,371
Lot Size:
19,166 sqft / 0.44 acres (approx)
Year Built:
1990
See this Listing
Schools
School District:
Oroville Union
Interior
Appliances
DW,   FZ,   MW,   RF,   WLR,   ER,   GWH,   VEF
Bathrooms
2 Full Bathrooms
Cooling
CA,   ELC,   WHF
Flooring
TILE,   LAM,   VINY,   CARP
Heating
FA,   GAS,   CF,   PEL
Laundry Features
GE,   IG,   DINC,   WH,   WINC
Exterior
Architectural Style
CNT
Community Features
RUR,   FHL
Construction Materials
WOD
Exterior Features
RG
Other Structures
SHP,   SEGAD
Parking Spots
10
Roof
CMP,   MTL
Security Features
SD,   COD
Financial
Map
Community
- AddressOro Bangor HY Oroville CA
 - CityOroville
 - CountyButte
 - Zip Code95966
 
Market Summary
Current real estate data for Single Family in Oroville as of Nov 04, 2025
158
Single Family Listed
71
Avg DOM
207
Avg $ / SqFt
$337,810
Avg List Price
Property Summary
- Oro Bangor HY Oroville CA is a Single Family for sale in Oroville, CA, 95966.  It is listed for $360,000 and features 3 beds, 2 baths, and has approximately 1,371 square feet of living space, and was originally constructed in 1990. The current price per square foot is $263.  The average price per square foot for Single Family listings in Oroville is $207.  The average listing price for Single Family in Oroville is $337,810.
 
Similar Listings Nearby
Oro Bangor HY
Oroville, CA

























