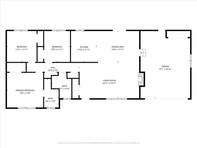
This well maintained 3-bedroom, 2-bathroom home sits on nearly a half-acre and is set slightly up off the road, giving it a welcoming and private presence. Inside, you’ll appreciate the spacious layout, nicely sized bedrooms (with original hardwood floors under the carpets) and a brick fireplace that adds a cozy focal point to the living space. An abundance of natural light shines through the updated windows. 
Recent improvements include a new roof and gutters, plus the comfort of central heat and air. The two-car garage provides ample storage and parking plus there is plenty of space for RV parking and maneuvering with the large concrete circular driveway. The yard offers plenty of space, is terraced in the back and is ready for your personal touch to make it shine. Come make this well priced home in a desired location yours!
Recent improvements include a new roof and gutters, plus the comfort of central heat and air. The two-car garage provides ample storage and parking plus there is plenty of space for RV parking and maneuvering with the large concrete circular driveway. The yard offers plenty of space, is terraced in the back and is ready for your personal touch to make it shine. Come make this well priced home in a desired location yours!
Property Details
Price:
$325,000
MLS #:
OR25241110
Status:
Active
Beds:
3
Baths:
2
Type:
Single Family
Subtype:
Single Family Residence
Listed Date:
Oct 24, 2025
Finished Sq Ft:
1,410
Lot Size:
19,602 sqft / 0.45 acres (approx)
Year Built:
1963
See this Listing
Schools
School District:
Oroville Union
Interior
Appliances
DW,   RF,   ES,   EO
Bathrooms
2 Full Bathrooms
Cooling
CA
Flooring
LAM,   WOOD,   CARP
Heating
CF,   FIR
Laundry Features
IG
Exterior
Community Features
FHL,   HIKI,   BIKI
Parking Spots
2
Roof
CMP
Security Features
SD,   COD
Financial
Map
Community
- AddressHildale AV Lot 261 Oroville CA
 - CityOroville
 - CountyButte
 - Zip Code95966
 
Market Summary
Current real estate data for Single Family in Oroville as of Nov 04, 2025
158
Single Family Listed
71
Avg DOM
207
Avg $ / SqFt
$337,810
Avg List Price
Property Summary
- Hildale AV Lot 261 Oroville CA is a Single Family for sale in Oroville, CA, 95966.  It is listed for $325,000 and features 3 beds, 2 baths, and has approximately 1,410 square feet of living space, and was originally constructed in 1963. The current price per square foot is $230.  The average price per square foot for Single Family listings in Oroville is $207.  The average listing price for Single Family in Oroville is $337,810.
 
Similar Listings Nearby
Hildale AV Lot 261
Oroville, CA


































