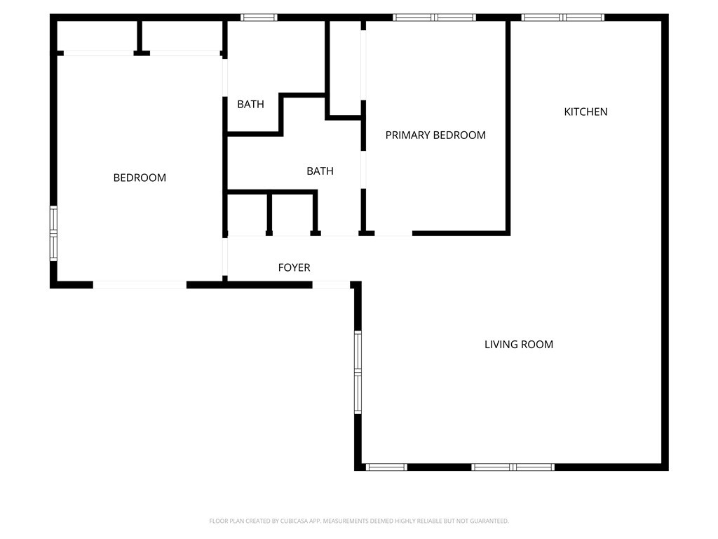
Welcome home to 236 S. Shaffer, one of the largest 2 on a lot homes in Old Towne Orange, just a few blocks from the plaza! The front house features a 2-story 4-bedroom plus office/den or 5th bedroom, 2.5 bath, with a main floor bedroom and bath. Large living room that has an entertainment area with a wrap-around bar, a fireplace that opens to the formal dining room and kitchen. The kitchen features a breakfast bar, center island, and walk-in pantry. A convenient “mud room” that has a guest powder room and laundry room. upstairs, 3 bedrooms including a 480 sqft primary bedroom, a walk-in closet, and a 250 sqft enclosed sun room. Lots of possibilities. The guest house, 431 E. Washington, features 2 primary suites, each has their own bathroom, a large living room, and dining area that is open to the kitchen with a breakfast bar. The larger primary has lots of closet space and sliding glass doors to a large private sun balcony. Over 4000 sq. ft. of living area combined, this is a one-of-a-kind, rare find in Old Towne. 4 over-sized single car garages, central heating and air in both units, whole house fan in main house, new blinds and carpet, and golden teak hand scraped wood floors in the main house. Beautifully landscaped grounds, front yard blooming with color, private yard has mature shade trees, patio areas enclosed with wood fences. Not only are these homes exceptionally large for the area, but the open floor plans make the living areas very flexible.
Property Details
Price:
$1,998,000
MLS #:
PW25252361
Status:
Active
Beds:
0
Baths:
0
Type:
Single Family
Subtype:
Duplex
Neighborhood:
72orangegardengroveeofharbornof22f
Listed Date:
Nov 6, 2025
Total Sq Ft:
4,000
Lot Size:
6,464 sqft / 0.15 acres (approx)
Year Built:
1928
See this Listing
Schools
Interior
Appliances
DW, GD, GO, GR, DO, GWH
Cooling
CA
Flooring
TILE, WOOD, CARP
Heating
CF
Laundry Features
GAS, IR, IN, DINC, WH, WINC
Exterior
Architectural Style
CRF, CB
Community Features
SDW, SL, SUB, CRB
Construction Materials
STC, WOD
Exterior Features
RG
Other Structures
TL, GH
Parking Spots
8
Roof
CMP, SHN
Security Features
SD, COD
Financial
Map
Community
- Address236 S Shaffer ST Lot 71 Orange CA
- SubdivisionOther (OTHR)
- CityOrange
- CountyOrange
- Zip Code92866
Subdivisions in Orange
Market Summary
Current real estate data for Single Family in Orange as of Dec 16, 2025
253
Single Family Listed
52
Avg DOM
424
Avg $ / SqFt
$922,289
Avg List Price
Property Summary
- Located in the Other (OTHR) subdivision, 236 S Shaffer ST Lot 71 Orange CA is a Single Family for sale in Orange, CA, 92866. It is listed for $1,998,000 and features 0 beds, 0 baths, and has approximately 0 square feet of living space, and was originally constructed in 1928. The average price per square foot for Single Family listings in Orange is $424. The average listing price for Single Family in Orange is $922,289.
Similar Listings Nearby
236 S Shaffer ST Lot 71
Orange, CA




























































