Welcome Home to this beautifully remodeled TURN KEY home in north Orange! This 3-bedroom, 2- full bath home boasts oak hardwood floors throughout, open floorplan living space, and a spacious back yard with sparkling swimming pool just waiting for summertime parties! This home’s interior is all on one level with no steps.
The updated kitchen features a dual oven and gas cooktop, as well as ample cabinet and pantry storage including pull-out shelving. Bright recessed ceiling lighting and under-cabinet accent lighting show off the “antiqued” subway tiles and dark quartz countertops. The refrigerator nook is directly plumbed.
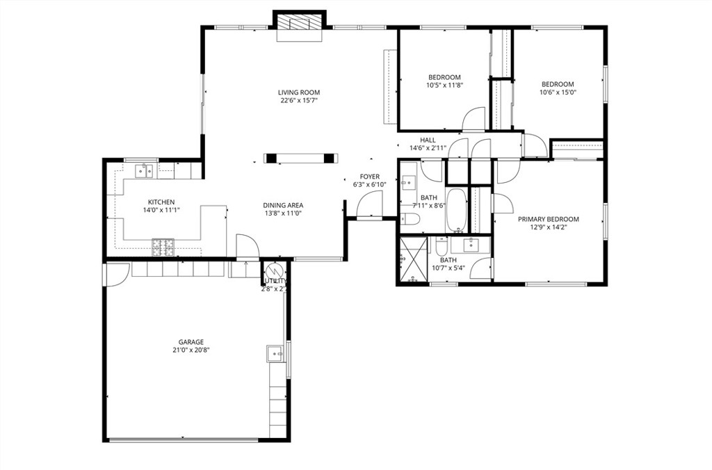
The breakfast bar separates the kitchen from the adjacent dining room, which has ample space for a large dining table as well as built-in shelving to show off your favorite cookbooks or dishes.
The spacious living area features a large custom-built entertainment unit as well as convenient in-floor power outlets. The cozy fireplace has been maintained with its original brick charm, updated with a modern mantle. Plantation-style shutters cover the large, sunny windows that overlook the pool and back yard.
A large sliding door opens to the spacious covered patio and then out to the pool deck, with plenty of space for lounging in the sun or splashing in the pool. Perfect for entertaining, or just enjoying a beautiful Southern California afternoon all year long!
The primary bedroom features two reach-in closets with cedarwood flooring, and the spa-like primary ensuite has been beautifully updated with modern plumbing fixtures. The walk-in shower features a beautiful carrara tile surround and shower seat.
Both large secondary bedrooms have been updated with new windows, mirrored sliding closet doors, and closet cedarwood flooring. The guest bathroom feels simply luxurious with updated vanity, bathtub, and fixtures, modern floral wallpaper with reverse-matching custom shower curtain, and penny-tile flooring.
The oversized 2-car garage has an updated garage door and new motor. There is ample storage available with the garage cabinet system, and space for a workbench adjacent to the laundry hookups and utility sink.
The 2021 remodel project for this home included interior electrical rewiring, attic ductwork, oak flooring, new dual-pane windows, and a new water heater in addition to what is noted above.
Freeway close to 57, 55, and 91, and minutes away from Chapman U, CSUF, Orange Circle, and both Anaheim Stadium and Honda Center.
The updated kitchen features a dual oven and gas cooktop, as well as ample cabinet and pantry storage including pull-out shelving. Bright recessed ceiling lighting and under-cabinet accent lighting show off the “antiqued” subway tiles and dark quartz countertops. The refrigerator nook is directly plumbed.
The breakfast bar separates the kitchen from the adjacent dining room, which has ample space for a large dining table as well as built-in shelving to show off your favorite cookbooks or dishes.
The spacious living area features a large custom-built entertainment unit as well as convenient in-floor power outlets. The cozy fireplace has been maintained with its original brick charm, updated with a modern mantle. Plantation-style shutters cover the large, sunny windows that overlook the pool and back yard.
A large sliding door opens to the spacious covered patio and then out to the pool deck, with plenty of space for lounging in the sun or splashing in the pool. Perfect for entertaining, or just enjoying a beautiful Southern California afternoon all year long!
The primary bedroom features two reach-in closets with cedarwood flooring, and the spa-like primary ensuite has been beautifully updated with modern plumbing fixtures. The walk-in shower features a beautiful carrara tile surround and shower seat.
Both large secondary bedrooms have been updated with new windows, mirrored sliding closet doors, and closet cedarwood flooring. The guest bathroom feels simply luxurious with updated vanity, bathtub, and fixtures, modern floral wallpaper with reverse-matching custom shower curtain, and penny-tile flooring.
The oversized 2-car garage has an updated garage door and new motor. There is ample storage available with the garage cabinet system, and space for a workbench adjacent to the laundry hookups and utility sink.
The 2021 remodel project for this home included interior electrical rewiring, attic ductwork, oak flooring, new dual-pane windows, and a new water heater in addition to what is noted above.
Freeway close to 57, 55, and 91, and minutes away from Chapman U, CSUF, Orange Circle, and both Anaheim Stadium and Honda Center.
Property Details
Price:
$1,190,000
MLS #:
PW25267466
Status:
Active
Beds:
3
Baths:
2
Type:
Single Family
Subtype:
Single Family Residence
Neighborhood:
rvbriverbend
Listed Date:
Dec 3, 2025
Finished Sq Ft:
1,463
Lot Size:
8,100 sqft / 0.19 acres (approx)
Year Built:
1963
See this Listing
Schools
School District:
Orange Unified
Elementary School:
Fletcher
Middle School:
Cerro Villa
High School:
Villa Park
Interior
Appliances
DW, GD, MW, WLR, GR, EO, DO, GWH
Bathrooms
2 Full Bathrooms
Cooling
CA
Heating
CF, FIR
Laundry Features
GAS, IG, WH
Exterior
Architectural Style
RAN
Community Features
SDW, STM, SL, SUB, CRB
Construction Materials
STC, DWAL
Parking Spots
5
Roof
SHN
Security Features
SD, COD
Financial
Map
Community
- Address2496 N Beechwood ST Orange CA
- CityOrange
- CountyOrange
- Zip Code92865
Subdivisions in Orange
Market Summary
Current real estate data for Single Family in Orange as of Dec 12, 2025
115
Single Family Listed
36
Avg DOM
397
Avg $ / SqFt
$834,084
Avg List Price
Property Summary
- 2496 N Beechwood ST Orange CA is a Single Family for sale in Orange, CA, 92865. It is listed for $1,190,000 and features 3 beds, 2 baths, and has approximately 1,463 square feet of living space, and was originally constructed in 1963. The current price per square foot is $813. The average price per square foot for Single Family listings in Orange is $397. The average listing price for Single Family in Orange is $834,084.
Similar Listings Nearby
2496 N Beechwood ST
Orange, CA































