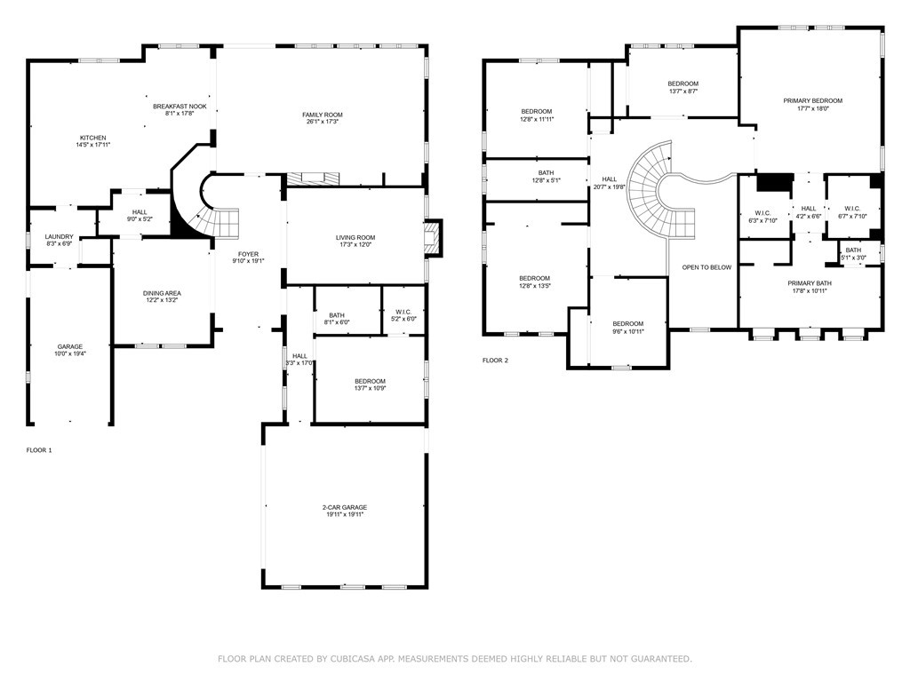
Welcome to your dream retreat in Serrano Heights Estates! Nestled on a quiet cul-de-sac, this elegant 5-bedroom, 3-bath home blends comfort and luxury across 3,620 SF of living space. From the moment you step inside, you''re greeted by soaring ceilings, a sweeping staircase, and rich laminate floors that create a warm, welcoming feel. The gourmet kitchen—complete with granite island, stainless steel appliances, and generous storage—opens to a cozy breakfast nook and spacious family room with a fireplace. French doors lead to a private backyard paradise featuring a saltwater pebble tec pool and spa, rock waterfalls, built-in BBQ, and an elevated patio with fire pit. A main-floor bedroom and full bath provide the perfect setup for multigenerational living or overnight guests. Upstairs, the expansive primary suite offers a spa-style bath and dual walk-in closets, while a converted loft adds a 6th bedroom for extra flexibility.
Property Details
Price:
$2,234,444
MLS #:
PW25118693
Status:
Active
Beds:
5
Baths:
3
Address:
2437 N Eaton Court
Type:
Single Family
Subtype:
Single Family Residence
Neighborhood:
75orangeorangeparkacreseof55
City:
Orange
Listed Date:
May 10, 2025
State:
CA
Finished Sq Ft:
3,620
ZIP:
92867
Lot Size:
10,377 sqft / 0.24 acres (approx)
Year Built:
2002
See this Listing
Mortgage Calculator
Schools
School District:
Orange Unified
Elementary School:
Anaheim Hills
Middle School:
El Rancho Charter
High School:
Canyon
Interior
Accessibility Features
Parking
Appliances
Dishwasher, Double Oven, Gas Cooktop, Water Heater
Cooling
Central Air
Fireplace Features
Family Room, Living Room
Heating
Central
Interior Features
Granite Counters
Exterior
Association Amenities
Management
Community Features
Curbs, Gutters, Sidewalks, Street Lights, Suburban
Electric
Standard
Garage Spaces
3.00
Green Energy Generation
Solar
Lot Features
Back Yard, Cul- De- Sac, Front Yard, Lot 10000-19999 Sqft
Parking Features
Driveway, Concrete, Garage Faces Front, Garage Faces Side, Garage – Single Door, Garage – Two Door, Garage Door Opener, Street
Parking Spots
3.00
Pool Features
Private, In Ground, Salt Water
Roof
Spanish Tile
Sewer
Public Sewer
Spa Features
In Ground
Stories Total
2
View
Pool
Water Source
Public
Financial
Association Fee
94.00
HOA Name
Serrano Heights
Utilities
Cable Connected, Electricity Connected
Map
Community
- Address2437 N Eaton Court Orange CA
- Area75 – Orange, Orange Park Acres E of 55
- CityOrange
- CountyOrange
- Zip Code92867
Similar Listings Nearby
- 3211 E Mandeville Place
Orange, CA$2,899,990
2.77 miles away
- 18111 Dorchester Circle
Villa Park, CA$2,895,000
2.79 miles away
- 1063 S Taylor Court
Anaheim, CA$2,890,000
2.50 miles away
- 1040 S Summer Breeze Lane
Anaheim Hills, CA$2,880,000
2.70 miles away
- 21417 Zaca Court
Yorba Linda, CA$2,869,989
4.62 miles away
- 18781 Peppertree Drive
Villa Park, CA$2,869,888
1.85 miles away
- 4811 Rideline Road
Yorba Linda, CA$2,799,990
4.59 miles away
- 19081 Mesa Drive
Villa Park, CA$2,799,900
1.62 miles away
- 18812 Smoketree Circle
Villa Park, CA$2,799,000
1.82 miles away
- 21925 Heatheridge Drive
Yorba Linda, CA$2,799,000
4.43 miles away
2437 N Eaton Court
Orange, CA
LIGHTBOX-IMAGES






































































































































































































































































































































































































































































































































































































