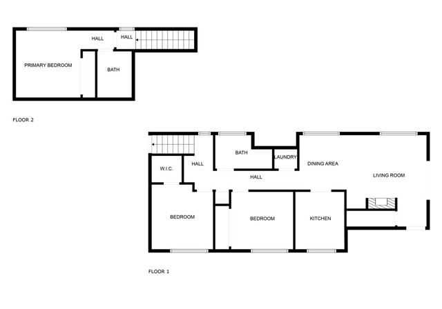
Situated in one of the best locations in the exclusive Newport Beach Balboa peninsula. Both units have been remodeled. The lower unit features 2
bedrooms on the first floor and the master bedroom on the second floor, 2 bathrooms and a front Patio, in-unit washer dryer and 2 car garage
parking space. Upper unit Features 3 bedrooms, 2 bathrooms and a balcony and 2 car garage parking space. Both units have their own fireplaces in
the living room, Located near the beach, shops, restaurants, bike paths, and all that beach city living has to offer
bedrooms on the first floor and the master bedroom on the second floor, 2 bathrooms and a front Patio, in-unit washer dryer and 2 car garage
parking space. Upper unit Features 3 bedrooms, 2 bathrooms and a balcony and 2 car garage parking space. Both units have their own fireplaces in
the living room, Located near the beach, shops, restaurants, bike paths, and all that beach city living has to offer
Property Details
Price:
$3,500,000
MLS #:
PW25136714
Status:
Active
Beds:
0
Baths:
0
Type:
Single Family
Subtype:
Commercial/Residential
Subdivision:
Balboa Peninsula Residential BALP
Neighborhood:
np
Listed Date:
Jun 18, 2025
Total Sq Ft:
2,112
Lot Size:
2,375 sqft / 0.05 acres (approx)
Year Built:
1988
See this Listing
Schools
Interior
Cooling
NO
Laundry Features
ICL
Exterior
Community Features
SDW, SL
Parking Spots
4
Financial
Map
Community
- Address32nd ST Lot 15 Newport Beach CA
- SubdivisionBalboa Peninsula (Residential) (BALP)
- CityNewport Beach
- CountyOrange
- Zip Code92663
Subdivisions in Newport Beach
- Back Bay Anniversary Homes BBAN
- Balboa Coves BLCV
- Balboa Island – Collins Island BALC
- Balboa Island – Little Island BALL
- Balboa Island – Main Island BALM
- Balboa One Ford Road OFBB
- Balboa Peninsula
- Balboa Peninsula Point BLPP
- Balboa Peninsula Residential BALP
- Baycrest ""L"" Series BCL
- Baycrest South BCSO
- Bayridge BRID
- Bayshores BSHR
- Bayside Village BAYV
- Bayview Terrace BVTR
- Beacon Bay BEAC
- Beacon Court BECT
- Belcourt Custom BLCS
- Belcourt Hill BLHL
- Belcourt Terrace BLTR
- Belcourt Towne Collection BLTC
- Big Canyon Broadmoor BCBM
- Big Canyon Custom BCCS
- Big Canyon Deane BCDN
- Big Canyon McLain BCMC
- Big Canyon Villa BCVA
- Bluffs Homes on the Bay BNHB
- Bluffs Original BORI
- Bluffs Park Homes BNPK
- Bluffs Tennis Villas BNTV
- Cannery Village Mobile Park CVMP
- Central Newport CNEW
- Cherry Lake Estates UBLE
- Cliffhaven CLIF
- Dover Shores ""100"" Series DSA1
- Dover Shores DSAM
- Eastbluff – Lusk EBLK
- Eastbluff – Macco EBMO
- Granville GRNV
- Harbor Cove Palisades HCPS
- Harbor Cove Promenade HCPM
- Harbor Highlands I HH01
- Harbor Highlands II HH02
- Harbor Island ""Drive"" HIDC
- Harbor Island HARI
- Harbor Ridge Crest HRCR
- Harbor Ridge Custom HRCS
- Harbor Ridge Estates HRES
- Harbor View Homes HVHM
- Harbor View Knoll HKNL
- Kings Road KGRD
- Lido Building #601 L601
- Lido Building #621 L621
- Lido Island LIDO
- Lido Peninsula LIPN
- Linda Isle LIND
- Madison BCYM
- Marina Apartments MARA
- Newport Bay Towers NBYT
- Newport Beach Townhomes NTHM
- Newport Crest NEWC
- Newport Heights NEWH
- Newport Island NEWI
- Newport North Villas NNVL
- Newport Shores NEWS
- Newport Terrace NEWT
- Santa Ana Country Club Area SACC
- Santa Ana Heights Residential SAHR
- Sea Island – McLain SIML
- Seawind Condos SEAW
- Stonybrook OFSB
- Versailles VERS
- Villa Balboa VBAL
- Villa Granada VGRN
- Villa Siena VSEN
- Vista Del Lido Condos L611
- West Newport Beach WSNB
- West Newport Industrial WNIN
- Westcliff Grove WCGR
- Westcliff West WCDW
- Windward East Homes UBWE
- Wyndover Bay BCYW
Market Summary
Current real estate data for Single Family in Newport Beach as of Nov 05, 2025
250
Single Family Listed
51
Avg DOM
1,124
Avg $ / SqFt
$3,524,544
Avg List Price
Property Summary
- Located in the Balboa Peninsula (Residential) (BALP) subdivision, 32nd ST Lot 15 Newport Beach CA is a Single Family for sale in Newport Beach, CA, 92663. It is listed for $3,500,000 and features 0 beds, 0 baths, and has approximately 0 square feet of living space, and was originally constructed in 1988. The average price per square foot for Single Family listings in Newport Beach is $1,124. The average listing price for Single Family in Newport Beach is $3,524,544.
Similar Listings Nearby
32nd ST Lot 15
Newport Beach, CA






































