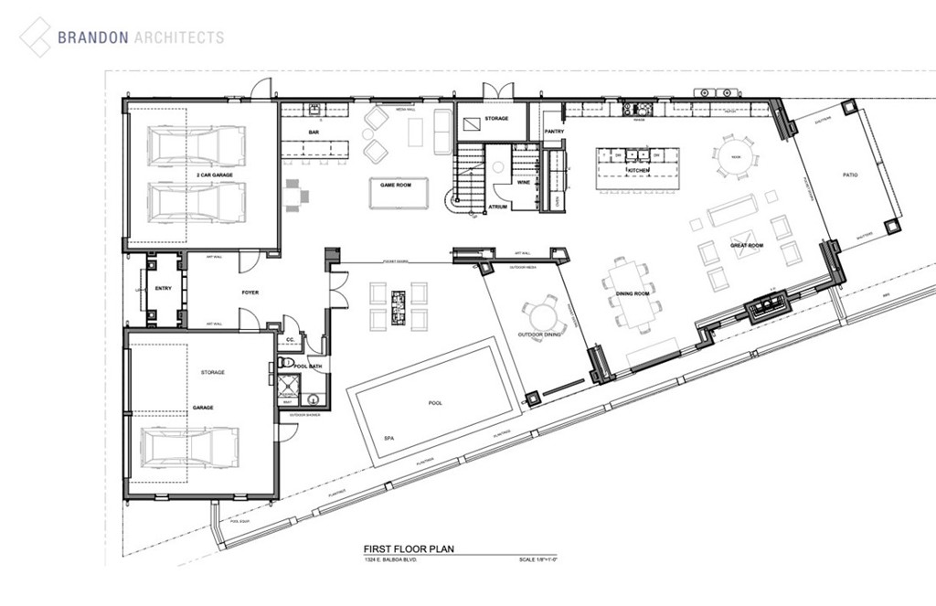
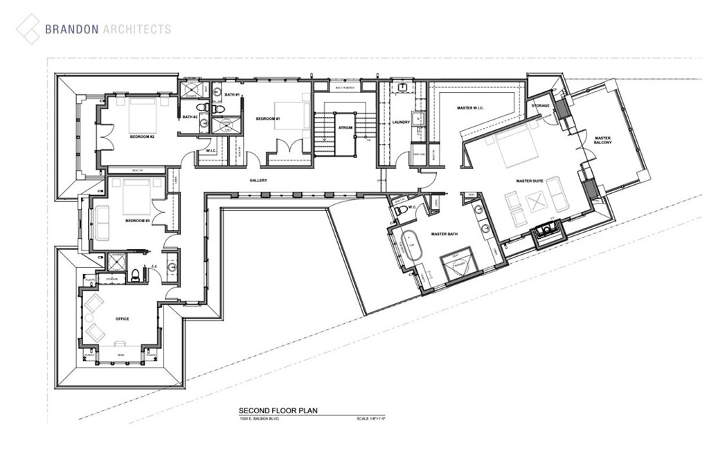
Exquisite panoramic sapphire views are on display from almost every room in this idyllic coastal home. Custom designed by Brandon Architects and completed in 2017 by premier homebuilder Spinnaker Development, this immaculate property has a spacious open floor plan, clean lines, and modern amenities. The luxury residence has a soothing neutral palette of colors and custom finishes throughout, including: a walk-in wine room highlighted with glass walls; custom cabinetry; coffered ceilings; an expansive laundry room with built-in dog bath; and beautiful stone, marble and tile work. The opulent primary suite with balcony has a prominent location highlighting sweeping views of the bay and the peaceful morning sunrise. Three additional oversized bedroom suites, an office, and an attached four-car garage provide spacious accommodations for daily living, while an interior courtyard with a private pool, spa, and water feature, an adjacent billiard or bonus room with a wet bar, a chef’s kitchen, and a great room opening to a loggia on the sand, all provide the ideal backdrop for relaxing with family and friends. Disappearing doors open up the entire first floor of the home to the interior courtyard and the beach. This exceptional Cape Cod inspired home sits on one of the largest bayfront lots on Peninsula Point at 7,424 square feet, a corner lot approximately three times the standard bayfront lot, and has only one neighbor to the west. Its expansive private bay beach and dock fronts the largest width of Newport Bay, providing premium views of summer yacht club races through the harbor and the annual holiday boat parade, as well as ample space to sink your toes in the sand, cool off with a quick dip in the bay, take out a paddleboard, or sail away the day. The dock is approved for up to a 55 foot boat. This is a tremendous opportunity to enjoy the finest in bayfront living and the coveted Newport Beach lifestyle in close proximity to Balboa Village, luxury retail, fine dining, and world-class beaches.
Property Details
Price:
$29,750,000
MLS #:
NP25098388
Status:
Active
Beds:
5
Baths:
5
Type:
Single Family
Subtype:
Single Family Residence
Neighborhood:
npbalboapeninsula
Listed Date:
Sep 24, 2025
Finished Sq Ft:
5,453
Lot Size:
7,424 sqft / 0.17 acres (approx)
Year Built:
2017
See this Listing
Schools
School District:
Newport Mesa Unified
Interior
Appliances
DW, GD, MW, RF, GR, BIR, _6BS, BBQ, DO, HOD
Bathrooms
1 Full Bathroom, 4 Three Quarter Bathrooms
Cooling
CA
Flooring
WOOD
Heating
CF
Laundry Features
IR, UL
Exterior
Architectural Style
CPC
Community Features
WATE
Construction Materials
STVE, SHKS
Exterior Features
BQ, BS, DO
Parking Spots
4
Roof
SHN, WOD
Security Features
SS, SD
Financial
Map
Community
- Address1324 E Balboa BL Newport Beach CA
- CityNewport Beach
- CountyOrange
- Zip Code92661
Subdivisions in Newport Beach
- Back Bay Custom Homes BBCS
- Balboa Coves BLCV
- Balboa Island – Collins Island BALC
- Balboa Island – Little Island BALL
- Balboa Island – Main Island BALM
- Balboa Peninsula Point BLPP
- Balboa Peninsula Residential BALP
- Baycrest North BCNO
- Baycrest South BCSO
- Bayridge BRID
- Bayshores BSHR
- Bayside Village BAYV
- Bayview Terrace BVTR
- Beacon Bay BEAC
- Belcourt Hill BLHL
- Belcourt Terrace BLTR
- Big Canyon Broadmoor BCBM
- Big Canyon Custom BCCS
- Big Canyon Deane BCDN
- Big Canyon McLain BCMC
- Bluffs Original BORI
- Bluffs Plaza Area BOPL
- Bluffs Tennis Villas BNTV
- Bonnie Bay Highland Homes UBHH
- Cannery Village Mobile Park CVMP
- Castaways CAST
- Central Newport CNEW
- Cherry Lake Estates UBLE
- Cliffhaven CLIF
- Dover Shores “”100″” Series DSA1
- Dover Shores DSAM
- Eastbluff – Lusk EBLK
- Eastbluff – Macco EBMO
- Granville GRNV
- Harbor Cove Promenade HCPM
- Harbor Hill HARH
- Harbor Island “”Drive”” HIDC
- Harbor Island HARI
- Harbor Ridge Crest HRCR
- Harbor Ridge Custom HRCS
- Harbor Ridge Estates HRES
- Harbor View Homes HVHM
- Kings Road KGRD
- Lido Building #601 L601
- Lido Building #621 L621
- Lido Island LIDO
- Lido Peninsula LIPN
- Linda Isle LIND
- Madison BCYM
- Newport Crest NEWC
- Newport Heights NEWH
- Newport Island NEWI
- Newport North Townhomes NNTH
- Newport Shores NEWS
- Promontory Bay Custom PBCS
- Providence OFPV
- Santa Ana Heights Residential SAHR
- Sea Island – Lusk SILK
- Seaview SEAV
- Summer House OFSH
- Versailles VERS
- Villa Balboa VBAL
- Villa Point VILP
- Villa Siena VSEN
- West Newport Beach WSNB
- Westcliff East WCDE
- Westcliff West WCDW
Market Summary
Current real estate data for Single Family in Newport Beach as of Dec 12, 2025
223
Single Family Listed
63
Avg DOM
1,128
Avg $ / SqFt
$3,704,428
Avg List Price
Property Summary
- 1324 E Balboa BL Newport Beach CA is a Single Family for sale in Newport Beach, CA, 92661. It is listed for $29,750,000 and features 5 beds, 5 baths, and has approximately 5,453 square feet of living space, and was originally constructed in 2017. The current price per square foot is $5,456. The average price per square foot for Single Family listings in Newport Beach is $1,128. The average listing price for Single Family in Newport Beach is $3,704,428.
Similar Listings Nearby
1324 E Balboa BL
Newport Beach, CA





















































