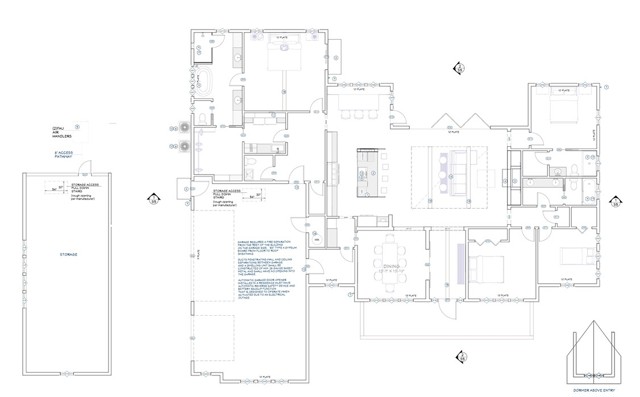
BEAUTIFUL 5-ACRE PARCEL IN A STUNNING AREA OF LA CRESTA with APPROVED GRADING PLANS AND ENGINEERED HOUSE PLANS! This location does not get any better! Loaded with giant ancient oaks and located just steps to the Cleveland National Forest, you will enjoy a peace only provided by nature. This sanctuary offers massive views from the potential house pad at the top and plenty of usable land at street level for your barn, workshop, ADU, outbuildings, horses, etc. With all the work the current owners have done, you are well on your way to constructing your dream estate in the prestigious Santa Rosa Plateau. Their hard work will not only save you time, but will provide savings of tens of thousands $$$ on engineering, perc test, and county fees. Utilities are conveniently located at the street and the parcel is already partially fenced and greets you with an inviting entry gate flanked by oak trees. This quiet location is easy – just one mile off the main road Avenida La Cresta – and is easy to view! Prepare for a magical experience! (Renderings and plans are available upon request) *****Discover the Santa Rosa Plateau Lifestyle…5-acre minimum parcels (10-acre minimum. in SR West), just minutes to schools, restaurants, hospitals, grocery stores, 15 Fwy & Temecula Wine Country. Enjoy this peaceful ranch community w/no commercial businesses, robust social activities, miles of private community trails & 1000s of acres of Ecological Reserve…All less than 1.5 hours from LA, SD, OC, Palm Springs & Big Bear. Discover the country, yet convenient, lifestyle of La Cresta, Tenaja & the Communities of the Santa Rosa Plateau!
Property Details
Price:
$325,000
MLS #:
SW25207435
Status:
Active
Beds:
0
Baths:
0
Type:
Land
Neighborhood:
srcar
Listed Date:
Oct 24, 2025
Lot Size:
217,800 sqft / 5.00 acres (approx)
See this Listing
Schools
Interior
Exterior
Community Features
RUR, BLM, HRS, MTN, PSV, HIKI, BIKI
Financial
HOA Fee
$85
HOA Frequency
MO
Map
Community
- AddressCalle de Companero Lot E Murrieta CA
- CityMurrieta
- CountyRiverside
- Zip Code92562
Subdivisions in Murrieta
Market Summary
Property Summary
- Calle de Companero Lot E Murrieta CA is a Land for sale in Murrieta, CA, 92562. It is listed for $325,000 and features 5 acres.
Similar Listings Nearby
Calle de Companero Lot E
Murrieta, CA



















