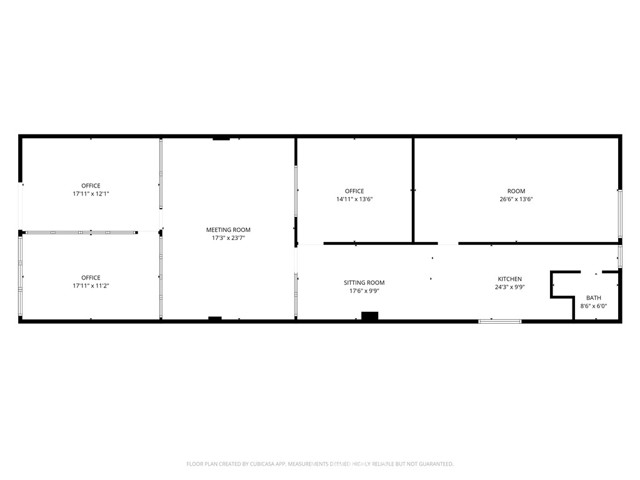
Approximately 2,000 sq ft of versatile commercial space located in one of the most convenient business corridors in the San Gabriel Valley. This well-appointed unit features a fully permitted kitchen, private bathroom, a welcoming front reception area, modern glass-partitioned workstation space, two conference rooms, and one private office—ideal for a variety of professional. The property includes three dedicated parking spaces and offers exceptional access to major transportation routes, including the 60, 710, 5, and 10 freeways. Centrally positioned just 8 miles from Downtown Los Angeles and 8 miles from Pasadena.
Property Details
Price:
$3,000
MLS #:
WS25261877
Status:
Active
Beds:
0
Baths:
0
Type:
Single Family
Subtype:
Office
Neighborhood:
641
Listed Date:
Nov 18, 2025
Total Sq Ft:
1,919
Lot Size:
69,380 sqft / 1.59 acres (approx)
Year Built:
1985
See this Listing
Schools
Interior
Cooling
CA
Heating
FA
Exterior
Financial
Map
Community
- AddressMonterey Pass RD #206 Monterey Park CA
- CityMonterey Park
- CountyLos Angeles
- Zip Code91754
Market Summary
Current real estate data for Single Family in Monterey Park as of Nov 19, 2025
41
Single Family Listed
34
Avg DOM
412
Avg $ / SqFt
$668,808
Avg List Price
Property Summary
- Monterey Pass RD #206 Monterey Park CA is a Single Family for sale in Monterey Park, CA, 91754. It is listed for $3,000 and features 0 beds, 0 baths, and has approximately 0 square feet of living space, and was originally constructed in 1985. The average price per square foot for Single Family listings in Monterey Park is $412. The average listing price for Single Family in Monterey Park is $668,808.
Similar Listings Nearby
Monterey Pass RD #206
Monterey Park, CA



















