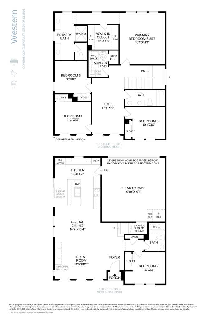
Welcome to Skyview at Metro Heights, a new home community located in Montebello, which is approximately 20 minutes from downtown Los Angeles. Homesite 96 is a new construction home that is situated on a beautiful lot with a cozy side yard. The Western floor plan features 5 bedrooms with 3 bathrooms a 2 car garage and is 2,250 sq. ft. Upon entering the home, you walk into our expansive great room which leads into kitchen and home office. The kitchen features a large island countertop with an integrated sink and Kitchen Aid appliances. The primary bedroom suite provides dual walk in closets and a spa like bath with a dual sink vanity. Highlights of this home are the 10ft. high ceilings on the first floor, and an upgraded interior insulation package, and upgraded multi-slide stacked door on first floor. The side yard is the perfect size for a barbecue with family or enjoying the sunshine in the warm summer months. The community amenities include multiple pocket parks, a walking trail, an attended front gate, and a 10,000 square foot community center with two pools, cabanas, multiple outdoor kitchens, office space, rentable areas for parties and a fitness center. Homesite 96, has an estimated closing date in April of 2026. Photos provided are renderings, actual home is under construction.
Property Details
Price:
$1,343,000
MLS #:
OC25272629
Status:
Active
Beds:
5
Baths:
3
Type:
Condo
Subtype:
Condominium
Neighborhood:
674montebello
Listed Date:
Dec 8, 2025
Finished Sq Ft:
2,250
Lot Size:
2,731 sqft / 0.06 acres (approx)
Year Built:
See this Listing
Schools
School District:
Montebello Unified
Middle School:
Macy
High School:
Other
Interior
Appliances
DW, RF, GO, GR, GWH, WHU
Bathrooms
3 Full Bathrooms
Cooling
CA, GAS
Flooring
TILE, CARP
Heating
GAS, CF
Laundry Features
GAS, IN, UL, WH
Exterior
Architectural Style
CNT
Community Features
SDW, SL, CRB, PARK, HIKI
Construction Materials
STC, DWAL, FRM
Exterior Features
RG
Parking Spots
2
Roof
CON, TLE
Security Features
FSDS, FS, GC, GA
Financial
HOA Fee
$299
HOA Frequency
MO
Map
Community
- Address575 Canterbury WY Montebello CA
- CityMontebello
- CountyLos Angeles
- Zip Code90640
Subdivisions in Montebello
Market Summary
Current real estate data for Condo in Montebello as of Dec 10, 2025
26
Condo Listed
55
Avg DOM
537
Avg $ / SqFt
$1,281,683
Avg List Price
Property Summary
- 575 Canterbury WY Montebello CA is a Condo for sale in Montebello, CA, 90640. It is listed for $1,343,000 and features 5 beds, 3 baths, and has approximately 2,250 square feet of living space, and was originally constructed in 2026. The current price per square foot is $597. The average price per square foot for Condo listings in Montebello is $537. The average listing price for Condo in Montebello is $1,281,683.
Similar Listings Nearby
575 Canterbury WY
Montebello, CA



























